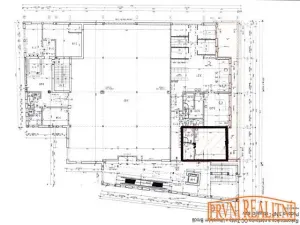
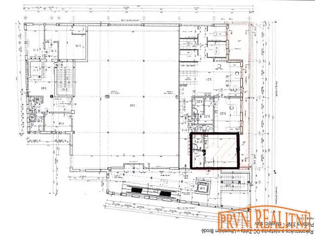
Bří Lužů, Uherský Brod
Pronájem prostor v obchodním domě v centru města
– jedná se o prostory ve 2.NP na ulici Bří Lužů
– nové prostory s centrálním vytápěním a výtahem
– prostory jsou vhodné pro ordinace nebo pro  služby
– k dispozici ihned, možný dlouhodobý pronájem
– místnost o výměře 72 m²
Nájem 12.000,- Kč/měsíčně + DPH + energie a služby.
– místnost o výměře 154 m², koupelna a WC
Nájem 20.000,- Kč/měsíčně + DPH + energie a služby.
Kaunicova 62, Uherský Brod
Máte zájem o tuto nemovistost?
Inzerát si prohlédlo 0 lidí
 
                                Horenská Ivana
Chcete dostávat emailem podobné nabídky pronájmu obchodních prostor v Uherském Brodu?