Josefa Herčíka, Uherský Brod
Prodej stavebního pozemku v lokalitě Nad Zámkem
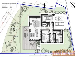
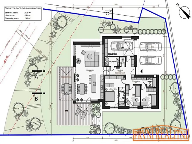
- pozemek má výměru 2813 m²
- šířka pozemku je 22 metrů
- možnost připojení na veškeré inženýrské sítě
- dle územního plánu je pozemek určen k výstavbě bydlení v rodinných domech a v nízkopodlažních bytových domech
Kaunicova 62, Uherský Brod
Máte zájem o tento pozemek?
Inzerát si prohlédlo 0 lidí
 
                                Horenská Ivana
Chcete dostávat emailem podobné nabídky prodeje pozemků pro bydlení v Uherském Brodu?