Prodej bytu 1+kk, Židlochovice, Komenského, 30 m2

Komenského, Židlochovice

3 408 600 Kč HYPOTÉKA od 15 234 Kč /za měsíc

(včetně provize RK)

Exkluzivní partneři v Židlochovicích

Informace k bytu

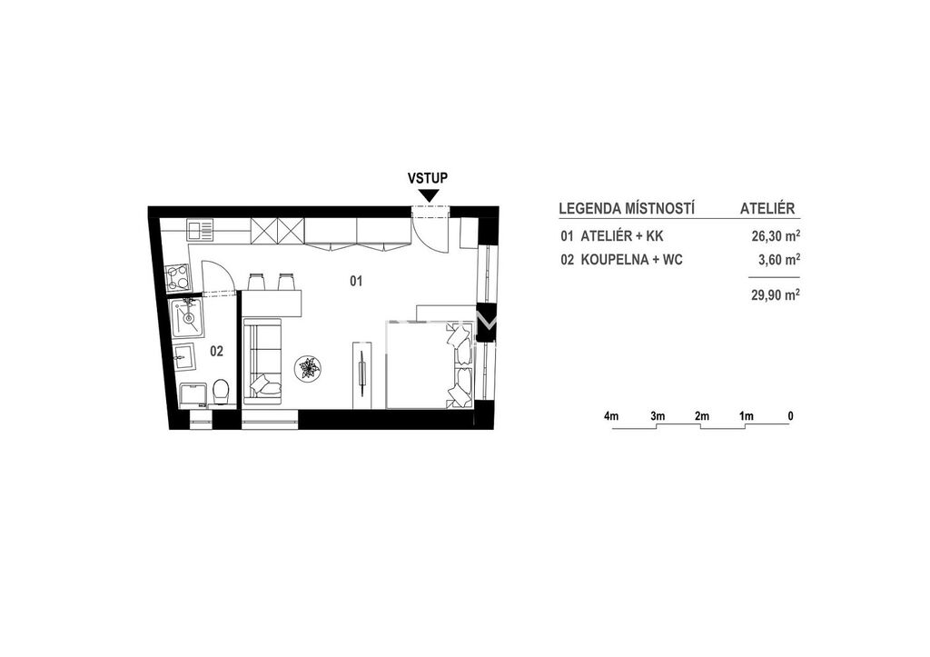
Prodej ateliéru 1+kk, 30 m², Židlochovice

Nabízíme k prodeji novou jednotku (ateliér) ve 2. nadzemním podlaží moderního bytového domu s celkem 8 jednotkami. Dům má 3 podlaží a nachází se v klidné lokalitě s výbornou dostupností do centra. Dispozice je 1+kk, užitná plocha 30 m².

Ateliér bude dokončen v kvalitním standardu – ve spolupráci s investorem si můžete vybrat typ, dekor podlah, dveří i obkladů podle vlastního vkusu.

Standard zahrnuje:

- skládané vinylové podlahy od společnosti Supellex

- interiérové dveře a vstupní bezpečnostní dveře z DKP Market

- koupelnu s obklady a sanitou od studia Ptáček

Na bytě jsou již hotové přípravy k předokením žaluziím.

Nemovitost je nabízena do osobního vlastnictví. K jednotce je možné přikoupit výhradní parkovací stání, které je umístěno v dvorním uzavřeném traktu.

Projekt je vhodný jak pro vlastní bydlení, tak na investici. K financování nemovitosti lze využít našeho kolegu ze společnosti Partners.

Předpokládaný termín stěhování je 2. čtvrtletí 2026.

V případě zájmu o prohlídku nebo konzultaci mne prosím kontaktujte na uvedeném telefoním čísle nebo e-mailu.

-------------------------------

Průkaz energetické náročnosti budovy nebyl doložen, proto je objekt automaticky zařazen do energetické třídy G – mimořádně nehospodárná.

Parametry bytu

Cena
3 408 600 Kč Spočítat hypotéku
Poznámka k ceně
včetně provize RK
Aktualizováno
29. 10. 2025
Adresa
Komenského, Židlochovice
ID
0347
Stavba
Cihlová
Stav objektu
Dobrý
Vybaveno
Ne
Vlastnictví
Osobní
Užitná plocha
30 m2
Třída energetické náročnosti
G - Mimořádně nehospodárná

Kontaktovat makléře

Realitní kancelář

bytnej.cz

Wolkerova 1210/27, Olomouc

Chystáte se prodat nemovitost?
Pomůžeme Vám!

Máte zájem o tento byt?

Tímto, v souladu s nařízením Evropského parlamentu a Rady (EU) 2016/679, v platném znění, prohlašuji, že mi je alespoň 16 let a uděluji tak svůj souhlas se zpracováním zadaných údajů (jméno, telefon, e-mail, ip adresa) společnosti B3 Technology, s.r.o., IČ: 07330600, se sídlem Novostavby 126/23, 435 11 Lom (správce dat), za účelem předání dotazu z tohoto formuláře Vámi vybranému inzerentovi a zpětného kontaktování mé osoby. Osobní údaje bude správce zpracovávat manuálně i automaticky přímo prostřednictvím svých zaměstnanců. Informace předané tímto formulářem budou uloženy v databázi správce maximálně po dobu 10 let. Odvolání souhlasu s uložením a zpracováním poskytnutých dat lze e-mailem na info@vitio.cz. V případě podezření na neoprávněné použití Vámi poskytnutých údajů máte právo předat podnět k šetření Úřadu pro ochranu osobních údajů. Více informací
Chystáte se prodat nemovitost?
Pomůžeme Vám!

Inzerát si prohlédlo 8 lidí

Prodejce

Ing. Filip Hylák

Ing. Filip Hylák

Hlídací pes

Chcete dostávat emailem podobné nabídky prodeje bytů 1+kk v Židlochovicích?

Podobné nemovitosti