Prodej bytu 3+kk, Praha, Na Farkáně III, 80 m2 (ID: 2492776)

Na Farkáně III, Praha 5

11 450 000 Kč /za nemovitost HYPOTÉKA od 51 175 Kč /za měsíc
Exkluzivní partneři v Praze 5

Stěhovací služby

Výkup a prodej starého nábytku

Informace k bytu

Prodej bytu 3+kk se soukromou zahradou – Na Farkáně III, Praha 5 – Radlice

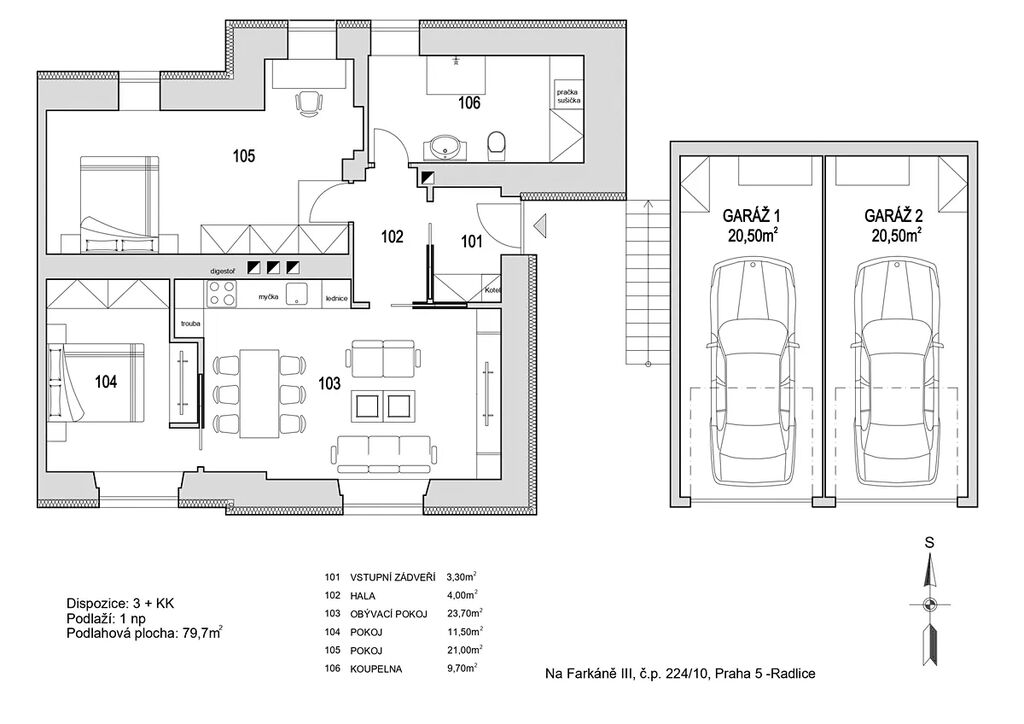
Exkluzivně nabízíme k prodeji skvěle dispozičně řešený byt 3+kk o výměře 80 m², umístěný v přízemí nového komorního bytového domu v žádané lokalitě Praha 5 – Radlice. Projekt čítá pouze tři bytové jednotky, což zaručuje maximální soukromí a klid – ideální volba pro ty, kdo hledají klidné bydlení v blízkosti centra metropole.
V ceně bytu je soukromá zahrada o výměře 62 m², která poskytuje dokonalé zázemí pro relaxaci, venkovní posezení, zahradní domek, vířivku čí bazén. Vlastní zahrada přímo u bytu je v této lokalitě výjimečnou přidanou hodnotou.

Dispozice:
• Prostorný obývací pokoj s přípravou na kuchyňský kout
• Dvě samostatné ložnice
• Koupelna
• Samostatné WC
• Vstupní chodba a dostatek místa pro úložné prostory

Luxusní standardy:
• Kvalitní dubové třívrstvé podlahy
• Designové reverzní bezfalcové dveře
• Plastová okna s trojskly pro výbornou tepelnou a akustickou izolaci
• Koupelny s černými bateriemi a podlahovým vytápěním
• Příprava pro kuchyňskou linku, osvětlení a další vybavení dle preferencí budoucího majitele

K bytu je dále možné přikoupit samostatné garážové stání v novostavbě dvojgaráže sousedící s domem. Každé garážové stání má samostatné měření elektro a je v něm instalována příprava pro osazení nabíjecí stanice pro elektromobil s jištěním 3x20A (400V), což je nesporná výhoda pro současné i budoucí majitele moderních elektromobilů.

Lokalita:
Dům se nachází v tiché ulici Na Farkáně III, jen pár minut od stanice metra B – Radlická a zastávek MHD. Okolí nabízí výbornou občanskou vybavenost – školy, školky, obchody, sportovní centrum Motorlet, restaurace i zdravotní služby. Přírodní parky Dívčí hrady, Cibulka a Prokopské údolí jsou ideální pro procházky, běhání i cyklistiku.

Pří financování koupě nemovitosti úvěrem Vám hypotéku rádi zdarma pomůžeme vyřídit za velmi výhodných podmínek.
Pro více informací nebo domluvení prohlídky nás neváhejte kontaktovat.

Parametry bytu

Cena
11 450 000 Kč /za nemovitost Spočítat hypotéku
Aktualizováno
27. 10. 2025
Adresa
Na Farkáně III, Praha 5
Stavba
Cihlová
Stav objektu
Novostavba
Patro
1.
Vlastnictví
Osobní
Užitná plocha
80 m2
Plocha zahrady
62 m2
Třída energetické náročnosti
C - Úsporná
Garáž

Kontaktovat makléře

Máte zájem o tento byt?

Tímto, v souladu s nařízením Evropského parlamentu a Rady (EU) 2016/679, v platném znění, prohlašuji, že mi je alespoň 16 let a uděluji tak svůj souhlas se zpracováním zadaných údajů (jméno, telefon, e-mail, ip adresa) společnosti B3 Technology, s.r.o., IČ: 07330600, se sídlem Novostavby 126/23, 435 11 Lom (správce dat), za účelem předání dotazu z tohoto formuláře Vámi vybranému inzerentovi a zpětného kontaktování mé osoby. Osobní údaje bude správce zpracovávat manuálně i automaticky přímo prostřednictvím svých zaměstnanců. Informace předané tímto formulářem budou uloženy v databázi správce maximálně po dobu 10 let. Odvolání souhlasu s uložením a zpracováním poskytnutých dat lze e-mailem na info@vitio.cz. V případě podezření na neoprávněné použití Vámi poskytnutých údajů máte právo předat podnět k šetření Úřadu pro ochranu osobních údajů. Více informací
Chystáte se prodat nemovitost?
Pomůžeme Vám!

Inzerát si prohlédlo 2 lidí

Prodejce

Daniel Šroubek

Daniel Šroubek

Hlídací pes

Chcete dostávat emailem podobné nabídky prodeje bytů 3+kk v Praze 5?

Podobné nemovitosti