Pronájem obchodního prostoru, Brno, Lidická, 165 m2

Lidická, Brno-střed

18 000 Kč /za měsíc Získejte výhodnou HYPOTÉKU

(nájem 18.000,- + DPH, + inkaso 10.000,- + DPH)

Exkluzivní partneři v Brně

Informace k nemovitosti

K dispozici ihned.

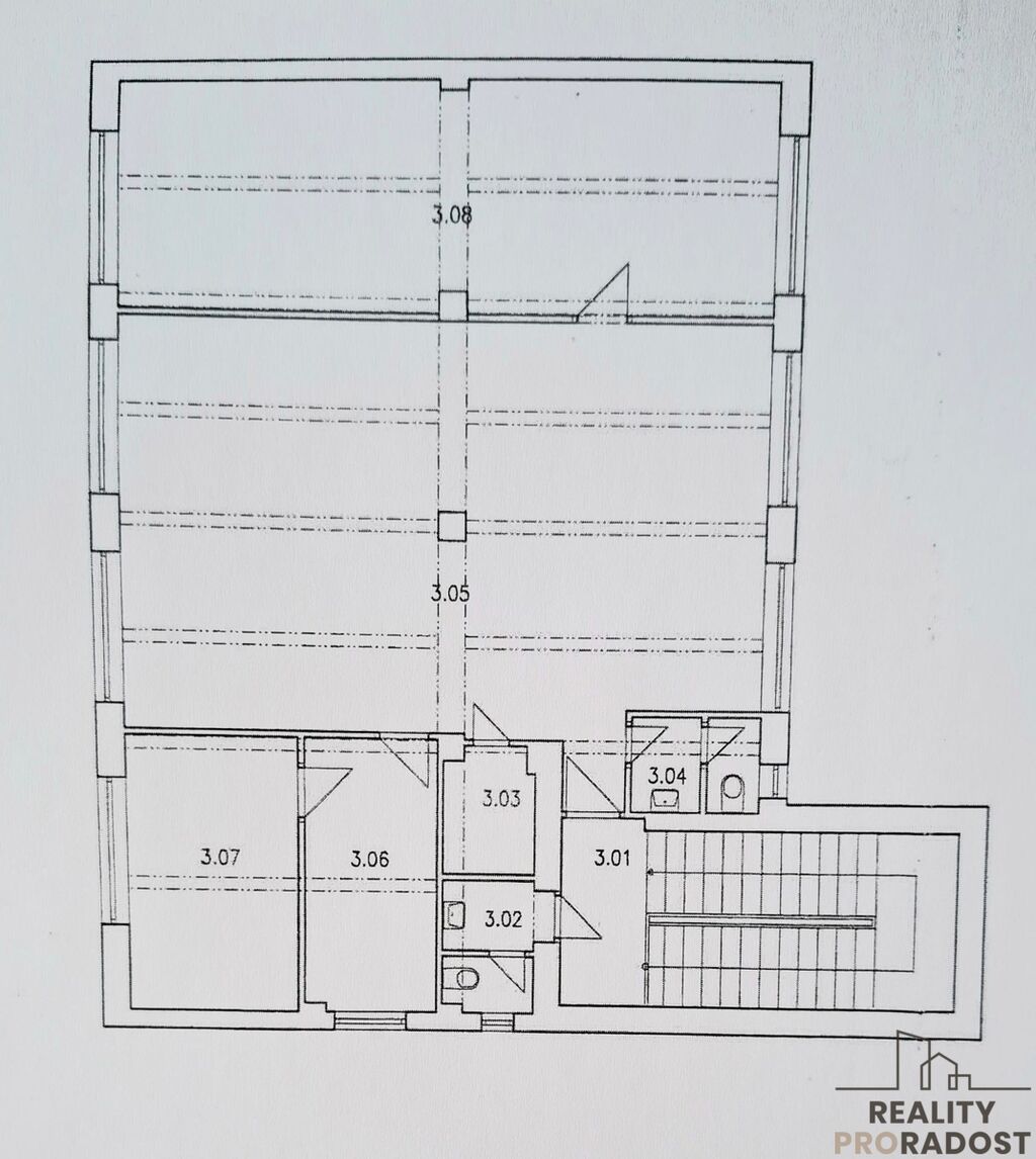
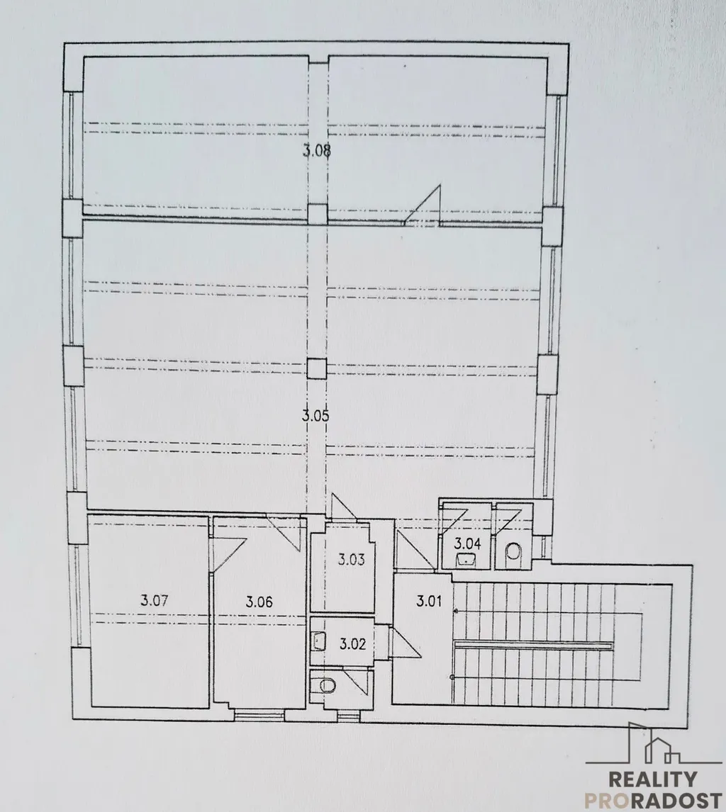
Nabízíme k dlouhodobému pronájmu světlé a prostorné obchodní prostory ve 2. patře komerční budovy (bez výtahu) v samotném centru Brna, na ulici Lidická. CP činí 165 m2 - jedná se o celé patro budovy.

Prostory mají výbornou dostupnost MHD i pěšky a jsou vhodné pro kanceláře, služby či jiné podnikání.
Vytápění objektu je centrální. Objekt je zabezpečený alarmem.

Dispozice a vybavení:
• velká otevřená provozní plocha
• samostatná kancelář
• malá kuchyňka
• sociální zázemí (2xWC)

Celková plocha nabízí dostatek místa pro pohodlné fungování týmu či klientské provozovny.
K objektu je možnost pronajmout parkovací stání za budovou, případně v okolí.
Prostory byly dříve využívány jako dětská skupina / školka, ale lze je snadno upravit podle potřeb nového nájemce.

Nájem obchodního prostoru činí 18.000 Kč, vyúčtovatelné zálohy na inkaso 10.000 Kč ( celkem tedy 28.000 Kč + DPH). Majitel požaduje vratnou jistotu ve výši 20.000 Kč. Provize RK je 20.000 Kč.

Možnost pronájmu parkovacího stání přímo za budovou za poplatek 1.500,- Kč/ měsíc.

Pokud Vás tato nabídka zaujala, neváhejte mě kontaktovat.
Vaše realitní makléřka Marie.

Parametry nemovitosti

Cena
18 000 Kč /za měsíc
Poznámka k ceně
nájem 18.000,- + DPH, + inkaso 10.000,- + DPH
Aktualizováno
7. 12. 2025
Adresa
Lidická, Brno-střed
ID
28088
Stavba
Smíšená
Stav objektu
Dobrý
Patro
2. z 4
Vybaveno
Ne
Typ objektu
Patrový
Lokalita objektu
Centrum obce
Užitná plocha
165 m2
Podlahová plocha
165 m2
Třída energetické náročnosti
G - Mimořádně nehospodárná
Elektřina
230V
Odpad
Veřejná kanalizace
Doprava
Vlak, Dálnice, Silnice, MHD, Autobus
Převod do OV

Kontaktovat makléře

Máte zájem o tuto nemovistost?

Tímto, v souladu s nařízením Evropského parlamentu a Rady (EU) 2016/679, v platném znění, prohlašuji, že mi je alespoň 16 let a uděluji tak svůj souhlas se zpracováním zadaných údajů (jméno, telefon, e-mail, ip adresa) společnosti B3 Technology, s.r.o., IČ: 07330600, se sídlem Novostavby 126/23, 435 11 Lom (správce dat), za účelem předání dotazu z tohoto formuláře Vámi vybranému inzerentovi a zpětného kontaktování mé osoby. Osobní údaje bude správce zpracovávat manuálně i automaticky přímo prostřednictvím svých zaměstnanců. Informace předané tímto formulářem budou uloženy v databázi správce maximálně po dobu 10 let. Odvolání souhlasu s uložením a zpracováním poskytnutých dat lze e-mailem na info@vitio.cz. V případě podezření na neoprávněné použití Vámi poskytnutých údajů máte právo předat podnět k šetření Úřadu pro ochranu osobních údajů. Více informací
Chystáte se prodat nemovitost?
Pomůžeme Vám!

Inzerát si prohlédlo 11 lidí

Prodejce

Ing. Marie Padrtová

Ing. Marie Padrtová

Hlídací pes

Chcete dostávat emailem podobné nabídky pronájmu obchodních prostor v Brně?

Podobné nemovitosti