Prodej bytu 4+1, Praha, 195 m2

Praha 1

Cena na vyžádání /za nemovitost Získejte výhodnou HYPOTÉKU
Exkluzivní partneři v Praze 1

Stěhovací služby

Výkup a prodej starého nábytku

Informace k bytu

Zcela unikátní penthouse se nachází v rezidenci, která nedávno prošla citlivou rekonstrukcí. Noblesní, secesní dům, ve kterém se byt nachází, je zasazen v jedné z nejlukrativnějších částí Prahy 1. Klenotem projektu je zrenovovaná zahrada ve vnitrobloku, která je k dispozici všem svým rezidentům.

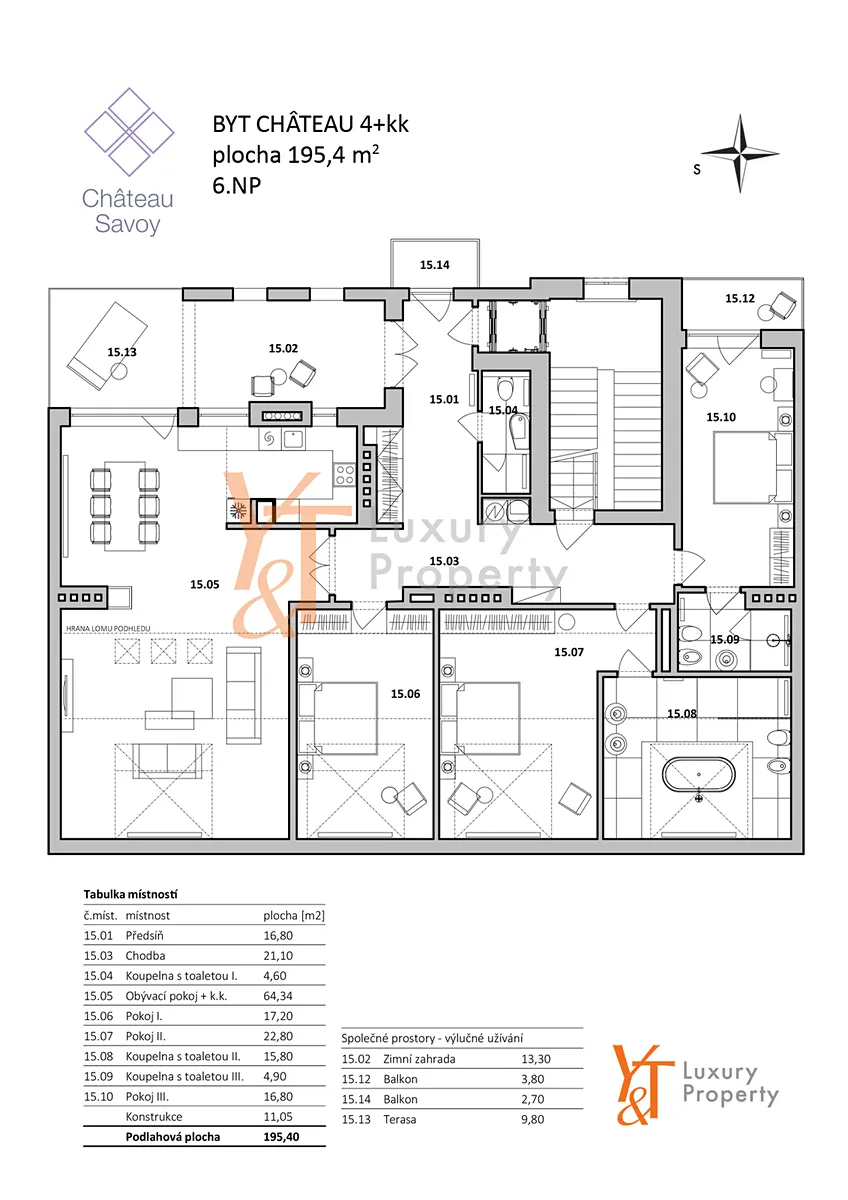
Krásný, světlý byt s výškou stropu 3,88m je situován v posledním nadzemním podlaží této unikátní rezidence. Přístupný je přes schodiště nebo výtahem, který vás zaveze přímo do bytu. Dispozičně je řešen jako 4+1 s orientací na západní a východní stranu. Prostorný obývací pokoj, který Vás ohromí svojí velikostí a výhledem na Pražský hrad je spojený s kuchyní značky Poliform s vestavěnými spotřebiči značky Miele a nabízí vstup na velkorysou terasu se zimní zahradou a výhledem do upraveného vnitrobloku. Master ložnice má úctyhodných 22 m2 s en-suite koupelnou, kde najdete vanu i sprchový kout. Druhá ložnice s východní orientací má vlastní balkón s orientací do vnitrobloku a en-suite koupelnu. Třetí ložnici lze využít např. pro hosty nebo jako pracovnu. K tomuto pokoji lze využít koupelnu s toaletou, která je přístupná ze vstupní haly, která také poskytuje dostatek úložného prostoru, vstup na balkón a terasu. Při rekonstrukci byly použity materiály nejvyšší kvality jako například dřevěná dubová podlaha, sanita značky Alessi či baterie od firmy Grohe. V koupelnách jsou použity velkoformátové italské obklady. Skvostný design podtrhuje LED osvětlení, chodbu i plynový krb v obývacím pokoji, který je z luxusního mramoru (Golden spider). Pro zajištění maximálního komfortu je samozřejmostí klimatizace značky LG, audio systém zabudovaný ve stropě a alarm. K bytu je na prodej i nebytový prostor o velikosti 11m2 s velkým oknem do zahrady v přízemí domu .K bytu lze dokoupit 3 parkovací stání v podzemních garážích domu přístupné přímo do chodby domu.

Penthouse se nachází v bezpečné vzdálenosti od řeky Vltavy a z terasy či balkónů není slyšet žádný hluk od dopravy. Prestižní adresa umožňuje majitelům penthousu žít v centru města a přitom mimo veškerý turistický ruch. V nejbližším okolí se najdou vyhlášené restaurace a také stylová kavárna Savoy. V těsné blízkostí domu nevedou žádné turistické trasy.

Více fotografií naleznete na našich webových stránkách

Energetická třída G je uvedena dočasně, vzhledem k novele zákona č. 406/2000 Sb. O hospodaření s energií. Po dodání energetického štítku bude uvedena skutečná energetická třída této nemovitosti.

Parametry bytu

Cena
Cena na vyžádání Spočítat hypotéku
Aktualizováno
25. 10. 2025
Adresa
Praha 1
ID
Y&T-5WAR
Stavba
Smíšená
Stav objektu
Velmi dobrý
Patro
6. z 6
Vlastnictví
Osobní
Užitná plocha
195 m2
Podlahová plocha
226 m2
Balkon
Garáž
Sklep
Terasa
Výtah

Kontaktovat makléře

Máte zájem o tento byt?

Tímto, v souladu s nařízením Evropského parlamentu a Rady (EU) 2016/679, v platném znění, prohlašuji, že mi je alespoň 16 let a uděluji tak svůj souhlas se zpracováním zadaných údajů (jméno, telefon, e-mail, ip adresa) společnosti B3 Technology, s.r.o., IČ: 07330600, se sídlem Novostavby 126/23, 435 11 Lom (správce dat), za účelem předání dotazu z tohoto formuláře Vámi vybranému inzerentovi a zpětného kontaktování mé osoby. Osobní údaje bude správce zpracovávat manuálně i automaticky přímo prostřednictvím svých zaměstnanců. Informace předané tímto formulářem budou uloženy v databázi správce maximálně po dobu 10 let. Odvolání souhlasu s uložením a zpracováním poskytnutých dat lze e-mailem na info@vitio.cz. V případě podezření na neoprávněné použití Vámi poskytnutých údajů máte právo předat podnět k šetření Úřadu pro ochranu osobních údajů. Více informací
Chystáte se prodat nemovitost?
Pomůžeme Vám!

Inzerát si prohlédlo 0 lidí

Prodejce

Adéla Zábojníková

Adéla Zábojníková

Hlídací pes

Chcete dostávat emailem podobné nabídky prodeje bytů 4+1 v Praze 1?

Podobné nemovitosti