Prodej bytu 2+kk, Praha - Vinohrady, Londýnská, 45 m2

Londýnská, Praha, Vinohrady

8 000 000 Kč /za nemovitost HYPOTÉKA od 35 755 Kč /za měsíc
Exkluzivní partneři v Praze 2

Stěhovací služby

Výkup a prodej starého nábytku

Informace k bytu

Stylové bydlení na Královských Vinohradech

Objevte kouzlo jedné z nejžádanějších pražských lokalit — královských Vinohrad, kde se snoubí historický půvab s moderním městským životem. V nabídce tu pro vás máme útulný podkrovní byt 2+kk, který nabízí ideální kombinaci praktičnosti a atmosféry, kterou si Vinohrady získaly srdce mnoha Pražanů.

Chytré a útulné bydlení

Za vstupními dveřmi vás přivítá předsíň, ze které je přístupná koupelna s toaletou a obývací pokoj s kuchyňským koutem. Ten nabízí dostatek prostoru pro odpočinek, vaření i stolování. Na obývací pokoj dále navazuje samostatný pokoj, který může sloužit jako ložnice, pracovna nebo pokoj pro hosty. Ten navíc ukrývá praktické řešení v podobě zvýšeného patra na spaní. Postel pod stropem šetří místo a dodává interiéru hravý, loftový charakter.

Celý byt působí kompaktně, ale zároveň vzdušně a útulně – ideální pro jednotlivce nebo pár, kteří ocení chytré využití prostoru.

Technické detaily

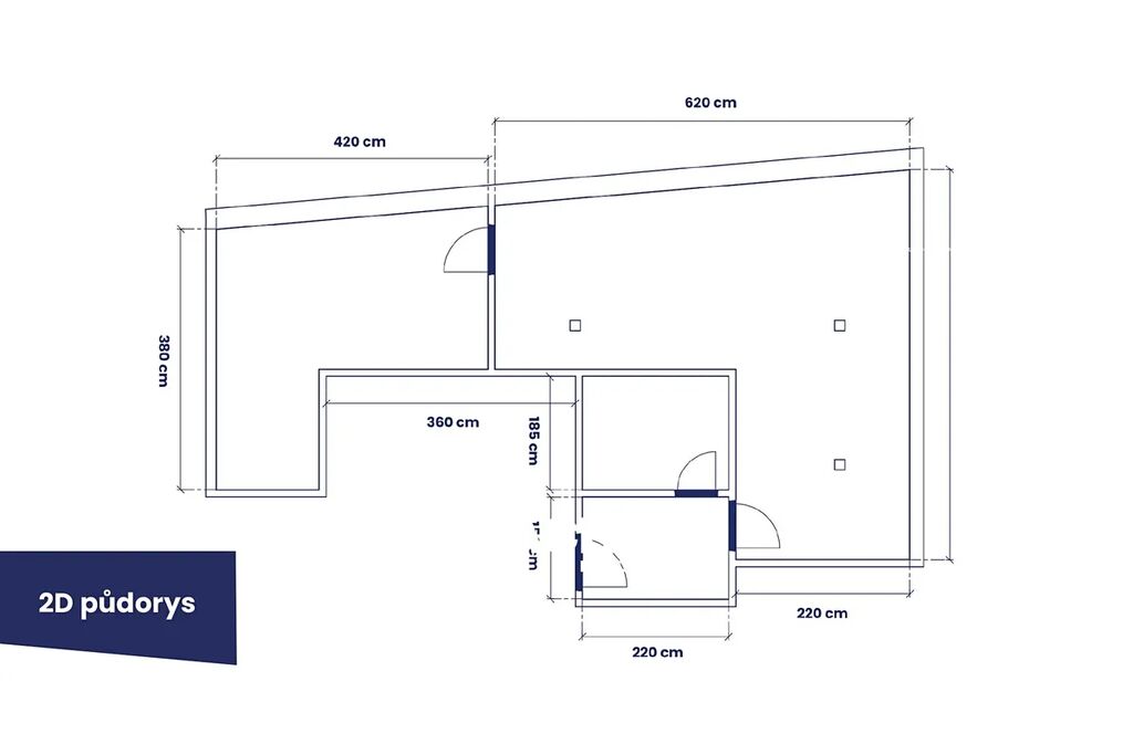
Užitná plocha: 45 m2
Podlahy: dřevo a dlažba
Okna: Velux
Vytápění: akumulační kamna s termostaty v každém pokoji
Ohřev vody: bojler
Byt je připraven k okamžitému nastěhování – bez nutnosti dalších investic.

Lokalita, která má styl

Londýnská ulice na pražských Vinohradech je považována za jednu z lukrativních a prestižních lokalit v Praze. Nachází se v těsné blízkosti Náměstí Míru, parku Grébovka a centra města, což z ní činí atraktivní adresu pro rezidenční i komerční nemovitosti.

Lokalita je známá svou historickou architekturou, secesními domy a funkcionalistickými stavbami. V posledních letech zde také probíhá řada developerských projektů a rekonstrukcí, které zvyšují hodnotu nemovitostí.

V okolí se nachází široká síť kaváren, restaurací, butiků, galerií a služeb. V pěší dostupnosti jsou školy, školky, lékařské ordinace, kulturní centra i sportovní zařízení. Blízkost parků Folimanka, Grébovka a Vyšehrad nabízí možnosti pro relaxaci a aktivní odpočinek.

Dopravní dostupnost je vynikající. Tramvajové linky i stanice metra Náměstí Míru a I. P. Pavlova jsou v docházkové vzdálenosti, na Václavské náměstí je to jen pár minut.

Tento byt je ideální volbou pro každého, kdo hledá stylové městské bydlení v jedné z nejatraktivnějších částí Prahy. Stačí se jen nastěhovat a začít si užívat atmosféru Vinohrad naplno.

Shrnutí

Ideální pro jednotlivce, pár nebo investora
Atraktivní pražská adresa
Kompletní občanská vybavenost
Skvělá investiční příležitost

Byt, který spojuje styl, pohodlí a výjimečnou lokalitu. Domluvte si prohlídku ještě dnes!

Majitel si vyhrazuje právo výběru zájemce.

Parametry bytu

Cena
8 000 000 Kč /za nemovitost Spočítat hypotéku
Aktualizováno
24. 10. 2025
Adresa
Londýnská, Praha, Vinohrady
ID
00196
Stavba
Cihlová
Stav objektu
Velmi dobrý
Patro
6.
Lokalita objektu
Centrum obce
Vlastnictví
Osobní
Užitná plocha
45 m2
Třída energetické náročnosti
G - Mimořádně nehospodárná
Elektřina
230V
Odpad
Veřejná kanalizace
Telekomunikace
Internet, Kabelová televize
Doprava
Vlak, Dálnice, MHD, Autobus
Voda
Vodovod
Topné těleso
Přímotop
Zdroj topení
Přímotop

Kontaktovat makléře

Máte zájem o tento byt?

Tímto, v souladu s nařízením Evropského parlamentu a Rady (EU) 2016/679, v platném znění, prohlašuji, že mi je alespoň 16 let a uděluji tak svůj souhlas se zpracováním zadaných údajů (jméno, telefon, e-mail, ip adresa) společnosti B3 Technology, s.r.o., IČ: 07330600, se sídlem Novostavby 126/23, 435 11 Lom (správce dat), za účelem předání dotazu z tohoto formuláře Vámi vybranému inzerentovi a zpětného kontaktování mé osoby. Osobní údaje bude správce zpracovávat manuálně i automaticky přímo prostřednictvím svých zaměstnanců. Informace předané tímto formulářem budou uloženy v databázi správce maximálně po dobu 10 let. Odvolání souhlasu s uložením a zpracováním poskytnutých dat lze e-mailem na info@vitio.cz. V případě podezření na neoprávněné použití Vámi poskytnutých údajů máte právo předat podnět k šetření Úřadu pro ochranu osobních údajů. Více informací
Chystáte se prodat nemovitost?
Pomůžeme Vám!

Inzerát si prohlédlo 2 lidí

Prodejce

Robert Macho

Robert Macho

Hlídací pes

Chcete dostávat emailem podobné nabídky prodeje bytů 2+kk v Praze 2?

Podobné nemovitosti