Prodej bytu 3+1, České Budějovice, Písecká, 70 m2

Písecká, České Budějovice 2

4 200 000 Kč /za nemovitost HYPOTÉKA od 18 771 Kč /za měsíc
Exkluzivní partneři v Českých Budějovicích

Informace k bytu

Družstevní byt 3+1 s lodžií v Písecké ulici v Českých Budějovicích nabízí jedinečnou příležitost si vytvořit domov podle vlastních představ.

Ve výhradním zastoupení majitele nabízíme ke koupi prostorný družstevní byt 3+1 s lodžií o celkové výměře 76 m² v klidné a vyhledávané části Českých Budějovic – ul. Písecká, na sídlišti Vltava.

Byt se nachází v 5. nadzemním podlaží panelového domu s výtahem a je v původním, velmi zachovalém stavu – ideální pro rekonstrukci dle vlastních představ a potřeb nové generace.

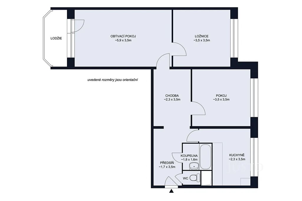
Byt má vnitřní podlahovou plochu 70 m², která zahrnuje tři pokoje (20 m², 12 m² a 12 m²), kuchyni (8 m²), prostornou předsíň (15 m²), koupelnu (2 m²) a samostatné WC (1 m²). K bytu dále náleží lodžie o velikosti 4 m² a sklep č. 31–32 o výměře 2 m², což činí celkovou plochu 76 m².

Dispozice bytu:
- Prostorná chodba s dostatkem místa pro úložné prostory
- Kuchyně s jídelním koutem a plynovým sporákem
- Obývací pokoj se vstupem na jižně orientovanou lodžii
- Dvě neprůchozí ložnice orientované na sever
- Koupelna a WC jsou samostatné

K bytu náleží sklepní kóje, dům má výtah a udržované společné prostory. Z lodžie je příjemný výhled do zeleně.

Bytový dům:
- Panelový dům je v dobrém technickém stavu, po kompletní revitalizaci – zateplená fasáda, plastová okna (2008), nové vnitřní rozvody, renovované lodžie i společné prostory.
- Energetická náročnost budovy: třída B – velmi úsporná
- Klidný dům s čistými a udržovanými společnými prostory

Financování a náklady:
Byt je v družstevním vlastnictví (nelze financovat hypotékou se zástavou na tuto jednotku). Revitalizace byla hrazena částečně úvěrem – zůstatek vypočtený na tuto jednotku činil k 1. 7. 2025 částku 51 222 Kč, úvěr bud doplacen do 31. 12. 2027.

Měsíční náklady: 5 490 Kč (nájemné + zálohy na služby)

Lokalita:
- Ulice Písecká patří mezi nejpříjemnější části sídliště Vltava – spojuje výbornou občanskou vybavenost s klidem a zelení.
- Obchody v bezprostřední blízkosti (Trefa za domem, Lidl pár minut chůze, Globus v dochozí vzdálenosti)
- Mateřská školka, základní škola, dětská hřiště, ale také park s lavičkami
- Zastávky MHD doslova pár kroků od domu
- V okolí je mnoho parkovacích míst
- Cyklostezka a stezka podél řeky Vltavy, stejně tak ČEZ Aréna

Zaujala Vás toto nabídka a máte zájem o bližší informace, nebo rovnou o prohlídku? V obou případech mě prosím kontaktujte prostřednictvím formuláře v dolní části inzerátu. Do 30 minut obdržíte odpověď s veškerými informacemi na e-mail, který uvedete. Pokud Vám e-mail nepřišel, podívejte se do nevyžádané pošty.

Parametry bytu

Cena
4 200 000 Kč /za nemovitost Spočítat hypotéku
Aktualizováno
24. 10. 2025
Adresa
Písecká, České Budějovice 2
ID
J11251
Stavba
Panelová
Stav objektu
Před rekonstrukcí
Patro
5. z 8
Vybaveno
Ano
Lokalita objektu
Centrum obce
Vlastnictví
Družstevní
Užitná plocha
70 m2
Podlahová plocha
76 m2
Třída energetické náročnosti
B - Velmi úsporná
Ukazatel energetické náročnosti
68 kWh/m2 za rok
Elektřina
230V
Odpad
Veřejná kanalizace
Topení
Ústřední dálkové, Jiné
Voda
Vodovod
Topné těleso
Radiátory
Zdroj topení
Ústřední dálkové
Sklep
Lodžie
Výtah
Bezbarierový přístup
Převod do OV

Kontaktovat makléře

Máte zájem o tento byt?

Tímto, v souladu s nařízením Evropského parlamentu a Rady (EU) 2016/679, v platném znění, prohlašuji, že mi je alespoň 16 let a uděluji tak svůj souhlas se zpracováním zadaných údajů (jméno, telefon, e-mail, ip adresa) společnosti B3 Technology, s.r.o., IČ: 07330600, se sídlem Novostavby 126/23, 435 11 Lom (správce dat), za účelem předání dotazu z tohoto formuláře Vámi vybranému inzerentovi a zpětného kontaktování mé osoby. Osobní údaje bude správce zpracovávat manuálně i automaticky přímo prostřednictvím svých zaměstnanců. Informace předané tímto formulářem budou uloženy v databázi správce maximálně po dobu 10 let. Odvolání souhlasu s uložením a zpracováním poskytnutých dat lze e-mailem na info@vitio.cz. V případě podezření na neoprávněné použití Vámi poskytnutých údajů máte právo předat podnět k šetření Úřadu pro ochranu osobních údajů. Více informací
Chystáte se prodat nemovitost?
Pomůžeme Vám!

Inzerát si prohlédlo 3 lidí

Prodejce

Martin Hladílek

Martin Hladílek

Hlídací pes

Chcete dostávat emailem podobné nabídky prodeje bytů 3+1 v Českých Budějovicích?

Podobné nemovitosti