Prodej bytu 4+kk, Brno, Dohnalova, 100 m2

Dohnalova, Brno, Soběšice

16 099 000 Kč /za nemovitost HYPOTÉKA od 71 953 Kč /za měsíc

(včetně DPH, včetně poplatků, včetně provize, včetně právního servisu)

Exkluzivní partneři v Brně

Informace k bytu

Nabízíme prodej bytu v projektu Soběšické louky.
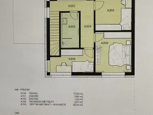
4+kk novostavba na ulici Dohnalova. K mezonetovému bytu náleží dvě parkovací místa a zahrada 244m2 do výlučného užívání. Byt je v domě o pouze dvou bytových jednotkách tedy zaručuje exklusivitu a soukromí v klidné ulici ve vilové části Soběšic.
V ulici je nová školka a MHD cca 300m. Okolí je ideální na procházky v přírodě a čistém skoro venkovském prostředí.

Podlahová plocha bytu 104m2, pozemek 244m2, 2,6m2 sklep

Rezidenční projekt Soběšické louky splňuje ty nejvyšší nároky na klidný a bezpečný domov. Lokalita se chlubí bohatou občanskou vybaveností a krátkou dojezdovou vzdáleností přímo do centra Brna.

Právě díky okolí, do kterého je projekt bezprostředně zasazený a dispozičnímu řešení s vlastní zahradou , nabízí všechny byty v tomto projektu stejný komfort a životní úroveň, jako bydlení v rodinném domě.

Parametry bytu

Cena
16 099 000 Kč /za nemovitost Spočítat hypotéku
Poznámka k ceně
včetně DPH, včetně poplatků, včetně provize, včetně právního servisu
Aktualizováno
23. 10. 2025
Adresa
Dohnalova, Brno, Soběšice
ID
00028
Stavba
Cihlová
Stav objektu
Ve výstavbě
Patro
2. z 2
Vybaveno
Ne
Lokalita objektu
Klidná část obce
Vlastnictví
Osobní
Užitná plocha
100 m2
Podlahová plocha
120 m2
Plocha zahrady
244 m2
Třída energetické náročnosti
G - Mimořádně nehospodárná
Elektřina
230V
Plyn
Plynovod
Odpad
Veřejná kanalizace
Komunikace
Dlážděná
Telekomunikace
Internet, Kabelová televize
Doprava
Silnice, MHD, Autobus
Voda
Vodovod
Topné těleso
Podlahové vytápění
Zdroj topení
Tepelné čerpadlo
Zdroj teplé vody
Tepelné čerpadlo
Sklep
Výtah
Parkování

Kontaktovat makléře

Máte zájem o tento byt?

Tímto, v souladu s nařízením Evropského parlamentu a Rady (EU) 2016/679, v platném znění, prohlašuji, že mi je alespoň 16 let a uděluji tak svůj souhlas se zpracováním zadaných údajů (jméno, telefon, e-mail, ip adresa) společnosti B3 Technology, s.r.o., IČ: 07330600, se sídlem Novostavby 126/23, 435 11 Lom (správce dat), za účelem předání dotazu z tohoto formuláře Vámi vybranému inzerentovi a zpětného kontaktování mé osoby. Osobní údaje bude správce zpracovávat manuálně i automaticky přímo prostřednictvím svých zaměstnanců. Informace předané tímto formulářem budou uloženy v databázi správce maximálně po dobu 10 let. Odvolání souhlasu s uložením a zpracováním poskytnutých dat lze e-mailem na info@vitio.cz. V případě podezření na neoprávněné použití Vámi poskytnutých údajů máte právo předat podnět k šetření Úřadu pro ochranu osobních údajů. Více informací
Chystáte se prodat nemovitost?
Pomůžeme Vám!

Inzerát si prohlédlo 3 lidí

Prodejce

Jakub Vrba

Jakub Vrba

Hlídací pes

Chcete dostávat emailem podobné nabídky prodeje bytů 4+kk v Brně?

Podobné nemovitosti