Mochov
Ve výhradním zastoupení vlastníka nabízíme k prodeji pozemek s velkoryse pojatým rozestavěným rodinným domem o dispozici 6 KK v intravilánu obce Mochov. Možno realizovat i jako dvougenerační (5 KK a 1 KK).
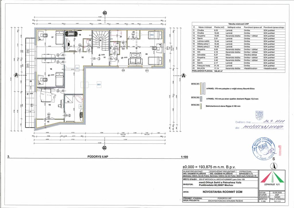
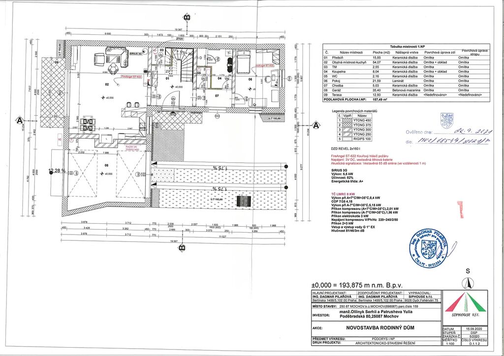
Stavba má platné stavení povolení, a to pro velkou zastavěnou plochu 175 m2. Celková plánovaná užitná plocha stavby je 324 m2, tj. 157,5 m2 v 1 NP a 166,4 m2 v 2 NP (včetně balkónů 12,8 m2 a garáže 35,4 m2).
Celková plocha pozemku je 717 m2.
Velkoryse navržená dispozice domu zahrnuje v 1 NP prostornou obývací halu s kuchyňským koutem o rozloze 54 m2, druhou samostatnou obytnou místnost, sociální zázemí (samostatné WC a samostatná koupelna), technická místnost, hala se schodištěm a prostorná garáž (35,4 m2).
 
V 2 NP je prostorná ložnice, k níž náleží samostatná koupelna a samostatné WC, dále druhá prostorná ložnice, k níž náleží opět samostatná koupelna, a dále dvě menší ložnice se společnou koupelnou a WC.
Dům je navržen tak, že na straně do ulice je počítáno s praktickým atriem o ploše cca 100 m2, za domem je pak plánována klidová zóna  - ničím nerušená zahrada nabízející maximální soukromí (možnost vybudovat např. bazén).
Obec Mochov nabízí velice dobré dopravní napojení na Prahu (Praha – Černý Most je 19 km) a na blízké Čelákovice (4,5 km). Z Čelákovic jezdí příměstský vlak do centra Prahy 30 min s odjezdem ve špičce 3 x za hodinu. Mochov nabízí dobrou základní občanskou vybavenost (základní škola, mateřská škola, pošta, knihovna, nákupní středisko, sokol – fotbal klub, fotbalové hřiště, aj.). V Čelákovicích je pak zbývající infrastruktura, lékaři, plavecký bazén, gymnázium, atletický stadion, kulturní dům aj.
Mochov je i zajímavý výchozí bod pro turistiku a sport. V bezprostřední blízkosti je Kersko, polabská cyklostezka, skanzen v Přerově nad Labem, Přerovská se Semická hůra, Mirakulum aj.
Dokončena je hrubá stavba 1 NP. Jediným důvodem prodeje je stěhování majitelů.
Revoluční 762/13, Praha, Staré Město
Máte zájem o tento pozemek?
Inzerát si prohlédlo 3 lidí
 
                                Mgr. Eva Špačková
Chcete dostávat emailem podobné nabídky prodeje pozemků pro bydlení v Mochovu?