Prodej bytu 1+kk, České Budějovice, Rudolfovská tř., 36 m2 (ID: 2481325)

Rudolfovská tř., České Budějovice

3 672 000 Kč /za nemovitost HYPOTÉKA od 16 412 Kč /za měsíc

(včetně služeb RK a právního servisu)

Exkluzivní partneři v Českých Budějovicích

Informace k bytu

ZAHÁJENÍ PRODEJE: Dva poslední volné investiční byty 1+kk 36 m² v nové cihlové rezidenci!
S radostí oznamujeme zahájení prodeje bytů v novém komorním projektu. Nabízíme vám jedinečnou příležitost být mezi prvními a zajistit si tak investici s vysokým potenciálem zhodnocení ještě před dokončením stavby. Výstavba je v plném proudu a předpokládaný termín dokončení je stanoven na konec roku 2025 (v případě, že nenastanou nepředvídatelné komplikace).
Pro koho je projekt ideální?
• Pro investory: Dispozice 1+kk je na trhu s pronájmy dlouhodobě nejžádanější. Získáte tak nemovitost, která si na sebe dokáže efektivně vydělávat.
• Pro jednotlivce a páry: Perfektní startovací bydlení s nízkými provozními náklady v novostavbě.
• Pro seniory: Umístění ve zvýšeném přízemí zajišťuje pohodlný a téměř bezbariérový přístup.
Úvodní nabídka bytů k prodeji:
Buďte první, kdo si vybere byt, který nejlépe odpovídá vašim představám a investičnímu záměru:
• Byt o výměře 36 m² – cena 3.672.000 Kč
Všechny ceny jsou konečné a zahrnují kompletní právní servis i provizi RK. 30% ceny platba po rezervaci, 70% po podpisu Kupní smlouvy.
Klíčové parametry projektu:
• Konstrukce: Poctivý cihlový dům zaručující skvělé tepelně-izolační vlastnosti a dlouhou životnost.
• Parkování: Parkoviště 5 míst u domu na soukromém parkovišti, prodej samostatně 485.000,- za 1 místo, platí do vyprodání volných míst.
• PENB: Průkaz energetické náročnosti budovy bude v souladu se zákonem dodán po dokončení stavby.
Lokalita, která má vše:
Byty se nachází ve strategicky výhodné lokalitě, která kombinuje klid s perfektní dostupností.
• Centrum obce: Pouhých 500 metrů, tedy pár minut chůze.
• Dopravní dostupnost: Vlakové nádraží vzdálené jen 400 metrů.
Proč investovat právě teď?
Koupě nemovitosti v úvodní fázi prodeje s sebou přináší nejlepší výběr a jistotu zhodnocení investice ihned po kolaudaci. Buďte o krok napřed.
Získejte kompletní informace:
Zaujala Vás tato nabídka? Pro bližší informace, detailní podklady k projektu a domluvení osobní schůzky neváhejte kontaktovat naši realitní kancelář.
Domluvte si schůzku a buďte mezi prvními, kdo si vybere nejlepší byt pro své plány!
________________________________________
Upozornění: Fotografie označené hvězdičkou (*) v pravém dolním rohu jsou vizualizovány pomocí umělé inteligence a slouží pouze pro ilustraci možného budoucího stavu.

Parametry bytu

Cena
3 672 000 Kč /za nemovitost Spočítat hypotéku
Poznámka k ceně
včetně služeb RK a právního servisu
Aktualizováno
26. 10. 2025
Adresa
Rudolfovská tř., České Budějovice
ID
22012
Stavba
Smíšená
Stav objektu
Ve výstavbě
Patro
1. z 3
Vybaveno
Ne
Lokalita objektu
Centrum obce
Vlastnictví
Osobní
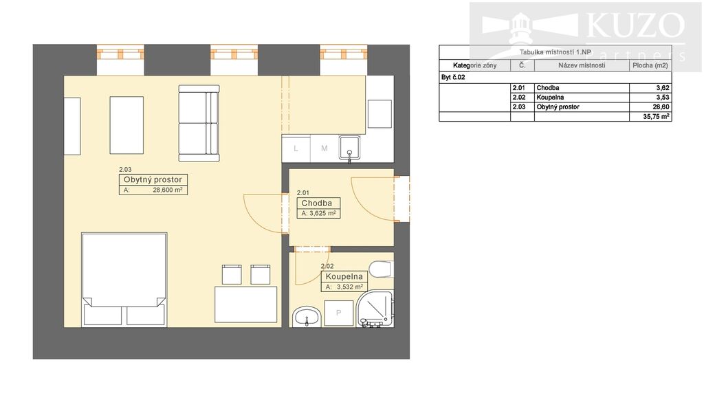
Užitná plocha
36 m2
Zastavěná plocha
216 m2
Podlahová plocha
36 m2
Třída energetické náročnosti
G - Mimořádně nehospodárná

Kontaktovat makléře

Realitní kancelář

Logo KUZO Partners s.r.o.

KUZO Partners s.r.o.

Olbrachtova 599/8, Mladá Boleslav

Chystáte se prodat nemovitost?
Pomůžeme Vám!

Máte zájem o tento byt?

Tímto, v souladu s nařízením Evropského parlamentu a Rady (EU) 2016/679, v platném znění, prohlašuji, že mi je alespoň 16 let a uděluji tak svůj souhlas se zpracováním zadaných údajů (jméno, telefon, e-mail, ip adresa) společnosti B3 Technology, s.r.o., IČ: 07330600, se sídlem Novostavby 126/23, 435 11 Lom (správce dat), za účelem předání dotazu z tohoto formuláře Vámi vybranému inzerentovi a zpětného kontaktování mé osoby. Osobní údaje bude správce zpracovávat manuálně i automaticky přímo prostřednictvím svých zaměstnanců. Informace předané tímto formulářem budou uloženy v databázi správce maximálně po dobu 10 let. Odvolání souhlasu s uložením a zpracováním poskytnutých dat lze e-mailem na info@vitio.cz. V případě podezření na neoprávněné použití Vámi poskytnutých údajů máte právo předat podnět k šetření Úřadu pro ochranu osobních údajů. Více informací
Chystáte se prodat nemovitost?
Pomůžeme Vám!

Inzerát si prohlédlo 12 lidí

Prodejce

Vladimír Nýdl

Vladimír Nýdl

Hlídací pes

Chcete dostávat emailem podobné nabídky prodeje bytů 1+kk v Českých Budějovicích?

Top nabídky

Podobné nemovitosti