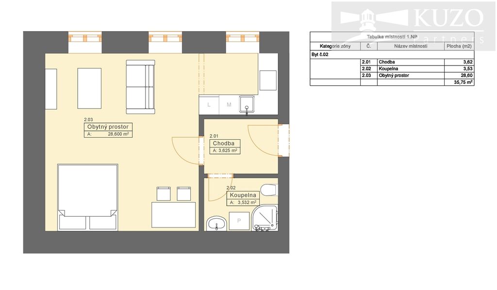
Prodej bytu 1+kk, České Budějovice, Rudolfovská tř., 22 m2 (ID: 2481325)

Rudolfovská tř., České Budějovice

2 244 000 Kč /za nemovitost HYPOTÉKA od 10 029 Kč /za měsíc

(včetně služeb RK a právního servisu)

Exkluzivní partneři v Českých Budějovicích

Informace k bytu

ZAHÁJENÍ PRODEJE: Investiční byty 1+kk 22 m² - 36 m² v nové cihlové rezidenci!
S radostí oznamujeme zahájení prodeje bytů v novém komorním projektu. Nabízíme vám jedinečnou příležitost být mezi prvními a zajistit si tak investici s vysokým potenciálem zhodnocení ještě před dokončením stavby. Výstavba je v plném proudu a předpokládaný termín dokončení je stanoven na konec roku 2025 (v případě, že nenastanou nepředvídatelné komplikace).
Pro koho je projekt ideální?
• Pro investory: Dispozice 1+kk je na trhu s pronájmy dlouhodobě nejžádanější. Získáte tak nemovitost, která si na sebe dokáže efektivně vydělávat.
• Pro jednotlivce a páry: Perfektní startovací bydlení s nízkými provozními náklady v novostavbě.
• Pro seniory: Umístění ve zvýšeném přízemí zajišťuje pohodlný a téměř bezbariérový přístup.
Úvodní nabídka bytů k prodeji:
Buďte první, kdo si vybere byt, který nejlépe odpovídá vašim představám a investičnímu záměru:
• Byt o výměře 36 m² – cena 3.672.000 Kč
• Byt o výměře 36 m² – cena 3.672.000 Kč
• Byt o výměře 31 m² – cena 3.162.000 Kč
• Byt o výměře 22 m² – cena 2.244.000 Kč
Všechny ceny jsou konečné a zahrnují kompletní právní servis i provizi RK.
Klíčové parametry projektu:
• Konstrukce: Poctivý cihlový dům zaručující skvělé tepelně-izolační vlastnosti a dlouhou životnost.
• Parkování: Parkoviště 5 míst u domu na soukromém parkovišti, prodej samostatně 485.000,- za 1 místo, platí do vyprodání volných míst.
• PENB: Průkaz energetické náročnosti budovy bude v souladu se zákonem dodán po dokončení stavby.
Lokalita, která má vše:
Byty se nachází ve strategicky výhodné lokalitě, která kombinuje klid s perfektní dostupností.
• Centrum obce: Pouhých 500 metrů, tedy pár minut chůze.
• Dopravní dostupnost: Vlakové nádraží vzdálené jen 400 metrů.
Proč investovat právě teď?
Koupě nemovitosti v úvodní fázi prodeje s sebou přináší nejlepší výběr a jistotu zhodnocení investice ihned po kolaudaci. Buďte o krok napřed.
Získejte kompletní informace:
Zaujala Vás tato nabídka? Pro bližší informace, detailní podklady k projektu a domluvení osobní schůzky neváhejte kontaktovat naši realitní kancelář.
Domluvte si schůzku a buďte mezi prvními, kdo si vybere nejlepší byt pro své plány!
________________________________________
Upozornění: Fotografie označené hvězdičkou (*) v pravém dolním rohu jsou vizualizovány pomocí umělé inteligence a slouží pouze pro ilustraci možného budoucího stavu.

Parametry bytu

Cena
2 244 000 Kč /za nemovitost Spočítat hypotéku
Poznámka k ceně
včetně služeb RK a právního servisu
Aktualizováno
23. 10. 2025
Adresa
Rudolfovská tř., České Budějovice
ID
22012
Stavba
Smíšená
Stav objektu
Ve výstavbě
Patro
1. z 3
Vybaveno
Ne
Lokalita objektu
Centrum obce
Vlastnictví
Osobní
Užitná plocha
22 m2
Zastavěná plocha
216 m2
Podlahová plocha
22 m2
Třída energetické náročnosti
G - Mimořádně nehospodárná

Kontaktovat makléře

Realitní kancelář

Logo KUZO Partners s.r.o.

KUZO Partners s.r.o.

Olbrachtova 599/8, Mladá Boleslav

Chystáte se prodat nemovitost?
Pomůžeme Vám!

Máte zájem o tento byt?

Tímto, v souladu s nařízením Evropského parlamentu a Rady (EU) 2016/679, v platném znění, prohlašuji, že mi je alespoň 16 let a uděluji tak svůj souhlas se zpracováním zadaných údajů (jméno, telefon, e-mail, ip adresa) společnosti B3 Technology, s.r.o., IČ: 07330600, se sídlem Novostavby 126/23, 435 11 Lom (správce dat), za účelem předání dotazu z tohoto formuláře Vámi vybranému inzerentovi a zpětného kontaktování mé osoby. Osobní údaje bude správce zpracovávat manuálně i automaticky přímo prostřednictvím svých zaměstnanců. Informace předané tímto formulářem budou uloženy v databázi správce maximálně po dobu 10 let. Odvolání souhlasu s uložením a zpracováním poskytnutých dat lze e-mailem na info@vitio.cz. V případě podezření na neoprávněné použití Vámi poskytnutých údajů máte právo předat podnět k šetření Úřadu pro ochranu osobních údajů. Více informací
Chystáte se prodat nemovitost?
Pomůžeme Vám!

Inzerát si prohlédlo 3 lidí

Prodejce

Vladimír Nýdl

Vladimír Nýdl

Hlídací pes

Chcete dostávat emailem podobné nabídky prodeje bytů 1+kk v Českých Budějovicích?

Top nabídky

Podobné nemovitosti