Prodej bytu 3+kk, Libenice, 87 m2 (ID: 2481150)

Libenice

4 969 000 Kč /za nemovitost HYPOTÉKA od 22 208 Kč /za měsíc
Exkluzivní partneři v Libenicích

Informace k bytu

Prodej bytu 3+kk v Libenicích, ul. Libenice

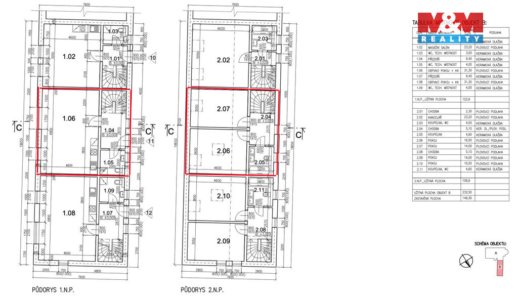
Prodej posledního volného bytu v bytovém domě postaveném v roce 2024 v Libenicích. Byt je dokončen a připraven k užívání. Jedná se o dvoupodlažní byt 3+kk o ploše 87 m2, se samostatným vchodem a vstupem na předzahrádku přímo z obývacího pokoje. Další předzahrádka se nachází u vchodu do bytu. Pocitově i prakticky tak budete bydlet v řadovém rodinném domě.
V I. NP se nachází vstupní chodba, technická místnost s WC a prostorný obývací pokoj s místem pro kuchyňský kout, v II. NP jsou pak umístěny dvě ložnice a koupelna s vanou a WC. Tato nemovitost je ideální volbou pro ty, kteří hledají útulný a zároveň prakticky řešený domov v kvalitě řadového rodinného domu. K bytu náleží k užívání parkovací místo zdarma.
Nízké náklady na bydlení a topení.
Lze financovat hypo úvěrem, který zařídíme.
Ihned k nastěhování.

Parametry bytu

Cena
4 969 000 Kč /za nemovitost Spočítat hypotéku
Aktualizováno
22. 10. 2025
Adresa
Libenice
ID
906511
Stavba
Cihlová
Stav objektu
Novostavba
Vybaveno
Ne
Lokalita objektu
Klidná část obce
Vlastnictví
Osobní
Užitná plocha
87 m2

Kontaktovat makléře

Realitní kancelář

Logo M&M reality

M&M reality

ulice Krakovská 583/9, Praha

Chystáte se prodat nemovitost?
Pomůžeme Vám!

Máte zájem o tento byt?

Tímto, v souladu s nařízením Evropského parlamentu a Rady (EU) 2016/679, v platném znění, prohlašuji, že mi je alespoň 16 let a uděluji tak svůj souhlas se zpracováním zadaných údajů (jméno, telefon, e-mail, ip adresa) společnosti B3 Technology, s.r.o., IČ: 07330600, se sídlem Novostavby 126/23, 435 11 Lom (správce dat), za účelem předání dotazu z tohoto formuláře Vámi vybranému inzerentovi a zpětného kontaktování mé osoby. Osobní údaje bude správce zpracovávat manuálně i automaticky přímo prostřednictvím svých zaměstnanců. Informace předané tímto formulářem budou uloženy v databázi správce maximálně po dobu 10 let. Odvolání souhlasu s uložením a zpracováním poskytnutých dat lze e-mailem na info@vitio.cz. V případě podezření na neoprávněné použití Vámi poskytnutých údajů máte právo předat podnět k šetření Úřadu pro ochranu osobních údajů. Více informací
Chystáte se prodat nemovitost?
Pomůžeme Vám!

Inzerát si prohlédlo 2 lidí

Prodejce

Jiří Jelínek

Jiří Jelínek

Hlídací pes

Chcete dostávat emailem podobné nabídky prodeje bytů 3+kk v Libenicích?

Podobné nemovitosti