Prodej činžovního domu, Praha - Střížkov, Střížkovská, 658 m2

Střížkovská, Praha

49 990 000 Kč /za nemovitost HYPOTÉKA od 223 425 Kč /za měsíc

(včetně provize, cena k jednání)

Exkluzivní partneři v Praze 8

Stěhovací služby

Výkup a prodej starého nábytku

Pojištění a finance

Informace k nemovitosti

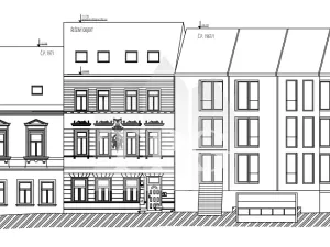
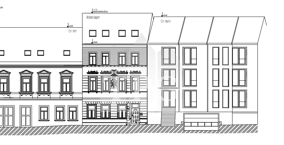
Nabízíme exkluzivně čtyřpatrový činžovní dům ve vyhledávané lokalitě, širším centru Prahy 8 - Libeň. Podlahová plocha je 658 m2. K dispozici je vypracovaná studie na rozšíření plochy na 819 m2 a zvýšení nemovitosti o 1,5 m na úroveň okolní zástavby. Dům je možné předělat na bytový, s luxusními byty, ateliery a parkovacími místy. Stavební povolení na rozšíření stavby je v řízení, čeká se pouze na jeho vydání příslušným úřadem. K rekonstrukci je možné využít i přilehlý pozemek s rovinatými terasami, který je rovněž zahrnutý do stavebního záměru a nabízí k prodeji. Výměra pozemku pod domem je 169 m2 a přilehlé zahrady 837 m2.
Celý pozemek je oplocený sítě je možné vézt jak z ulice Čertův vršek, tak z ulice Střížkovská. Po celé délce pozemku je u plotu vedené betonové schodiště. Propojuje obě rovinaté části.
V KN je uvedená plocha zahrady 796 m2 a 41m2 stavba. V horní části pozemku byla stavba, menší domek, který majitel nechal zbourat. Domek v horní části je možné obnovit.
Dům, ve kterém se zastavil čas, dýchne na vás kus historie, je určený zvláště pro milovníky staré Prahy a domů z doby secese, navíc se nachází v klidné lokalitě.
V současné době je využívaný jako penzion se 40 lůžky. V přízemí se nachází 3 místnosti - 7 lůžek, v prvním patře je šest místností -13 lůžek, ve druhém patře čtyři místnosti - 9 lůžek, v podkroví jsou dvě místnosti 5 lůžek. Pokoje mají k dispozici kuchyně a koupelny. Ve vestibulu jsou dva byty 1+kk a 1+1 celkem 6 lůžek. Penzion díky výborné dostupnosti /autobus, tramvaj, metro/ je plně obsazen.
Čistý měsíční zisk po odečtení provozních nákladů činí cca 250 tis. Kč / nejsou započítané náklady na běžné opravy/.
Více informací u makléře.

Parametry nemovitosti

Cena
49 990 000 Kč /za nemovitost Spočítat hypotéku
Poznámka k ceně
včetně provize, cena k jednání
Aktualizováno
16. 10. 2025
Adresa
Střížkovská, Praha
ID
000088
Stavba
Smíšená
Stav objektu
Před rekonstrukcí
Vybaveno
Částečně
Lokalita objektu
Klidná část obce
Užitná plocha
658 m2
Zastavěná plocha
135 m2
Odpad
Veřejná kanalizace
Doprava
MHD

Kontaktovat makléře

Realitní kancelář

TPGroup

Klimentská 1216/46, Praha

Chystáte se prodat nemovitost?
Pomůžeme Vám!

Máte zájem o tuto nemovistost?

Tímto, v souladu s nařízením Evropského parlamentu a Rady (EU) 2016/679, v platném znění, prohlašuji, že mi je alespoň 16 let a uděluji tak svůj souhlas se zpracováním zadaných údajů (jméno, telefon, e-mail, ip adresa) společnosti B3 Technology, s.r.o., IČ: 07330600, se sídlem Novostavby 126/23, 435 11 Lom (správce dat), za účelem předání dotazu z tohoto formuláře Vámi vybranému inzerentovi a zpětného kontaktování mé osoby. Osobní údaje bude správce zpracovávat manuálně i automaticky přímo prostřednictvím svých zaměstnanců. Informace předané tímto formulářem budou uloženy v databázi správce maximálně po dobu 10 let. Odvolání souhlasu s uložením a zpracováním poskytnutých dat lze e-mailem na info@vitio.cz. V případě podezření na neoprávněné použití Vámi poskytnutých údajů máte právo předat podnět k šetření Úřadu pro ochranu osobních údajů. Více informací
Chystáte se prodat nemovitost?
Pomůžeme Vám!
Theleadway banner

Inzerát si prohlédlo 47 lidí

Prodejce

Ing. Irena Maršalová

Ing. Irena Maršalová

Hlídací pes

Chcete dostávat emailem podobné nabídky prodeje činžovních domů v Praze 8?

Podobné nemovitosti