Prodej bytu 1+kk, Brno, Celní, 39 m2

Celní, Brno, Štýřice

5 295 000 Kč /za nemovitost HYPOTÉKA od 23 665 Kč /za měsíc

(včetně provize, včetně právního servisu)

Exkluzivní partneři v Brně

Informace k bytu

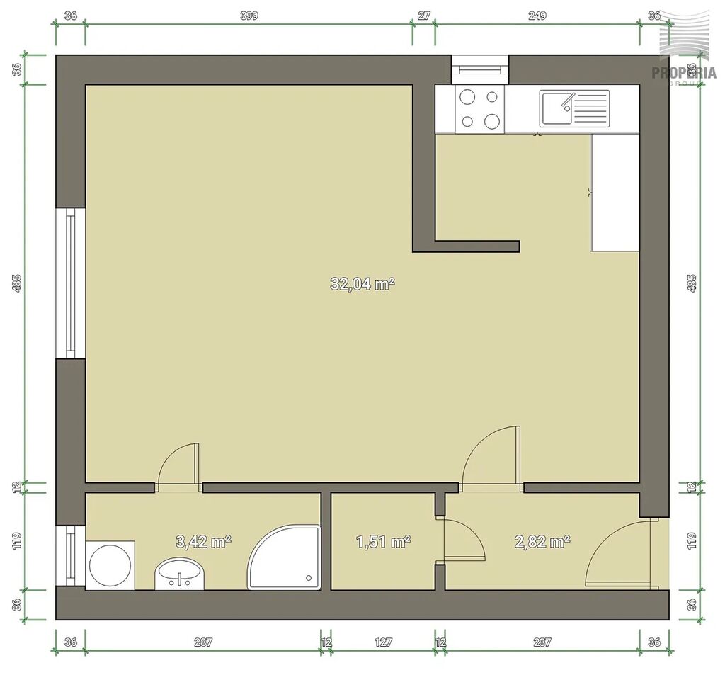
Prodej prostorného bytu 1+kk o velikosti 39m2 a celkové ploše 42m2. Byt se nachází na ulici Celní, která nabízí jak skvělou a rychlou dostupnost přímo do centra, tak i klid s výhledem do zeleně a na hrad Špilberk. Byt je po rekonstrukci a připravený jak k nastěhování., tak i k investici. K bytu náleží i velký zděný sklep. Bytový dům je ve výborném stavu a průběžně prochází rekonstrukcí (nová okna, veškeré rozvody, zabezpečovací systém a atd...), nyní je schválená realizace výtahu.
K zajištění financování koupě tohoto domu jsme připraveni rychle a výhodně prodat nebo vykoupit vaši stávající nemovitost, vyřídit zajímavou hypotéku. Pro domluvení prohlídky kontaktujte uvedeného makléře.

Parametry bytu

Cena
5 295 000 Kč /za nemovitost Spočítat hypotéku
Poznámka k ceně
včetně provize, včetně právního servisu
Aktualizováno
15. 10. 2025
Adresa
Celní, Brno, Štýřice
ID
03642
Stavba
Cihlová
Stav objektu
Velmi dobrý
Patro
2. z 4
Vybaveno
Částečně
Vlastnictví
Osobní
Užitná plocha
39 m2
Podlahová plocha
42 m2
Třída energetické náročnosti
G - Mimořádně nehospodárná
Plyn
Plynovod
Komunikace
Asfaltová
Telekomunikace
Internet, Kabelové rozvody
Doprava
Vlak, Dálnice, Silnice, MHD, Autobus
Voda
Vodovod
Topné těleso
WAW
Zdroj topení
WAW
Zdroj teplé vody
Bojler - elektro
Sklep
Výtah

Kontaktovat makléře

Máte zájem o tento byt?

Tímto, v souladu s nařízením Evropského parlamentu a Rady (EU) 2016/679, v platném znění, prohlašuji, že mi je alespoň 16 let a uděluji tak svůj souhlas se zpracováním zadaných údajů (jméno, telefon, e-mail, ip adresa) společnosti B3 Technology, s.r.o., IČ: 07330600, se sídlem Novostavby 126/23, 435 11 Lom (správce dat), za účelem předání dotazu z tohoto formuláře Vámi vybranému inzerentovi a zpětného kontaktování mé osoby. Osobní údaje bude správce zpracovávat manuálně i automaticky přímo prostřednictvím svých zaměstnanců. Informace předané tímto formulářem budou uloženy v databázi správce maximálně po dobu 10 let. Odvolání souhlasu s uložením a zpracováním poskytnutých dat lze e-mailem na info@vitio.cz. V případě podezření na neoprávněné použití Vámi poskytnutých údajů máte právo předat podnět k šetření Úřadu pro ochranu osobních údajů. Více informací
Chystáte se prodat nemovitost?
Pomůžeme Vám!

Inzerát si prohlédlo 0 lidí

Prodejce

Michal Potičný

Michal Potičný

Hlídací pes

Chcete dostávat emailem podobné nabídky prodeje bytů 1+kk v Brně?

Podobné nemovitosti