Prodej bytu 3+1, Praha - Hlubočepy, Pražského, 76 m2 (ID: 2477742)

Pražského, Praha, Hlubočepy

8 800 000 Kč /za nemovitost HYPOTÉKA od 39 331 Kč /za měsíc
Exkluzivní partneři v Praze 5

Stěhovací služby

Výkup a prodej starého nábytku

Informace k bytu

Stojíte před skvělou příležitostí stát se vlastníkem bytu s výhledem na panorama Prahy ve vyhledávané části Hlubočepy sídliště Barrandov.
Nabízíme k prodeji útulný a světlý byt 3+1 s užitnou plochou 76 metrů čtverečních, nacházející se na šestém patře, sedmipatrového domu s výtahem na adrese Pražského 636/34. Dům je situován v klidné části s výbornou dostupností veřejné dopravy, obchodů a služeb.

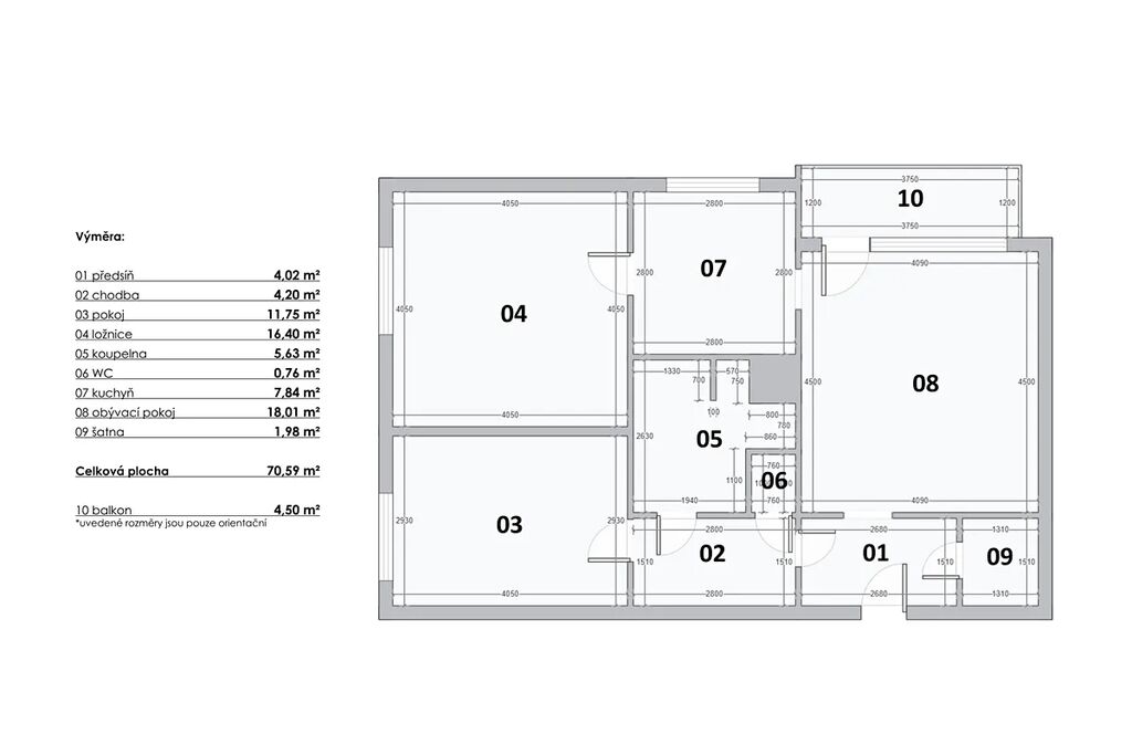
Byt se pyšní nejen skvělým rozložením, ale světlostí díky jihozápadní orientaci. Dispozice bytu zahrnuje obývací pokoj, dvě neprůchozí ložnice, koupelnu, samostatné WC a praktickou komoru. Z obývacího pokoje je přístup na zasklenou lodžii o velikosti 4,5 metru čtverečního, která umožňuje pohodlné posezení s nádherným výhledem na okolí bez ohledu na počasí.

Interiér bytu je částečně zařízen. Součástí vybavení jsou spotřebiče včetně pračky. Bezpečnostní prvek je zajištěn vchodem na čip a domovním telefonem. Byt je ideální volbou jak pro rodiny s dětmi kvůli blízkosti škol, školek a parků, tak pro jednotlivce či páry, kteří ocení blízkost kultury a zábavních možností, jež nabízí metropole.

Nový majitel má možnost si na tento byt vzít hypotéku, což může proces koupi usnadnit.

Cena tohoto bytu je stanovena na 8 800 000 CZK a zahrnuje také sklep. Tato nemovitost je ideální volbou pro ty, kteří hledají komfortní bydlení v Praze s vynikajícím spojením do centra a zároveň si potrpí na klid a soukromí.

Nejenže je lokalita Hlubočepy známá svou kompletní občanskou vybaveností včetně širokého výběru škol, zdravotnických zařízení, obchodů a míst pro volný čas, ale také vyniká skvělou dopravní dostupností. Veřejná doprava včetně autobusu a metra je na dosah, stejně jako hlavní dopravní tepny, které umožní snadné a rychlé spojení s ostatními částmi Prahy i okolím.

Pokud tedy hledáte byt v Praze, který kombinuje moderní bydlení s přístupem k zeleni a zároveň nabízí výhody městského života, tento byt by rozhodně měl být ve vašem úvahu. Navštívit tento byt a prožít pocit domova je něco, co si zaslouží každý zájemce o kvalitní bydlení.

Parametry bytu

Cena
8 800 000 Kč /za nemovitost Spočítat hypotéku
Aktualizováno
9. 11. 2025
Adresa
Pražského, Praha, Hlubočepy
ID
967093
Stavba
Panelová
Stav objektu
Velmi dobrý
Patro
7. z 9
Vybaveno
Částečně
Vlastnictví
Osobní
Užitná plocha
76 m2
Podlahová plocha
81 m2
Třída energetické náročnosti
B - Velmi úsporná
Ukazatel energetické náročnosti
81 kWh/m2 za rok
Doprava
Silnice, MHD
Sklep
Lodžie
Výtah

Kontaktovat makléře

Máte zájem o tento byt?

Tímto, v souladu s nařízením Evropského parlamentu a Rady (EU) 2016/679, v platném znění, prohlašuji, že mi je alespoň 16 let a uděluji tak svůj souhlas se zpracováním zadaných údajů (jméno, telefon, e-mail, ip adresa) společnosti B3 Technology, s.r.o., IČ: 07330600, se sídlem Novostavby 126/23, 435 11 Lom (správce dat), za účelem předání dotazu z tohoto formuláře Vámi vybranému inzerentovi a zpětného kontaktování mé osoby. Osobní údaje bude správce zpracovávat manuálně i automaticky přímo prostřednictvím svých zaměstnanců. Informace předané tímto formulářem budou uloženy v databázi správce maximálně po dobu 10 let. Odvolání souhlasu s uložením a zpracováním poskytnutých dat lze e-mailem na info@vitio.cz. V případě podezření na neoprávněné použití Vámi poskytnutých údajů máte právo předat podnět k šetření Úřadu pro ochranu osobních údajů. Více informací
Chystáte se prodat nemovitost?
Pomůžeme Vám!

Inzerát si prohlédlo 18 lidí

Prodejce

Vendula Hlaváčová

Vendula Hlaváčová

Hlídací pes

Chcete dostávat emailem podobné nabídky prodeje bytů 3+1 v Praze 5?

Podobné nemovitosti