Prodej bytu 2+1, Praha - Hostivař, U Pekáren, 91 m2 (ID: 2477051)

U Pekáren, Praha, Hostivař

8 782 000 Kč /za nemovitost HYPOTÉKA od 39 250 Kč /za měsíc
Exkluzivní partneři v Praze 10

Stěhovací služby

Výkup a prodej starého nábytku

Informace k bytu

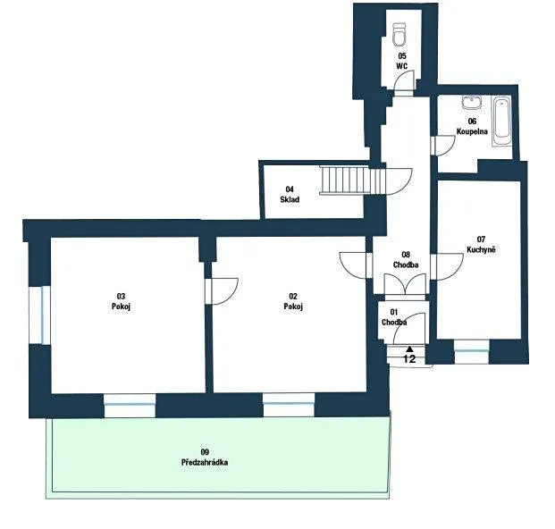
Bytová jednotka o dispozici 2+1 se nachází v 1. podlaží nově zrekonstruovaného domu v projektu U Pekáren. Podlahová plocha bytu činí 90,9 m² a díky orientaci na jih je prostor krásně prosvětlený po celý den. Součástí je vlastní předzahrádka o ploše 22,9 m², která nabízí možnost soukromého venkovního posezení nebo drobného pěstování bylinek, zeleniny nebo květin. Součástí jednotky je vyhrazené parkovací stání a možnost využívání rozlehlé společné zahrady ve vnitrobloku.
Byt je v původním stavu a před rekonstrukcí, což umožňuje novému majiteli přizpůsobit si interiér zcela podle vlastních představ. K dispozici je příprava na kuchyň, původní koupelna, repasované interiérové dveře, plastová okna a původní podlahy. Bytový dům U Pekáren prošel celkovou revitalizací – byly zrekonstruovány hlavní rozvody, obnovena fasáda včetně výmalby a ve vnitrobloku přibyl nový výtah. Upravené společné prostory a komunitní zahrada podtrhují pohodový charakter celého projektu.
Lokalita nabízí výbornou dostupnost do centra Prahy. Příměstské vlaky ze stanice Praha-Hostivař, která je přímo u domu, jezdí ve špičce každých 10 minut a cesta do centra trvá přibližně 13 minut. Zastávka tramvaje Nádraží Hostivař je vzdálena 5 minut chůze. Parkování v okolí není omezeno modrou zónou.
V docházkové vzdálenosti se nachází základní a mateřská škola, supermarket Lidl (15 minut pěšky nebo 4 minuty autem) a další služby. Přírodní okolí nabízí možnosti relaxace i sportu – lesopark u Hostivařské přehrady je dostupný pěšky, stejně jako plavecký bazén a sportovní zázemí Univerzity Karlovy. V okolí působí také sportovní kluby TJ Sokol Hostivař, SK Horní Měcholupy nebo HBC Hostivař. Byt v projektu U Pekáren představuje dostupnou formu vlastního bydlení s potenciálem k dalšímu zhodnocení nebo vhodnou investici k pronájmu. Díky lokalitě, velikosti a stavu nabízí značnou flexibilitu pro budoucí využití.

Parametry bytu

Cena
8 782 000 Kč /za nemovitost Spočítat hypotéku
Aktualizováno
15. 10. 2025
Adresa
U Pekáren, Praha, Hostivař
ID
PEK12
Stavba
Cihlová
Stav objektu
Po rekonstrukci
Patro
1. z 3
Lokalita objektu
Klidná část obce
Vlastnictví
Osobní
Užitná plocha
91 m2
Zastavěná plocha
91 m2
Podlahová plocha
126 m2
Plocha zahrady
23 m2
Třída energetické náročnosti
D - Méně úsporná
Doprava
Vlak, Dálnice, Silnice, MHD, Autobus
Výtah
Parkování

Kontaktovat makléře

Realitní kancelář

Logo PSN s.r.o.

PSN s.r.o.

Seifertova 823/9, Praha 3

Chystáte se prodat nemovitost?
Pomůžeme Vám!

Máte zájem o tento byt?

Tímto, v souladu s nařízením Evropského parlamentu a Rady (EU) 2016/679, v platném znění, prohlašuji, že mi je alespoň 16 let a uděluji tak svůj souhlas se zpracováním zadaných údajů (jméno, telefon, e-mail, ip adresa) společnosti B3 Technology, s.r.o., IČ: 07330600, se sídlem Novostavby 126/23, 435 11 Lom (správce dat), za účelem předání dotazu z tohoto formuláře Vámi vybranému inzerentovi a zpětného kontaktování mé osoby. Osobní údaje bude správce zpracovávat manuálně i automaticky přímo prostřednictvím svých zaměstnanců. Informace předané tímto formulářem budou uloženy v databázi správce maximálně po dobu 10 let. Odvolání souhlasu s uložením a zpracováním poskytnutých dat lze e-mailem na info@vitio.cz. V případě podezření na neoprávněné použití Vámi poskytnutých údajů máte právo předat podnět k šetření Úřadu pro ochranu osobních údajů. Více informací
Chystáte se prodat nemovitost?
Pomůžeme Vám!

Inzerát si prohlédlo 21 lidí

Prodejce

Simon Lukavský

Simon Lukavský

Hlídací pes

Chcete dostávat emailem podobné nabídky prodeje bytů 2+1 v Praze 10?

Podobné nemovitosti