Prodej bytu 5+kk, Praha - Hradčany, Pohořelec, 145 m2

Pohořelec, Praha, Hradčany

32 600 000 Kč /za nemovitost HYPOTÉKA od 145 702 Kč /za měsíc
Exkluzivní partneři v Praze 1

Stěhovací služby

Výkup a prodej starého nábytku

Informace k bytu

Hledáte domov, který zaujme nejen svou velkorysou dispozicí a velikostí, ale především polohou, architekturou a jedinečným geniem loci typickým pro okolí Petřína a Pražského hradu? 

 

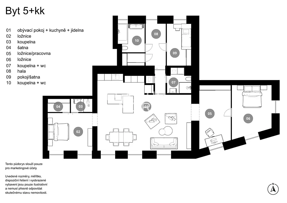
Nabízíme Vám světlý a vzdušný byt 5+kk o celkové ploše 145 m² ve 3. nadzemním podlaží historického cihlového domu jen pár kroků od Pražského hradu a Petřínských sadů. Tento exkluzivní nemovitost vás okouzlí svými výhledy i neopakovatelnou atmosférou jedné z nejprestižnějších lokalit v Praze. Dispozice bytu je velmi praktická. Prostorný obývací pokoj s jižní orientací plynule navazuje na nadčasovou kuchyni na míru značky Hanák. Hlavní ložnice disponuje vlastní šatnou a koupelnou se sprchovým koutem. Dvě průchozí ložnice, oddělené moderními skleněnými posuvnými dveřmi, lze využít jako dětské pokoje, pracovnu či pokoj pro hosty. Byt doplňují další dvě koupelny (jedna s vanou, druhá se sprchou a WC) a prostorná vstupní hala. 


Součástí bytu je také velkorysá šatna s dostatkem úložného prostoru, kterou lze snadno využít zpět na ložnici. Vstup z klidné pavlače zajišťuje dostatek soukromí.


Bytová jednotka se prodává jako 100% podíl ve firmě nově vzniklé společnosti. 


Byt prošel v roce 2014 kompletní rekonstrukcí včetně nových rozvodů vody, elektřiny, povrchů, podlah a koupelen. Kuchyň na míru je značky Hanák je vybavena spotřebiči Electrolux. V celém bytě jsou dřevěná okna a dubové mozaikové parkety, v koupelnách a chodbě kvalitní dlažba. Vytápění zajišťuje vlastní kondenzační kotel Viessmann, který nabízí nízké provozní náklady a komfortní regulaci teploty. Sklepní koje je součástí prodeje jednotky a parkování je v současné době možné ve dvoře domu na základě dlouhodobé dohody s MČ Praha 1, která umožňuje parkování rezidentům domu. Dům je udržovaný a příjemný.


Pohořelec je synonymem prestiže a historického kouzla. Jen pár minut chůze vás dělí od Pražského hradu, Lorety nebo Petřínských sadů. V bezprostředním okolí najdete útulné kavárny, vyhlášené restaurace, obchůdky i kvalitní školy a školky. Výborná dopravní dostupnost je zajištěna tramvajovými spoji (zastávka Pohořelec), které vás během několika minut dopraví do centra města. Hradčany patří mezi nejvyhledávanější pražské čtvrti, které kombinují klid rezidenčního prostředí, historii a kulturní bohatství s veškerými službami moderního života. Tento byt představuje mimořádnou příležitost pro ty, kteří hledají prémiové bydlení s neopakovatelnou atmosférou a jistou investiční hodnotou. 

Parametry bytu

Cena
32 600 000 Kč /za nemovitost Spočítat hypotéku
Aktualizováno
20. 1. 2026
Adresa
Pohořelec, Praha, Hradčany
ID
532087
Stavba
Cihlová
Stav objektu
Velmi dobrý
Patro
3. z 3
Vybaveno
Částečně
Vlastnictví
Osobní
Užitná plocha
145 m2
Třída energetické náročnosti
G - Mimořádně nehospodárná
Sklep
Výtah
Převod do OV
Parkování

Kontaktovat makléře

Máte zájem o tento byt?

Tímto, v souladu s nařízením Evropského parlamentu a Rady (EU) 2016/679, v platném znění, prohlašuji, že mi je alespoň 16 let a uděluji tak svůj souhlas se zpracováním zadaných údajů (jméno, telefon, e-mail, ip adresa) společnosti B3 Technology, s.r.o., IČ: 07330600, se sídlem Novostavby 126/23, 435 11 Lom (správce dat), za účelem předání dotazu z tohoto formuláře Vámi vybranému inzerentovi a zpětného kontaktování mé osoby. Osobní údaje bude správce zpracovávat manuálně i automaticky přímo prostřednictvím svých zaměstnanců. Informace předané tímto formulářem budou uloženy v databázi správce maximálně po dobu 10 let. Odvolání souhlasu s uložením a zpracováním poskytnutých dat lze e-mailem na info@vitio.cz. V případě podezření na neoprávněné použití Vámi poskytnutých údajů máte právo předat podnět k šetření Úřadu pro ochranu osobních údajů. Více informací
Chystáte se prodat nemovitost?
Pomůžeme Vám!

Inzerát si prohlédlo 13 lidí

Prodejce

Adéla Bukovská - recepce

Adéla Bukovská - recepce

Hlídací pes

Chcete dostávat emailem podobné nabídky prodeje bytů 5+kk v Praze 1?

Podobné nemovitosti