Prodej obchodního prostoru, Hodonín, Cihlářská čtvrť, 61 m2

Cihlářská čtvrť, Hodonín

2 680 000 Kč /za nemovitost HYPOTÉKA od 11 978 Kč /za měsíc

(včetně provize, včetně právního servisu)

Exkluzivní partneři v Hodoníně

Informace k nemovitosti

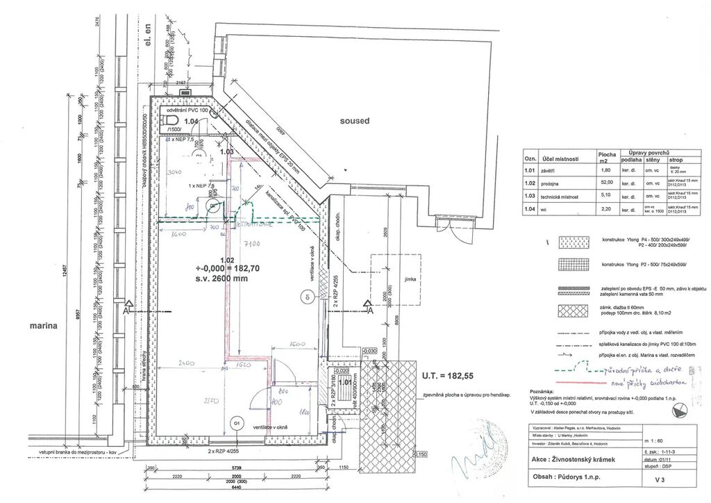
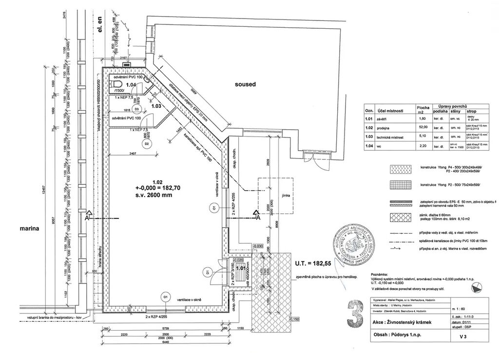
Prodej nebytového prostoru v Hodoníně na ulici Cihlářská čtvrť v katastru nemovitostí vedený, jako zastavěná plocha a nádvoří o výměře 109 m2, obchod.

Kolaudace prostoru – obchodu v roce 2016. V roce 2023 vydaný souhlas se změnou užívání na provozování kosmetických služeb.

Celková užitná plocha 61 m2, bezbariérový vstup přímo z ulice, velká plastová okna (výlohy).

Dispozice: zádveří 1,8 m2, prodejní plocha 52 m2 (rozdělena sádrokartonovou příčkou na 2 prostory) technická místnost (kuchyňka se skladem) 5,1 m2, WC s umyvadlem 2,2 m2.

Vybavení:
plastové vstupní dveře i okna (dvojskla) + parapety, rovná plechová střecha, povrch podlah dlažba, kovové zárubně, elektřina 220/380 (vlastní elektroměr, nízký a vysoký tarif, MND), voda (vlastní vodoměr, bojler na ohřev teplé vody, Vodárny a kanalizace Hodonín), plyn zaveden není, odpadní jímka (septik) společný s vedlejším nevyužívaným nebytovým prostorem (obchod – vývoz 1 ročně, kosmetika – vývoz 4x ročně), vytápění – klimatizace + stropní elektrické přímotopy, internet, osvětlení – obchodní prostor zářivky, v ostatních prostorách nástěnné světlo, 3x interiérové dveře.

Prostor je vyklizený, ihned k dispozici.

Nemovitost není zatížena žádným zástavním právem, věcným břemenem ani nájemní smlouvou. Možná úhrada kupní ceny hypotečním úvěrem.

Parametry nemovitosti

Cena
2 680 000 Kč /za nemovitost Spočítat hypotéku
Poznámka k ceně
včetně provize, včetně právního servisu
Aktualizováno
19. 11. 2025
Adresa
Cihlářská čtvrť, Hodonín
ID
53204
Stavba
Cihlová
Stav objektu
Velmi dobrý
Patro
1.
Vybaveno
Ne
Lokalita objektu
Sídliště
Užitná plocha
61 m2
Zastavěná plocha
109 m2
Třída energetické náročnosti
G - Mimořádně nehospodárná
Bezbarierový přístup

Kontaktovat makléře

Máte zájem o tuto nemovistost?

Tímto, v souladu s nařízením Evropského parlamentu a Rady (EU) 2016/679, v platném znění, prohlašuji, že mi je alespoň 16 let a uděluji tak svůj souhlas se zpracováním zadaných údajů (jméno, telefon, e-mail, ip adresa) společnosti B3 Technology, s.r.o., IČ: 07330600, se sídlem Novostavby 126/23, 435 11 Lom (správce dat), za účelem předání dotazu z tohoto formuláře Vámi vybranému inzerentovi a zpětného kontaktování mé osoby. Osobní údaje bude správce zpracovávat manuálně i automaticky přímo prostřednictvím svých zaměstnanců. Informace předané tímto formulářem budou uloženy v databázi správce maximálně po dobu 10 let. Odvolání souhlasu s uložením a zpracováním poskytnutých dat lze e-mailem na info@vitio.cz. V případě podezření na neoprávněné použití Vámi poskytnutých údajů máte právo předat podnět k šetření Úřadu pro ochranu osobních údajů. Více informací
Chystáte se prodat nemovitost?
Pomůžeme Vám!

Inzerát si prohlédlo 18 lidí

Prodejce

Nikola Charvátová

Nikola Charvátová

Hlídací pes

Chcete dostávat emailem podobné nabídky prodeje obchodních prostor v Hodoníně?

Podobné nemovitosti