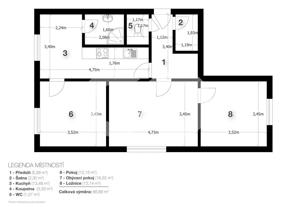
Prodej bytu 3+1, Volary, Sídl. Míru, 65 m2

Sídl. Míru, Volary

2 050 000 Kč /za nemovitost HYPOTÉKA od 9 162 Kč /za měsíc
Exkluzivní partneři v Volarech

Výkup a prodej starého nábytku

Informace k bytu

Hledáte byt, který si můžete upravit přesně podle svých představ? Pak pro vás mám ideální příležitost.

Ve městě Volary, na samém okraji krásné Šumavy, nabízím ke koupi družstevní byt o dispozici 3+1 a podlahové ploše 65 m².

Byt se nachází v panelovém domě po kompletní rekonstrukci – dům má zateplenou fasádu, nová okna, čisté a udržované společné prostory a příjemné sousedské vztahy, které v domě skutečně fungují. Okolí domu je klidné, zelené a působí velmi upraveně – ideální prostředí pro rodinu nebo kohokoli, kdo hledá pohodu a klidné bydlení.

Samotný byt je v původním, ale plně funkčním a udržovaném stavu. Nabízí tak možnost vytvořit si domov přesně podle sebe – od nového uspořádání až po vlastní design interiéru.

Teplo je zajištěno dálkovým vytápěním, vodovod i kanalizace jsou napojeny na obecní sítě.

Měsíční náklady pro čtyřčlennou rodinu činí 6 166 Kč, což dělá z tohoto bytu úsporné a dostupné bydlení i do budoucna.

Byt je ideální volbou pro ty, kteří hledají klidné místo k bydlení a chtějí si domov zařídit podle sebe.

A co samotné Volary?
Tohle malebné město leží v srdci Šumavy a je ideálním místem pro všechny, kteří mají rádi přírodu, turistiku a klidný životní rytmus. Najdete zde veškerou občanskou vybavenost – školy, školku, obchody - například PENNY i PEPCO, restaurace i vlakové spojení – a zároveň jste jen pár minut od nádherných lesů, cyklostezek a lyžařských tras.

Prodávající si vyhrazuje právo vybrat kupujícího na základě jím zvolených kritérií.



Parametry bytu

Cena
2 050 000 Kč /za nemovitost Spočítat hypotéku
Aktualizováno
13. 11. 2025
Adresa
Sídl. Míru, Volary
ID
100
Stavba
Panelová
Stav objektu
Dobrý
Patro
3.
Lokalita objektu
Klidná část obce
Vlastnictví
Družstevní
Užitná plocha
65 m2
Třída energetické náročnosti
G - Mimořádně nehospodárná
Výtah
Bezbarierový přístup
Převod do OV

Kontaktovat makléře

Máte zájem o tento byt?

Tímto, v souladu s nařízením Evropského parlamentu a Rady (EU) 2016/679, v platném znění, prohlašuji, že mi je alespoň 16 let a uděluji tak svůj souhlas se zpracováním zadaných údajů (jméno, telefon, e-mail, ip adresa) společnosti B3 Technology, s.r.o., IČ: 07330600, se sídlem Novostavby 126/23, 435 11 Lom (správce dat), za účelem předání dotazu z tohoto formuláře Vámi vybranému inzerentovi a zpětného kontaktování mé osoby. Osobní údaje bude správce zpracovávat manuálně i automaticky přímo prostřednictvím svých zaměstnanců. Informace předané tímto formulářem budou uloženy v databázi správce maximálně po dobu 10 let. Odvolání souhlasu s uložením a zpracováním poskytnutých dat lze e-mailem na info@vitio.cz. V případě podezření na neoprávněné použití Vámi poskytnutých údajů máte právo předat podnět k šetření Úřadu pro ochranu osobních údajů. Více informací
Chystáte se prodat nemovitost?
Pomůžeme Vám!

Inzerát si prohlédlo 25 lidí

Prodejce

Lenka Čajanová

Lenka Čajanová

Hlídací pes

Chcete dostávat emailem podobné nabídky prodeje bytů 3+1 v Volarech?

Podobné nemovitosti