Pronájem restaurace, Praha - Žižkov, Ježkova, 64 m2 (ID: 2473551)

Ježkova, Praha, Žižkov

40 000 Kč /za měsíc Získejte výhodnou HYPOTÉKU
Exkluzivní partneři v Praze 3

Stěhovací služby

Výkup a prodej starého nábytku

Informace k nemovitosti

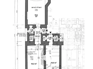
Nabízíme k pronájmu nebytový prostor o velikosti 64 m2 v 1.NP rezidenčního domu ve vyhledávané lokalitě Prahy 3 – Žižkov v
blízkosti Riegrových sadů. Místnost byla dříve využívána jako denní bar, jeho využití je však variabilní, může být využit pro kancelář, obchod atd.
ŽÁDNÉ ODSTUPNÉ ANI VSTUPNÍ POPLATKY – SKVĚLÁ PŘÍLEŽITOST PRO VÁŠ PODNIK!
V této chvíli probíhá v prostoru rekonstrukce (nové dveře, topné radiátory, dlažba, elektroinstalace, malá kuchyňka, bojler, bílé stěny).
VYBAVENÍ
Prostor sestává ze tří místností, chodby, tří samostatných toalet a tří menších skladů. Hlavní vstup je z ulice, v případě potřeby
nebo rozdělení na více jednotek jsou k dispozici dva samostatné vstupy z chodby domu. Ze zadní místnosti je možnost vstupu na domovní dvůr s možností využití zahrady(za příplatek SVJ), kde je také nový domovní výtah.
PENB: C
LOKALITA
JEŽKOVA 1054/10, PRAHA 3 - ŽIŽKOV
Nemovitost se nachází ve vyhledávané lokalitě Prahy 3 – Žižkov v blízkosti náměstí Jiřího z Poděbrad, Riegrových sadů i Rajské zahrady s výbornou dopravní dostupností. V docházkové vzdálenosti je stanice metra i tramvají s rychlým spojením do centra města.
Nájem 40 000 bez poplatku + Poplatky měsíčně 4 000 CZK
Dvojitá kauce 80 000 Kč.
Provize realitní kanceláře 40 000 Kč

Parametry nemovitosti

Cena
40 000 Kč /za měsíc
Aktualizováno
10. 10. 2025
Adresa
Ježkova, Praha, Žižkov
ID
0039
Stavba
Smíšená
Stav objektu
V rekonstrukci
Vybaveno
Částečně
Užitná plocha
64 m2
Zastavěná plocha
243 m2
Třída energetické náročnosti
C - Úsporná
Plyn
Plynovod
Odpad
Veřejná kanalizace

Kontaktovat makléře

Máte zájem o tuto nemovistost?

Tímto, v souladu s nařízením Evropského parlamentu a Rady (EU) 2016/679, v platném znění, prohlašuji, že mi je alespoň 16 let a uděluji tak svůj souhlas se zpracováním zadaných údajů (jméno, telefon, e-mail, ip adresa) společnosti B3 Technology, s.r.o., IČ: 07330600, se sídlem Novostavby 126/23, 435 11 Lom (správce dat), za účelem předání dotazu z tohoto formuláře Vámi vybranému inzerentovi a zpětného kontaktování mé osoby. Osobní údaje bude správce zpracovávat manuálně i automaticky přímo prostřednictvím svých zaměstnanců. Informace předané tímto formulářem budou uloženy v databázi správce maximálně po dobu 10 let. Odvolání souhlasu s uložením a zpracováním poskytnutých dat lze e-mailem na info@vitio.cz. V případě podezření na neoprávněné použití Vámi poskytnutých údajů máte právo předat podnět k šetření Úřadu pro ochranu osobních údajů. Více informací
Chystáte se prodat nemovitost?
Pomůžeme Vám!

Inzerát si prohlédlo 1 lidí

Prodejce

Mgr. Nikita Kormilitsyn

Mgr. Nikita Kormilitsyn

Hlídací pes

Chcete dostávat emailem podobné nabídky pronájmu restaurací v Praze 3?

Podobné nemovitosti