Pronájem ordinace, Praha - Vinohrady, Chrudimská, 360 m2

Chrudimská, Praha, Vinohrady

Rezervováno
350 Kč /za metr čtvereční / měsíc Získejte výhodnou HYPOTÉKU

(cena 350,- Kč/m2/měsíc k jednání, v závislosti na délce nájemní smlouvy)

Exkluzivní partneři v Praze 3

Stěhovací služby

Výkup a prodej starého nábytku

Informace k nemovitosti

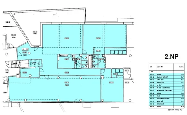
Přímý majitel nabízí k pronájmu nebytové prostory ve 2.NP s pronajímatelnou plochou o výměře 360 m2. Prostory se nacházejí ve 2.NP s výtahem se vstupem z pasáže objektu AGORA FLORA, která je spojnicí ulice Hradecké a Chrudimské. Nabízené prostory mají okna jak do pasáže tak i do vnitrobloku a jsou po rekolaudaci vhodné jako zdravotnické zařízení. Prostory sousedí s ordinacemi dětských lékařů.

Popis objektu a lokalita:
Objekt Agora Flora vznikl revitalizací areálu bývalého elektrotechnického závodu Duda na Královských Vinohradech.
V rámci projektu Agora Flora bylo vybudováno:
• bytové jednotky – 54 jednotek
• nebytové prostory – kanceláře, zdravotnická zařízení, maloobchod, relax
• podzemní parkovací stání

Komplex má exkluzivní polohu, nachází se v centru Vinohrad, a je výborně dostupný pražskou MHD i autem. Stanice metra A – Flora, tramvajové i autobusové zastávky jsou v bezprostřední blízkosti objektu (ca. 100m). Objekt je ohraničen ulicemi Chrudimská, Slezská a Hradecká, má vlastní pasáž s obchody, restaurací, kavárnou propojující Chrudimskou a Hradeckou ulici.

V objektu se nachází mimo jiné:
• prodejna PENNY,
• fitness centrum,
• studio Hot jógy,
• kadeřnictví, manikúra,
• ordinace dětských lékařů,
• ordinace stomatologie a zubní hygieny,
• psychoterapeutická klinika ALETHEA,
• ordinace psychologů,
• restaurace,
• kavárna,
• půjčovna sportovních potřeb (lyže, kola),
• servis jízdních kol

Vybavení budovy:
• ostraha 24/7
• EPS, CCTV
• vstup na čipy
• možnost pronájmu garážích stání přímo v objektu

Technická specifikace prostor:
• elektrická energie, přívod teplé a studené vody,
• vlastní sociální zázemí
• vytápění, chlazení, nucené větrání

Pronajímatel je připraven:
• konzultovat technické požadavky nájemce na úpravu prostor
• realizovat stavební úpravy prostor
• zajistit projednávání požadovaných změn s dotčenými orgány


Nájemce neplatí provizi !!!

Zúčtovatelné zálohy na služby a vlastní spotřebu: výše záloh bude stanovena dle typu využití zvoleného provozu.

Doba nájmu: nájemní smlouva na dobu určitou, min.3 roky.
Jistina: 2 x měsíční nájmy (vč. DPH) + 2 x zálohy na služby.

Pronájem garážového stání je možný v podzemních garážích objektu.

Parametry nemovitosti

Stav
Rezervováno
Cena
350 Kč /za metr čtvereční / měsíc
Poznámka k ceně
cena 350,- Kč/m2/měsíc k jednání, v závislosti na délce nájemní smlouvy
Aktualizováno
30. 4. 2026
Adresa
Chrudimská, Praha, Vinohrady
Stavba
Skeletová
Stav objektu
Velmi dobrý
Patro
2.
Lokalita objektu
Centrum obce
Užitná plocha
360 m2
Třída energetické náročnosti
B - Velmi úsporná
Ukazatel energetické náročnosti
103 kWh/m2 za rok
Parkování

Kontaktovat makléře

Realitní kancelář

SEPIREA

Chrudimská 1418/2, Praha

Chystáte se prodat nemovitost?
Pomůžeme Vám!

Máte zájem o tuto nemovistost?

Tímto, v souladu s nařízením Evropského parlamentu a Rady (EU) 2016/679, v platném znění, prohlašuji, že mi je alespoň 16 let a uděluji tak svůj souhlas se zpracováním zadaných údajů (jméno, telefon, e-mail, ip adresa) společnosti B3 Technology, s.r.o., IČ: 07330600, se sídlem Novostavby 126/23, 435 11 Lom (správce dat), za účelem předání dotazu z tohoto formuláře Vámi vybranému inzerentovi a zpětného kontaktování mé osoby. Osobní údaje bude správce zpracovávat manuálně i automaticky přímo prostřednictvím svých zaměstnanců. Informace předané tímto formulářem budou uloženy v databázi správce maximálně po dobu 10 let. Odvolání souhlasu s uložením a zpracováním poskytnutých dat lze e-mailem na info@vitio.cz. V případě podezření na neoprávněné použití Vámi poskytnutých údajů máte právo předat podnět k šetření Úřadu pro ochranu osobních údajů. Více informací
Chystáte se prodat nemovitost?
Pomůžeme Vám!

Inzerát si prohlédlo 29 lidí

Prodejce

Petr Bořuta

Petr Bořuta

Hlídací pes

Chcete dostávat emailem podobné nabídky pronájmu ordinací v Praze 3?

Podobné nemovitosti