Prodej bytu 3+kk, Praha - Libeň, Vojenova, 97 m2 (ID: 2471984)

Vojenova, Praha, Libeň

16 490 000 Kč /za nemovitost HYPOTÉKA od 73 700 Kč /za měsíc
Exkluzivní partneři v Praze 8

Stěhovací služby

Výkup a prodej starého nábytku

Informace k bytu

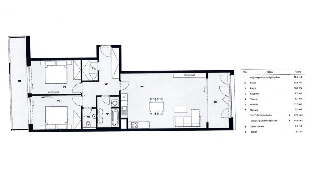
Nabízíme k prodeji byt v komplexu Libeňské terasy postaveného v roce 2016 v ulici Vojenova. Byt s parkovacím stáním a samostatným parkovacím boxem, který je dispozičně řešen jako 3+kk/B, má výměru 97,4 m2 + 13,2 m2 balkon a je situován v 2. nadzemním podlaží domu s výtahem.

Bytová jednotka sestává z předsíně, dvou ložnic, ze kterých je vstup na balkon, dále obývacího pokoje s plně vybaveným kuchyňským koutem, pracovny-zimní zahrady, samostatného WC, koupelny s vanou a šatny. Vyjma parkovacího stání a parkovacího boxu k bytu náleží skladovací prostor o výměře 4 m2.

Komplex Libeňské terasy se nachází v žádané lokalitě, v místě s perfektní dostupností MHD a s veškerou občanskou vybaveností.

Parametry bytu

Cena
16 490 000 Kč /za nemovitost Spočítat hypotéku
Aktualizováno
9. 10. 2025
Adresa
Vojenova, Praha, Libeň
Stavba
Cihlová
Stav objektu
Novostavba
Patro
2.
Vlastnictví
Osobní
Užitná plocha
97 m2
Podlahová plocha
114 m2
Třída energetické náročnosti
B - Velmi úsporná
Balkon
Garáž
Sklep
Výtah
Parkování

Kontaktovat makléře

Máte zájem o tento byt?

Tímto, v souladu s nařízením Evropského parlamentu a Rady (EU) 2016/679, v platném znění, prohlašuji, že mi je alespoň 16 let a uděluji tak svůj souhlas se zpracováním zadaných údajů (jméno, telefon, e-mail, ip adresa) společnosti B3 Technology, s.r.o., IČ: 07330600, se sídlem Novostavby 126/23, 435 11 Lom (správce dat), za účelem předání dotazu z tohoto formuláře Vámi vybranému inzerentovi a zpětného kontaktování mé osoby. Osobní údaje bude správce zpracovávat manuálně i automaticky přímo prostřednictvím svých zaměstnanců. Informace předané tímto formulářem budou uloženy v databázi správce maximálně po dobu 10 let. Odvolání souhlasu s uložením a zpracováním poskytnutých dat lze e-mailem na info@vitio.cz. V případě podezření na neoprávněné použití Vámi poskytnutých údajů máte právo předat podnět k šetření Úřadu pro ochranu osobních údajů. Více informací
Chystáte se prodat nemovitost?
Pomůžeme Vám!

Inzerát si prohlédlo 4 lidí

Prodejce

Martin Hořák

Martin Hořák

Hlídací pes

Chcete dostávat emailem podobné nabídky prodeje bytů 3+kk v Praze 8?

Podobné nemovitosti