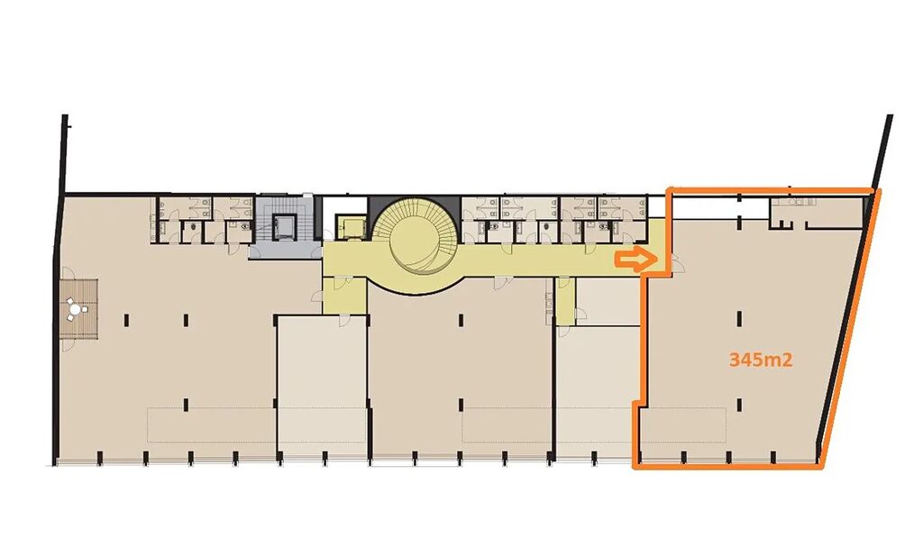
Pronájem kanceláře, Praha - Smíchov, Holečkova, 345 m2 (ID: 2469236)

Holečkova, Praha, Smíchov

5 693 € /za měsíc Získejte výhodnou HYPOTÉKU

(Nájemné: 16,50 Euro /m2 plus DPH Poplatky (včetně elektřiny) činí 150 Kč/m2 za měsíc plus DPH Parking: 23 místa: 200 Euro plus DPH (stání) Jistota: 3 )

Exkluzivní partneři v Praze 5

Stěhovací služby

Výkup a prodej starého nábytku

Informace k nemovitosti

Nabízíme moderní nebytový prostor ve stavu shell and core o celkové ploše 345m2, je situovaný v 1.patře v unikátním luxusním administrativně rezidenčním komplexu (realizace architektonické studio DAM.architekti ) s výtahem, recepcí, ostrahou, wellness s bazénem, ​​saunou, prostornou zahradou s grilem a posezením, sklepy a možností parkování v podzemním parkovišti. Lokalita nabízí výborné strategické místo pro podnikání.
Formát shell and core vám umožní vytvořit si svůj prostor přesně tak, jak si ho představujete. Interiér typu open space s přípravou na vlastní zázemí kuchyňky, nabízí možnost i členění prostoru dle potřeb. Dámské a pánské toalety jsou situované ve společných prostorách chodby přímo na patře. Budova zaručuje sníženou spotřebu energií, nadstandardní tepelnou izolací pláště a instalací nuceného větrání s rekuperací tepla i chladu.
Bonusem je možnost využívání rozlehlé zahrady s posezením a s grilem pro firemní nebo soukromé akce. Také možnost využívaní wellnessu za poplatek.

Budova se nachází v lukrativní části Prahy, vedle parku Sacré Coeur, obklopená luxusními vilami a rezidenčními komplexy, nově postavěnými ve vysokém standardu. Nedílnou součástí čtvrti je historická budova bývalého kláštera Sacré Coeur, který je nyní využíván jako místo pro taneční nebo jiné akce, a klášter sv. Gabriela.
Výhodou lokality je výborné situování v blízkosti veškeré občanské vybavenosti, v docházkové vzdálenosti je nákupní centrum Nový Smíchov, kina, široká škála obchodů, restaurací, kaváren a mnoho dalšího. Velmi dobrá dopravní dostupnost MHD, autobus (zastávka Holečkova) a tramvaj (zastávka Bertramka) jsou jen pár kroků od budovy, stanice metra (trasa B) je vzdálena jen 1 zastávku tramvají.

Nájemné činí: 16,50 Euro /m2 plus DPH /měsíčně
Poplatky (včetně elektřiny) činí 150 Kč/m2 za měsíc plus DPH/měsíčně
Parking: 23 místa: 200 Euro plus DPH /stání /měsíčně
Vratná kauce 3 nájmy včetně poplatků.
Doba nájmu nejméně 3 roky
Možnost využití fitness Prisma Institut individuální služba.
Neplatíte provizi RK.

Parametry nemovitosti

Cena
5 693 € /za měsíc
Poznámka k ceně
Nájemné: 16,50 Euro /m2 plus DPH Poplatky (včetně elektřiny) činí 150 Kč/m2 za měsíc plus DPH Parking: 23 místa: 200 Euro plus DPH (stání) Jistota: 3
Aktualizováno
7. 10. 2025
Adresa
Holečkova, Praha, Smíchov
ID
920561
Stavba
Smíšená
Stav objektu
Novostavba
Patro
2. z 5
Užitná plocha
345 m2
Zastavěná plocha
995 m2
Podlahová plocha
345 m2
Třída energetické náročnosti
B - Velmi úsporná
Plyn
Plynovod
Odpad
Veřejná kanalizace
Telekomunikace
Telefon, Kabelová televize
Doprava
MHD
Voda
Vodovod
Garáž
Výtah

Kontaktovat makléře

Máte zájem o tuto nemovistost?

Tímto, v souladu s nařízením Evropského parlamentu a Rady (EU) 2016/679, v platném znění, prohlašuji, že mi je alespoň 16 let a uděluji tak svůj souhlas se zpracováním zadaných údajů (jméno, telefon, e-mail, ip adresa) společnosti B3 Technology, s.r.o., IČ: 07330600, se sídlem Novostavby 126/23, 435 11 Lom (správce dat), za účelem předání dotazu z tohoto formuláře Vámi vybranému inzerentovi a zpětného kontaktování mé osoby. Osobní údaje bude správce zpracovávat manuálně i automaticky přímo prostřednictvím svých zaměstnanců. Informace předané tímto formulářem budou uloženy v databázi správce maximálně po dobu 10 let. Odvolání souhlasu s uložením a zpracováním poskytnutých dat lze e-mailem na info@vitio.cz. V případě podezření na neoprávněné použití Vámi poskytnutých údajů máte právo předat podnět k šetření Úřadu pro ochranu osobních údajů. Více informací
Chystáte se prodat nemovitost?
Pomůžeme Vám!

Inzerát si prohlédlo 2 lidí

Prodejce

Eva Cinculová

Eva Cinculová

Hlídací pes

Chcete dostávat emailem podobné nabídky pronájmu kanceláří v Praze 5?

Podobné nemovitosti