Pronájem obchodního prostoru, Praha, Štúrova, 115 m2

Štúrova, Praha 4

360 Kč /za metr čtvereční / měsíc Získejte výhodnou HYPOTÉKU

(+ služby a elektroměr)

Exkluzivní partneři v Praze 4

Stěhovací služby

Výkup a prodej starého nábytku

Informace k nemovitosti

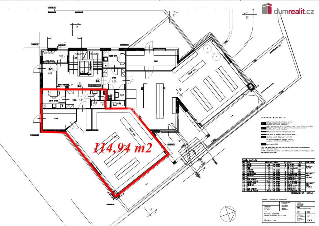
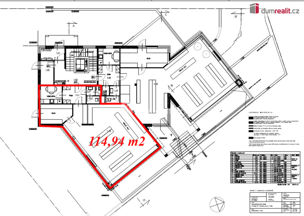
Dumrealit.cz Vám zprostředkuje exkluzivně pronájem zcela nového komerčního prostoru o velikosti 114,94 m², v nově stavěné budově (PENB – B) přímo u budoucí stanice metra D - Nové Dvory (přes ulici Štúrova), která bude dokončena v druhé polovině roku 2026. Tento prostor se nachází v přízemí třípatrové nízkoenergetické budovy, kde v přízemí je nabízený prostor o velikosti 143,18 m², který bude mít hlavní vstup z ulice Štúrova přímo od zastávky MHD / Bus – Tempo, vstup bude přes schodiště a také bude plně bezbariérový. Prostor 114,94 m² může být jako obchodní (např. kavárna, prodejna, pekárna) nebo jako kancelář / showroom nebo i ordinace, výběr je plně na klientovi. Prostor lze plně modifikovat, lze ho rozšířit o další prostor nabízený k pronájmu o velikosti 143,18 m² s vlastním zázemím a samostatným vstupem. K dispozici bude toaleta, šatna, předsíň a úklidová místnost. K prostoru lze dopronajmout venkovní terasu a menší zahrádku, dále parkovací stání a popř. sklepy. V domě bude 12 parkovací stání v suterénu domu, 6 x sklep a dále lze pronajmout až 3 venkovní parkovací stání. Aktuálně se v domě instalují okna, sdk příčky a klimatizace. Tato budova bude dokončena a zkolaudována v druhé polovině roku 2026, již nyní mohou probíhat prohlídky a úpravy prostor před dokončením přímo na přání nového nájemce. Velmi doporučuji všem zájemcům, kteří již nyní hledají atraktivní prostor u budoucí stanice metra D – Nové Dvory, v ulici Štúrova, Praha 4. Ev. číslo: 652666.

Parametry nemovitosti

Cena
360 Kč /za metr čtvereční / měsíc
Poznámka k ceně
+ služby a elektroměr
Aktualizováno
25. 11. 2025
Adresa
Štúrova, Praha 4
ID
653280
Stavba
Skeletová
Stav objektu
Novostavba
Typ objektu
Patrový
Užitná plocha
115 m2
Zastavěná plocha
258 m2
Třída energetické náročnosti
B - Velmi úsporná
Ukazatel energetické náročnosti
60 kWh/m2 za rok
Topení
Lokální tuhá paliva
Garáž
Parkování

Kontaktovat makléře

Máte zájem o tuto nemovistost?

Tímto, v souladu s nařízením Evropského parlamentu a Rady (EU) 2016/679, v platném znění, prohlašuji, že mi je alespoň 16 let a uděluji tak svůj souhlas se zpracováním zadaných údajů (jméno, telefon, e-mail, ip adresa) společnosti B3 Technology, s.r.o., IČ: 07330600, se sídlem Novostavby 126/23, 435 11 Lom (správce dat), za účelem předání dotazu z tohoto formuláře Vámi vybranému inzerentovi a zpětného kontaktování mé osoby. Osobní údaje bude správce zpracovávat manuálně i automaticky přímo prostřednictvím svých zaměstnanců. Informace předané tímto formulářem budou uloženy v databázi správce maximálně po dobu 10 let. Odvolání souhlasu s uložením a zpracováním poskytnutých dat lze e-mailem na info@vitio.cz. V případě podezření na neoprávněné použití Vámi poskytnutých údajů máte právo předat podnět k šetření Úřadu pro ochranu osobních údajů. Více informací
Chystáte se prodat nemovitost?
Pomůžeme Vám!

Inzerát si prohlédlo 8 lidí

Prodejce

Ing. Jiří Doskočil

Ing. Jiří Doskočil

Hlídací pes

Chcete dostávat emailem podobné nabídky pronájmu obchodních prostor v Praze 4?

Podobné nemovitosti