Prodej bytu 1+kk, Praha - Hlubočepy, Hugo Haase, 35 m2 (ID: 2468303)

Hugo Haase, Praha, Hlubočepy

2 190 000 Kč /za nemovitost HYPOTÉKA od 9 788 Kč /za měsíc

(+ anuita, včetně právního servisu)

Exkluzivní partneři v Praze 5

Stěhovací služby

Výkup a prodej starého nábytku

Informace k bytu

Nabízíme postoupení nového družstevního bytu 1+kk v projektu Kaskády Barrandov (dům Q1) úspěšného developera FINEP v ulici Gollové, Praha 5 - Hlubočepy.

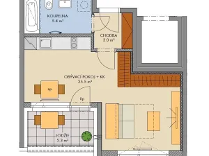
Bytová jednotka 1+kk o velikosti 35,1 m2 + balkon 5,3 m2 se nachází ve 3. nadzemním podlaží (z celkových šesti) s orientací na jihovýchod.

Dispozice bytu: obývací pokoj s kuchyňským koutem, koupelna s WC, chodba, balkon.

Cena za postoupení bytu: 2 190 000 Kč (zaplatíte nyní z vlastních zdrojů)
Doplatek anuity za byt: 4 554 511 Kč (po kolaudaci a převzetí bytu)

Nepotřebujete hypotéku, žádné schvalování bankou, bez dokazování příjmu.

Anuita se splácí až po převzetí dokončeného bytu (předpoklad kolaudace 12/2027). Nyní zaplatíte pouze cenu za postoupení.
Garážové stání příslušící k bytu za příplatek.

Aktuálně měsíční splátka anuity bytu činí 25 257 Kč.

V době výstavby nelze převést do osobního vlastnictví.

Za 15 minut chůze se dostanete do Prokopského údolí.
Tramvajové linky ze zastávky Náměstí Olgy Scheinpflugové jezdí 13 minut na Smíchovské nádraží (metro B, vlaková spojení) či na Národní divadlo.
Plavecký komplex Aquadream.
Skvělá občanská vybavenost - potraviny, kavárny, základní a mateřská škola.

Parametry bytu

Cena
2 190 000 Kč /za nemovitost Spočítat hypotéku
Poznámka k ceně
+ anuita, včetně právního servisu
Aktualizováno
13. 10. 2025
Adresa
Hugo Haase, Praha, Hlubočepy
ID
1038
Stavba
Cihlová
Stav objektu
Novostavba
Patro
3. z 6
Vybaveno
Ne
Vlastnictví
Družstevní
Užitná plocha
35 m2
Podlahová plocha
35 m2
Třída energetické náročnosti
B - Velmi úsporná
Odpad
Veřejná kanalizace
Topení
Ústřední dálkové
Komunikace
Asfaltová
Telekomunikace
Internet
Voda
Vodovod
Garáž
Lodžie
Výtah
Bezbarierový přístup
Převod do OV
Parkování

Kontaktovat makléře

Máte zájem o tento byt?

Tímto, v souladu s nařízením Evropského parlamentu a Rady (EU) 2016/679, v platném znění, prohlašuji, že mi je alespoň 16 let a uděluji tak svůj souhlas se zpracováním zadaných údajů (jméno, telefon, e-mail, ip adresa) společnosti B3 Technology, s.r.o., IČ: 07330600, se sídlem Novostavby 126/23, 435 11 Lom (správce dat), za účelem předání dotazu z tohoto formuláře Vámi vybranému inzerentovi a zpětného kontaktování mé osoby. Osobní údaje bude správce zpracovávat manuálně i automaticky přímo prostřednictvím svých zaměstnanců. Informace předané tímto formulářem budou uloženy v databázi správce maximálně po dobu 10 let. Odvolání souhlasu s uložením a zpracováním poskytnutých dat lze e-mailem na info@vitio.cz. V případě podezření na neoprávněné použití Vámi poskytnutých údajů máte právo předat podnět k šetření Úřadu pro ochranu osobních údajů. Více informací
Chystáte se prodat nemovitost?
Pomůžeme Vám!

Inzerát si prohlédlo 4 lidí

Prodejce

Tomáš Kučera

Tomáš Kučera

Hlídací pes

Chcete dostávat emailem podobné nabídky prodeje bytů 1+kk v Praze 5?

Podobné nemovitosti