Prodej činžovního domu, Železný Brod, Masarykova, 682 m2 (ID: 2467328)

Masarykova, Železný Brod

8 300 000 Kč /za nemovitost HYPOTÉKA od 37 096 Kč /za měsíc

(dohoda možná, cena k jednání)

Exkluzivní partneři v Železném Brodě

Rekonstrukce

Úklidové služby

Informace k nemovitosti

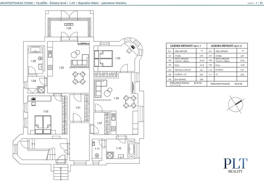
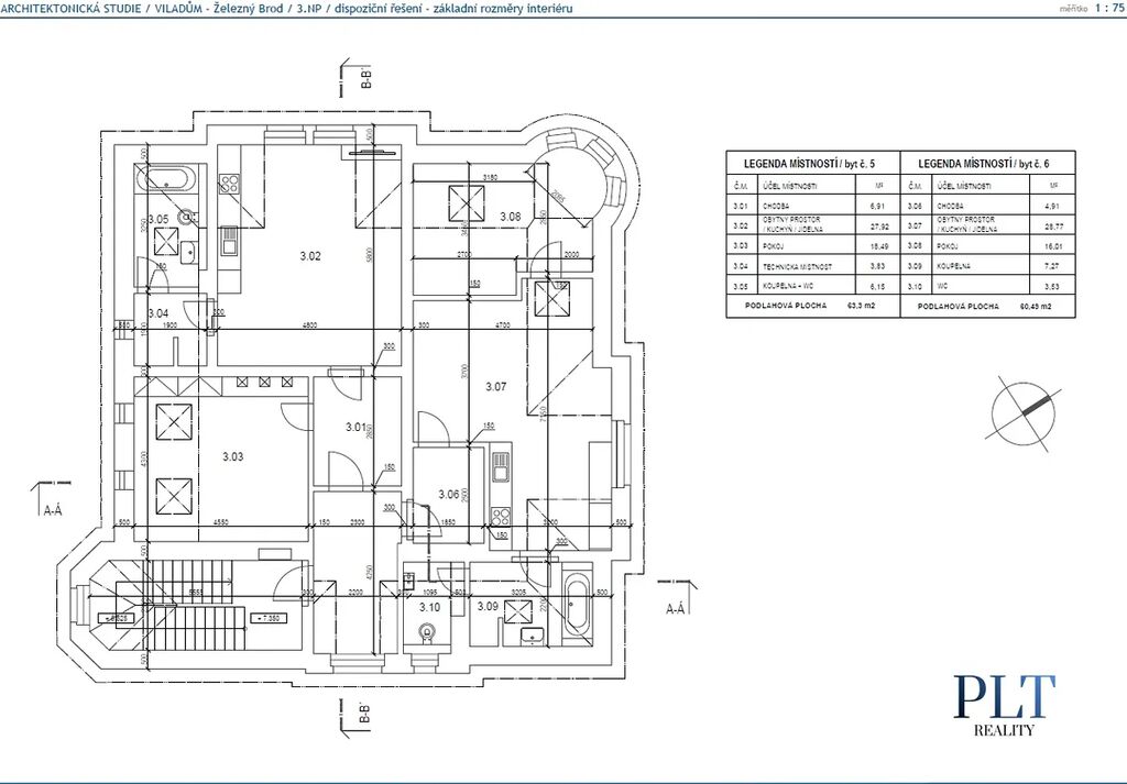
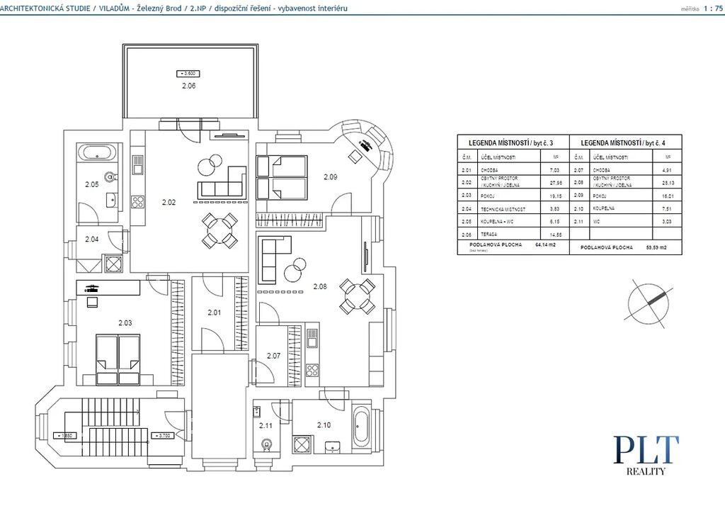
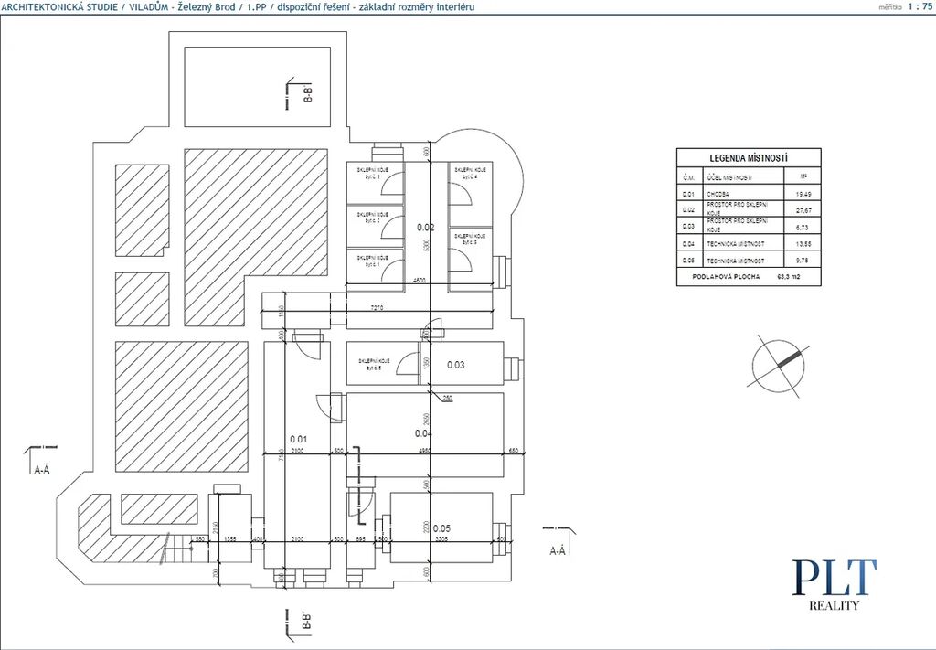
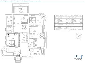
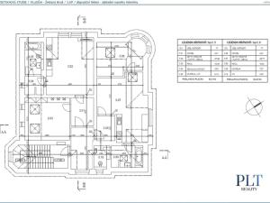
Nabízíme k prodeji čtyřpodlažní cihlový dům, který dříve sloužil jako administrativní budova a má potenciál pro přestavbu na 6 bytových jednotek. Dům se nachází v Masarykově ulici, v blízkosti vlakového nádraží, což zajišťuje skvělou dostupnost a občanskou vybavenost v okolí.

Základní informace:
4 podlaží (3 nadzemní a 1 suterén)
Plánovaná dispozice: na každém patře 2 byty
Napojeno na všechny inženýrské sítě – plyn, elektřina, voda, kanalizace, optika
Vytápění plynovým kotlem
Velká zahrada 1340 m2
Parkovací stání na pozemcích okolo domu

Možnosti přestavby:
V územním plánu je možné budovu přestavět na 6 bytových jednotek.
Pro změnu využití je potřeba vypracovat nový projekt a schválit ho na stavebním úřadě.
K dispozici je rozpracovaný projekt z roku 2018, který můžeme na vyžádání poskytnout.

Budova je v dobrém technickém stavu, ale vyžaduje rekonstrukci. Ideální příležitost pro investory hledající projekt k přestavbě na bytový dům v atraktivní lokalitě.

Pro více informací nebo domluvení prohlídky nás neváhejte kontaktovat!

Parametry nemovitosti

Cena
8 300 000 Kč /za nemovitost Spočítat hypotéku
Poznámka k ceně
dohoda možná, cena k jednání
Aktualizováno
4. 10. 2025
Adresa
Masarykova, Železný Brod
ID
00079
Stavba
Cihlová
Stav objektu
Dobrý
Vybaveno
Ne
Lokalita objektu
Klidná část obce
Užitná plocha
682 m2
Třída energetické náročnosti
G - Mimořádně nehospodárná
Elektřina
120V, 230V
Plyn
Plynovod
Odpad
Veřejná kanalizace
Komunikace
Asfaltová
Telekomunikace
Telefon, Internet
Doprava
Vlak, Silnice, MHD, Autobus
Voda
Vodovod
Topné těleso
Radiátory
Zdroj topení
Plynový kotel
Zdroj teplé vody
Plynový kotel
Výtah
Parkování

Kontaktovat makléře

Máte zájem o tuto nemovistost?

Tímto, v souladu s nařízením Evropského parlamentu a Rady (EU) 2016/679, v platném znění, prohlašuji, že mi je alespoň 16 let a uděluji tak svůj souhlas se zpracováním zadaných údajů (jméno, telefon, e-mail, ip adresa) společnosti B3 Technology, s.r.o., IČ: 07330600, se sídlem Novostavby 126/23, 435 11 Lom (správce dat), za účelem předání dotazu z tohoto formuláře Vámi vybranému inzerentovi a zpětného kontaktování mé osoby. Osobní údaje bude správce zpracovávat manuálně i automaticky přímo prostřednictvím svých zaměstnanců. Informace předané tímto formulářem budou uloženy v databázi správce maximálně po dobu 10 let. Odvolání souhlasu s uložením a zpracováním poskytnutých dat lze e-mailem na info@vitio.cz. V případě podezření na neoprávněné použití Vámi poskytnutých údajů máte právo předat podnět k šetření Úřadu pro ochranu osobních údajů. Více informací
Chystáte se prodat nemovitost?
Pomůžeme Vám!

Inzerát si prohlédlo 8 lidí

Prodejce

Tomáš Plechatý

Tomáš Plechatý

Hlídací pes

Chcete dostávat emailem podobné nabídky prodeje činžovních domů v Železném Brodě?

Podobné nemovitosti