Prodej bytu 4+1, Praha - Staré Město, Betlémská, 144 m2 (ID: 2466921)

Betlémská, Praha, Staré Město

27 990 000 Kč /za nemovitost HYPOTÉKA od 125 098 Kč /za měsíc

(včetně provize, včetně právního servisu)

Exkluzivní partneři v Praze 1

Stěhovací služby

Výkup a prodej starého nábytku

Informace k bytu

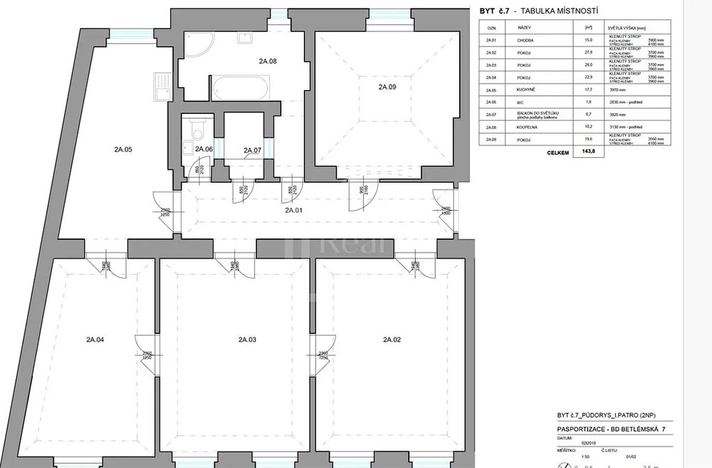
Nabízíme k prodeji majestátní byt o dispozici 4+1 o velkorysé ploše 144 m2. Byt je situován ve 2.NP v dobře udržovaném bytovém domě v Betlémské ulici. Během posledních 10 let proběhla význámná rekonstrukce společných prostor (nová okna, nové elektro a plynové rozvody, fasáda, bezpečnostní kamerový systém, nový videotelefon atd).

Středem bytu vede chodba, ze které je vstup do většiny místností. Všechny pokoje jsou velmi prostorné. Byt nabízí 3 oddělené ložnice, velkorysý obývací pokoj, plně vybavenou kuchyň z masivu, koupelnu s vanou a sprchovým koutem, samostatné WC a komoru.
Atraktivitu bytu zdůrazňují vysoké stropy přes 4 m a krásná repasovaná velká okna. Byt je částečné zařízený (vestavěné skříně, nábytek ..). Částečná rekonstrukce proběhla před pár lety (nový plynový kotel, kuchyň, broušení parket). Dispozice je ideální pro rodinné bydlení.

Dům se nachází v klidné ulici a zároveň v bezprostřední blízkosti pražských památek a historického centra Prahy. Parkování je řešeno před domem – modrá zóna nebo zóna placeného parkování, teoretická možnost dlouhodobého parkování v garážích Národního divadla (nutno si zařídit sám).

Tato nemovitost lze financovat hypotečním úvěrem, který Vám rádi zprostředkujeme.

Parametry bytu

Cena
27 990 000 Kč /za nemovitost Spočítat hypotéku
Poznámka k ceně
včetně provize, včetně právního servisu
Aktualizováno
3. 10. 2025
Adresa
Betlémská, Praha, Staré Město
ID
01865
Stavba
Cihlová
Stav objektu
Velmi dobrý
Patro
2. z 4
Vybaveno
Částečně
Vlastnictví
Osobní
Užitná plocha
144 m2
Podlahová plocha
144 m2
Třída energetické náročnosti
G - Mimořádně nehospodárná
Elektřina
230V
Plyn
Plynovod
Odpad
Veřejná kanalizace
Doprava
Silnice, MHD
Voda
Vodovod
Topné těleso
Radiátory
Zdroj topení
Plynový kotel
Zdroj teplé vody
Plynový kotel
Výtah

Kontaktovat makléře

Máte zájem o tento byt?

Tímto, v souladu s nařízením Evropského parlamentu a Rady (EU) 2016/679, v platném znění, prohlašuji, že mi je alespoň 16 let a uděluji tak svůj souhlas se zpracováním zadaných údajů (jméno, telefon, e-mail, ip adresa) společnosti B3 Technology, s.r.o., IČ: 07330600, se sídlem Novostavby 126/23, 435 11 Lom (správce dat), za účelem předání dotazu z tohoto formuláře Vámi vybranému inzerentovi a zpětného kontaktování mé osoby. Osobní údaje bude správce zpracovávat manuálně i automaticky přímo prostřednictvím svých zaměstnanců. Informace předané tímto formulářem budou uloženy v databázi správce maximálně po dobu 10 let. Odvolání souhlasu s uložením a zpracováním poskytnutých dat lze e-mailem na info@vitio.cz. V případě podezření na neoprávněné použití Vámi poskytnutých údajů máte právo předat podnět k šetření Úřadu pro ochranu osobních údajů. Více informací
Chystáte se prodat nemovitost?
Pomůžeme Vám!

Inzerát si prohlédlo 1 lidí

Prodejce

Pavlína Prokešová

Pavlína Prokešová

Hlídací pes

Chcete dostávat emailem podobné nabídky prodeje bytů 4+1 v Praze 1?

Podobné nemovitosti