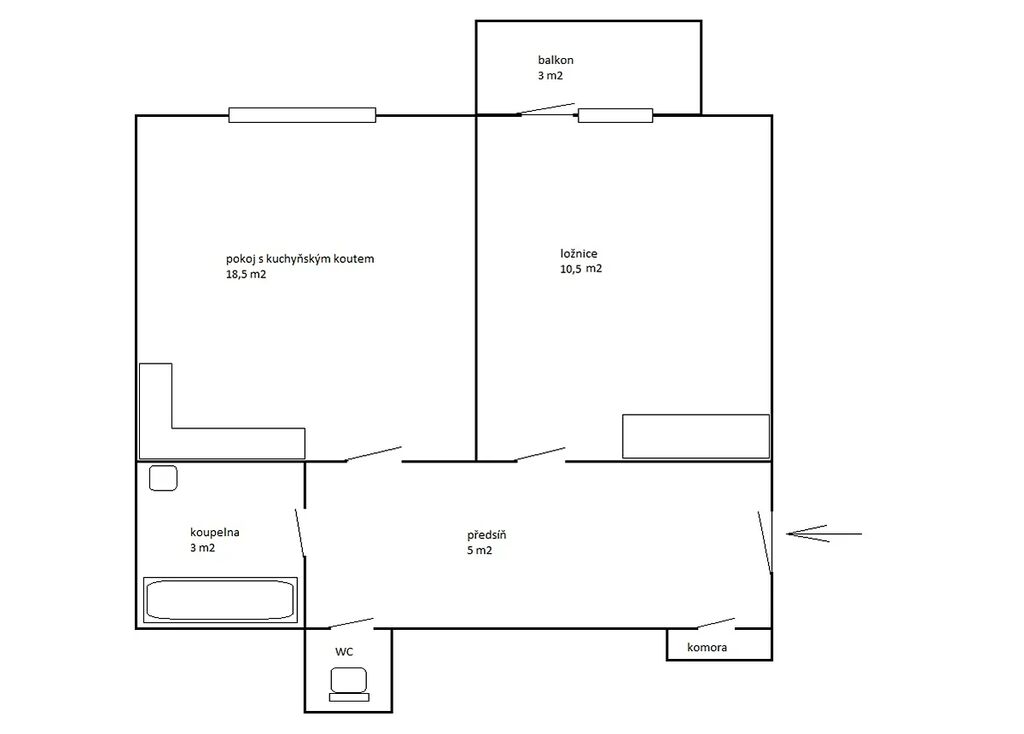
Prodej bytu 2+kk, Praha - Strašnice, Za poštou, 38 m2

Za poštou, Praha, Strašnice

6 950 000 Kč /za nemovitost HYPOTÉKA od 31 062 Kč /za měsíc

(Cena včetně provize a právních služeb.)

Exkluzivní partneři v Praze 10

Stěhovací služby

Výkup a prodej starého nábytku

Informace k bytu

Nabízíme k prodeji pěkný byt 2+kk s balkonem ve třetím patře cihlového domu v Praze 10 Strašnicích. Byt byl v roce 2019 zrekonstruován, jsou zde nové rozvody vody a elektřiny, plastová okna, rohová kuchyňská linka se spotřebiči, koupelna s vanou, WC je samostatně, na podlahách je vinyl a dlažba. Okna a balkon jsou orientovány do klidného vnitrobloku. Topení a ohřev vody je zajištěn elektro kotlem. K bytu patří také sklep. Poplatky včetně fondu oprav jsou ve výši 2.070,- Kč pro dvě osoby. Metro Strašnická je cca 8 minut chůze, stanice tramvaje cca 2 minuty chůze. V okolí je veškerá občanská vybavenost. Volný od 1.1. 2026.

Parametry bytu

Cena
6 950 000 Kč /za nemovitost Spočítat hypotéku
Poznámka k ceně
Cena včetně provize a právních služeb.
Náklady na bydlení
Fond oprav 792 Kč/měsíc, služby 2070 Kč/2osoby
Aktualizováno
1. 10. 2025
Adresa
Za poštou, Praha, Strašnice
Stavba
Cihlová
Stav objektu
Dobrý
Patro
3.
Vlastnictví
Osobní
Užitná plocha
38 m2
Balkon

Kontaktovat makléře

Realitní kancelář

PROFI-TEN

Vodičkova 682/20, Praha

Chystáte se prodat nemovitost?
Pomůžeme Vám!

Máte zájem o tento byt?

Tímto, v souladu s nařízením Evropského parlamentu a Rady (EU) 2016/679, v platném znění, prohlašuji, že mi je alespoň 16 let a uděluji tak svůj souhlas se zpracováním zadaných údajů (jméno, telefon, e-mail, ip adresa) společnosti B3 Technology, s.r.o., IČ: 07330600, se sídlem Novostavby 126/23, 435 11 Lom (správce dat), za účelem předání dotazu z tohoto formuláře Vámi vybranému inzerentovi a zpětného kontaktování mé osoby. Osobní údaje bude správce zpracovávat manuálně i automaticky přímo prostřednictvím svých zaměstnanců. Informace předané tímto formulářem budou uloženy v databázi správce maximálně po dobu 10 let. Odvolání souhlasu s uložením a zpracováním poskytnutých dat lze e-mailem na info@vitio.cz. V případě podezření na neoprávněné použití Vámi poskytnutých údajů máte právo předat podnět k šetření Úřadu pro ochranu osobních údajů. Více informací
Chystáte se prodat nemovitost?
Pomůžeme Vám!

Inzerát si prohlédlo 2 lidí

Prodejce

František Cakl

František Cakl

Hlídací pes

Chcete dostávat emailem podobné nabídky prodeje bytů 2+kk v Praze 10?

Podobné nemovitosti