Prodej komerční nemovitosti, Olomouc, Družební, 102 m2

Družební, Olomouc, Nové Sady

8 950 000 Kč /za nemovitost HYPOTÉKA od 40 001 Kč /za měsíc
Exkluzivní partneři v Olomouci

Informace k nemovitosti

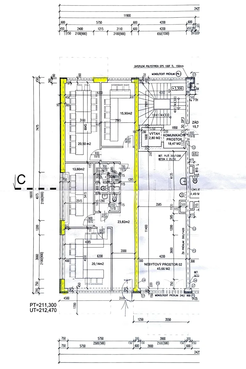
S výhradním zastoupením nabízíme ke koupi nebytové prostory v Olomouci na ulici Družební. Jedná se o nebytové prostory situované v přízemí moderního objektu kolaudovaného v roce 2008 s bezbariérovým vstupem přímo z ulice. Celková plocha jednotky je 102 m2. Jednotka sestává ze vstupní chodby využitelné též jako recepce nebo čekárna, čtyř samostatných neprůchozích místností s denním světlem a dvou oddělených prostor s toaletami a příslušenstvím. Prostory jsou vhodné pro kanceláře, ordinace, školící centrum, klientské centrum, salón krásy a podobně. K maximálnímu využití potenciálu nabízených prostor přispívá i možnost využít okna v přízemí jako reklamní poutač pro zviditelnění provozovny. Velkým plusem je taktéž poloha s velmi dobrou dopravní dostupností MHD (zastávky tramvaje i autobusu jsou vzdálené cca 100 m) a možnost využít potenciálu dvou přilehlých lidnatých městských částí Nové Sady a Povel. Nízké provozní náklady, vytápění je řešeno ústředním topením z dálkového zdroje, ohřev vody je centrální pro celý objekt. Koupě této nemovitosti může být i zajímavou investicí pro následný pronájem. Více informací u makléře zakázky.

Parametry nemovitosti

Cena
8 950 000 Kč /za nemovitost Spočítat hypotéku
Aktualizováno
1. 10. 2025
Adresa
Družební, Olomouc, Nové Sady
ID
HRK25-12010C
Stavba
Cihlová
Stav objektu
Velmi dobrý
Vybaveno
Částečně
Lokalita objektu
Rušná část obce
Užitná plocha
102 m2
Zastavěná plocha
102 m2
Podlahová plocha
102 m2
Odpad
Veřejná kanalizace
Topení
Ústřední dálkové
Telekomunikace
Internet
Topné těleso
Radiátory
Zdroj topení
Ústřední dálkové

Kontaktovat makléře

Máte zájem o tuto nemovistost?

Tímto, v souladu s nařízením Evropského parlamentu a Rady (EU) 2016/679, v platném znění, prohlašuji, že mi je alespoň 16 let a uděluji tak svůj souhlas se zpracováním zadaných údajů (jméno, telefon, e-mail, ip adresa) společnosti B3 Technology, s.r.o., IČ: 07330600, se sídlem Novostavby 126/23, 435 11 Lom (správce dat), za účelem předání dotazu z tohoto formuláře Vámi vybranému inzerentovi a zpětného kontaktování mé osoby. Osobní údaje bude správce zpracovávat manuálně i automaticky přímo prostřednictvím svých zaměstnanců. Informace předané tímto formulářem budou uloženy v databázi správce maximálně po dobu 10 let. Odvolání souhlasu s uložením a zpracováním poskytnutých dat lze e-mailem na info@vitio.cz. V případě podezření na neoprávněné použití Vámi poskytnutých údajů máte právo předat podnět k šetření Úřadu pro ochranu osobních údajů. Více informací
Chystáte se prodat nemovitost?
Pomůžeme Vám!

Inzerát si prohlédlo 3 lidí

Prodejce

Jiří Zavadil

Jiří Zavadil

Hlídací pes

Chcete dostávat emailem podobné nabídky prodeje komerčních nemovitostí v Olomouci?

Podobné nemovitosti