Prodej bytu 3+1, České Budějovice - České Budějovice 3, Budivojova, 68 m2

Budivojova, České Budějovice 3

6 185 000 Kč /za nemovitost HYPOTÉKA od 27 643 Kč /za měsíc
Exkluzivní partneři v Českých Budějovicích

Výkup a prodej starého nábytku

Informace k bytu

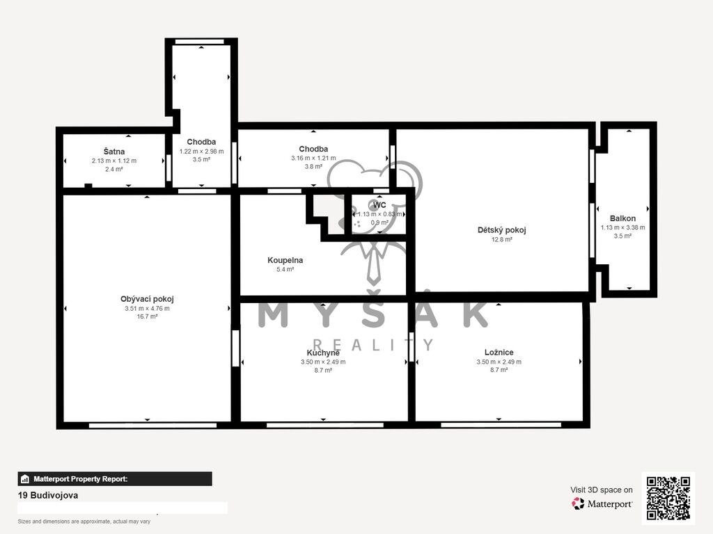
Nabízím vám ke koupi precizně zrekonstruovaný byt 3+1 s balkónem, v osobním vlastnictví, o celkové výměře 68 m2, který se nachází ve 12. patře kompletně revitalizovaného třináctipatrového panelového domu v žádané lokalitě Pražského předměstí, v Budivojově ulici. Byt prošel, před třemi lety, kompletní a velmi kvalitní rekonstrukcí, a to včetně jeho vybavení nábytkem na míru, který v bytě zůstává. Vše bylo řešeno s důrazem na detail a funkčnost. Díky tomu, že je situovaný do dvanáctého patra, je byt velmi světlý a nabízí nádherné výhledy. K bytové jednotce náleží také sklepní kóje, umístěna v přízemí domu. Mezi přiloženými fotografiemi najdete i plánek bytu a evidenční list, ze kterého jsou vidět náklady na provoz bytové jednotky při užívání třemi osobami. Budivojova ulice je klidná, a přesto výborně dostupná do centra města, zároveň se nachází v blízkosti cyklostezky a nově vzniklé relaxační zóny Sluneční ostrov. V blízkosti se dále nachází veškerá občanská vybavenost, obchody (IGY centrum), školy (Kubatova, Nerudova), školky, MHD zdravotní středisko atd. Byt bude volný dle dohody. Pro více informací a případné prohlídky, prosím, volejte.

Parametry bytu

Cena
6 185 000 Kč /za nemovitost Spočítat hypotéku
Aktualizováno
18. 12. 2025
Adresa
Budivojova, České Budějovice 3
ID
2025-09-29
Stavba
Panelová
Stav objektu
Po rekonstrukci
Patro
13. z 14
Typ objektu
Patrový
Lokalita objektu
Klidná část obce
Vlastnictví
Osobní
Užitná plocha
68 m2
Podlahová plocha
65 m2
Třída energetické náročnosti
C - Úsporná
Elektřina
230V
Odpad
Veřejná kanalizace
Topení
Ústřední dálkové
Komunikace
Asfaltová
Telekomunikace
Internet
Doprava
Silnice, MHD
Voda
Vodovod
Topné těleso
Radiátory
Zdroj topení
Ústřední dálkové
Balkon
Sklep
Výtah
Bezbarierový přístup

Kontaktovat makléře

Realitní kancelář

Logo Reality Myšák s.r.o.

Reality Myšák s.r.o.

U Malše 1805/20, České Budějovice

Chystáte se prodat nemovitost?
Pomůžeme Vám!

Máte zájem o tento byt?

Tímto, v souladu s nařízením Evropského parlamentu a Rady (EU) 2016/679, v platném znění, prohlašuji, že mi je alespoň 16 let a uděluji tak svůj souhlas se zpracováním zadaných údajů (jméno, telefon, e-mail, ip adresa) společnosti B3 Technology, s.r.o., IČ: 07330600, se sídlem Novostavby 126/23, 435 11 Lom (správce dat), za účelem předání dotazu z tohoto formuláře Vámi vybranému inzerentovi a zpětného kontaktování mé osoby. Osobní údaje bude správce zpracovávat manuálně i automaticky přímo prostřednictvím svých zaměstnanců. Informace předané tímto formulářem budou uloženy v databázi správce maximálně po dobu 10 let. Odvolání souhlasu s uložením a zpracováním poskytnutých dat lze e-mailem na info@vitio.cz. V případě podezření na neoprávněné použití Vámi poskytnutých údajů máte právo předat podnět k šetření Úřadu pro ochranu osobních údajů. Více informací
Chystáte se prodat nemovitost?
Pomůžeme Vám!

Inzerát si prohlédlo 15 lidí

Prodejce

Lubor Myšák

Lubor Myšák

Hlídací pes

Chcete dostávat emailem podobné nabídky prodeje bytů 3+1 v Českých Budějovicích?

Top nabídky

Podobné nemovitosti