Prodej pozemku pro bydlení, Praha - Hlubočepy, Filmařská, 755 m2 (ID: 2462006)

Filmařská, Praha, Hlubočepy

27 000 000 Kč /za nemovitost HYPOTÉKA od 120 674 Kč /za měsíc
Exkluzivní partneři v Praze 5

Stěhovací služby

Výkup a prodej starého nábytku

Informace k pozemku

Nabízíme k prodeji stavební pozemek o velikosti 755 m2 v ulici Filmařská, oblíbené lokalitě poblíž Barrandovských ateliérů. Pozemek plynule navazuje na další rezidenční nemovitosti. Pozemek téměř obdélníkového tvaru je svažitý. Kompletní inženýrské sítě jsou u pozemku, kanalizační síť je vedena na pozemku. Dle územního plánu se jedná o OB, tedy čistě obytné.

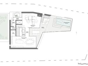
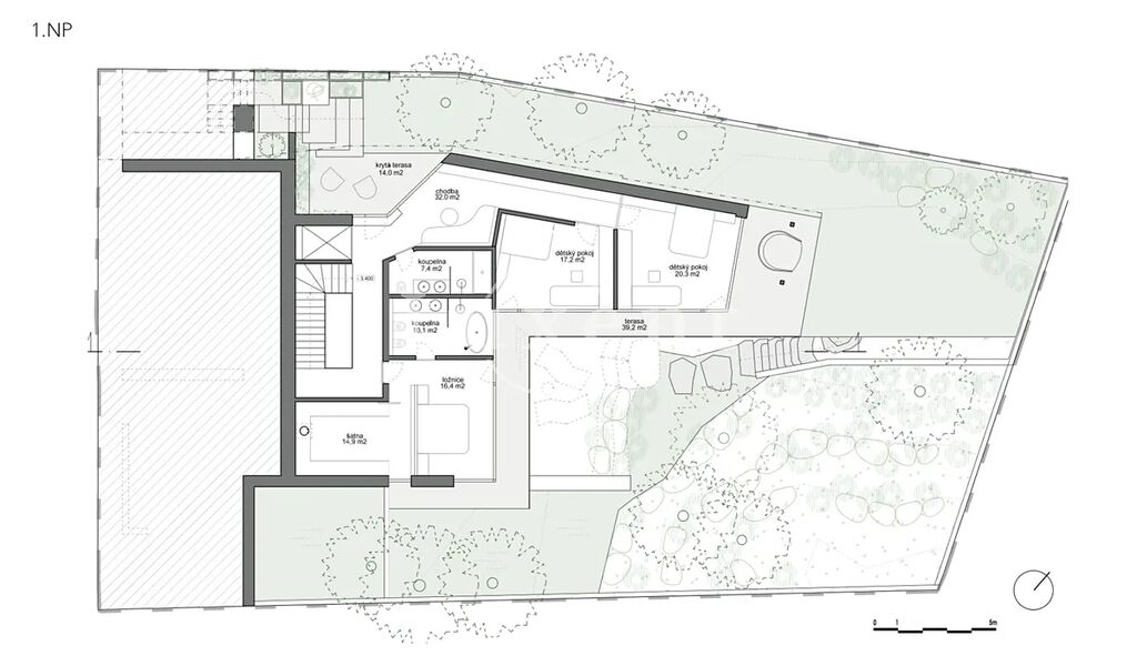
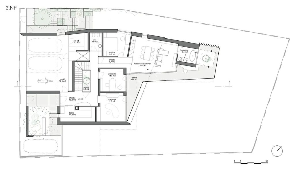
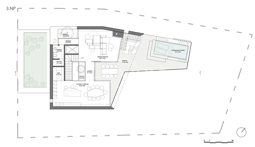
Ve spolupráci s architektonickým studiem de.fakto byla vytvořena studie moderní vily, která vyhovuje současným požadavkům zákazníků. Vila byla navržena s ohledem na polohu pozemku s maximální možností využití (582 m2 obytných ploch), možnosti výhledů (terasy a střešní zahrada 305 m2), zachování soukromí a s důrazem na světlost interiérů.
Celkový koncept je postaven tak, že v nejvyšším patře vily se nachází společenská zóna s kuchyňským koutem a terasami. To umožní krásné výhledy do údolí. Pod tímto podlaží je zóna pracoven a hostovského apartmánu. Současně je v tomto patře umístěná garáž, která navazuje na uliční zónu. Je navržena pro tři garážová parkovací stání a jedno venkovní na pozemku. V dalším patře je hlavní ložnice a pokoje orientované do zahrady. Poslední suterénní podlaží je osazeno technologiemi, klient zde najde wellnes zónu, posilovnu, sklady i prádelnu.

Barandovská čtvrť je vyhledávanou lokalitou od vzniku filmových ateliérů ve 30. letech 20. století. Mnoho vil prošlo zajímavou historií. Pohled do údolí na řeku Vltavu je také neopakovatelný. Dopravní dostupnost do centra je zajištěna prostřednictvím Barandovského mostu, MHD je možné se dopravit pohodlně tramvají. Letiště Václava Havla je dostupné vozem za 15 minut.

Parametry pozemku

Cena
27 000 000 Kč /za nemovitost Spočítat hypotéku
Aktualizováno
30. 9. 2025
Adresa
Filmařská, Praha, Hlubočepy
ID
N7087
Plocha pozemku
755 m2

Kontaktovat makléře

Máte zájem o tento pozemek?

Tímto, v souladu s nařízením Evropského parlamentu a Rady (EU) 2016/679, v platném znění, prohlašuji, že mi je alespoň 16 let a uděluji tak svůj souhlas se zpracováním zadaných údajů (jméno, telefon, e-mail, ip adresa) společnosti B3 Technology, s.r.o., IČ: 07330600, se sídlem Novostavby 126/23, 435 11 Lom (správce dat), za účelem předání dotazu z tohoto formuláře Vámi vybranému inzerentovi a zpětného kontaktování mé osoby. Osobní údaje bude správce zpracovávat manuálně i automaticky přímo prostřednictvím svých zaměstnanců. Informace předané tímto formulářem budou uloženy v databázi správce maximálně po dobu 10 let. Odvolání souhlasu s uložením a zpracováním poskytnutých dat lze e-mailem na info@vitio.cz. V případě podezření na neoprávněné použití Vámi poskytnutých údajů máte právo předat podnět k šetření Úřadu pro ochranu osobních údajů. Více informací
Chystáte se prodat nemovitost?
Pomůžeme Vám!

Inzerát si prohlédlo 3 lidí

Prodejce

Ing. Pavla Kalousová

Ing. Pavla Kalousová

Hlídací pes

Chcete dostávat emailem podobné nabídky prodeje pozemků pro bydlení v Praze 5?

Podobné nemovitosti