Prodej bytu 3+1, České Budějovice - České Budějovice 1, Karla IV., 109 m2 (ID: 2459779)

Karla IV., České Budějovice 1

8 990 000 Kč /za nemovitost HYPOTÉKA od 40 180 Kč /za měsíc
Exkluzivní partneři v Českých Budějovicích

Informace k bytu

Hledáte byt přímo na Náměstí Přemysla Otakara II., anebo v jeho bezprostřední blízkosti? Ať už pro sebe, pro dlouhodobé pronajímání, anebo k pronájmům krátkodobým?

Ve výhradním zastoupení majitele Vám k prodeji nabízíme byt o dispozici 3+1 v ulici Karla IV., v Českých Budějovicích. Byt se nachází v 1. patře (2. nadzemním podlaží) historického zděného domu bez výtahu, s nádhernou eklektickou gotizující fasádou (ověřili jsme na památkovém úřadu). Dům je postavený na území památkové rezervace.

Prostorný a světlý obývací pokoj s krbem má nádherné vysoké stropy s ornamenty, které Vás zaujmou. Výhled budete mít přímo do ulice a na také na náměstí.

Přestože můžete na fotografiích vidět moderní, plně vybavenou kuchyň (plynový sporák, digestoř, lednice, myčka, trouba) majitel při rekonstrukci ctil atmosféru celého bytu. Samozřejmě nechybí vkusná koupelna se sprchovým koutem, umyvadlem a toaletou. V zimě Vás určitě potěší podlahové vytápění (koupelna, chodba, kuchyň). O ohřev vody a vytápění se v bytě stará plynový kotel. Neprůchozí ložnice přímo vybízí k odpočinku a její okna jsou orientována do vnitrobloku.

Byt se nachází v samotném srdci města a tak není překvapivá skvělá dostupnost veškeré občanské vybavenosti. Na procházku dojdete na oblíbený Sokolák a pak do Stromovky. Pro čerstvé pečivo seběhnete prakticky v županu a nezbytnou úřední administrativu si vyřídíte bleskurychle. Veškeré důležité úřady máte v okolních ulicí. I poštu. Cokoliv Vás napadne je v docházkové vzdálenosti nebo pár minut v dosahu MHD. Večerní zábavu - drink, večeře, koncert, divadlo - si můžete užít naplno a neřešit návrat domů taxíkem.

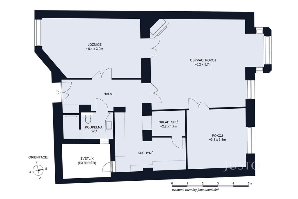
Součástí inzerátu je i 2D orientační půdorys celého bytu a virtuální prohlídka.

Chcete přijít na prohlídku tohoto výjimečného bytu? Potřebujete doplnit některé informace a zodpovědět dotazy? Vyplňte prosím formulář u inzerátu. Dostanete odpověď s veškerými informacemi do 20 minut na e-mail, který uvedete. (Zkontrolujte si, prosím, i složky "Spam" a "Nevyžádaná pošta". Občas se tam e-mail může zatoulat.)

Parametry bytu

Cena
8 990 000 Kč /za nemovitost Spočítat hypotéku
Aktualizováno
5. 10. 2025
Adresa
Karla IV., České Budějovice 1
ID
J10897
Stavba
Cihlová
Stav objektu
Velmi dobrý
Patro
2. z 5
Vybaveno
Částečně
Lokalita objektu
Centrum obce
Vlastnictví
Osobní
Užitná plocha
109 m2
Podlahová plocha
109 m2
Třída energetické náročnosti
G - Mimořádně nehospodárná
Ukazatel energetické náročnosti
593 kWh/m2 za rok
Odpad
Veřejná kanalizace
Topení
Lokální plynové
Telekomunikace
Internet
Voda
Vodovod
Výtah
Bezbarierový přístup

Kontaktovat makléře

Realitní kancelář

Logo JUSTO Česká republika

JUSTO Česká republika

Korunní 2569/108, Vinohrady, Praha

Chystáte se prodat nemovitost?
Pomůžeme Vám!

Máte zájem o tento byt?

Tímto, v souladu s nařízením Evropského parlamentu a Rady (EU) 2016/679, v platném znění, prohlašuji, že mi je alespoň 16 let a uděluji tak svůj souhlas se zpracováním zadaných údajů (jméno, telefon, e-mail, ip adresa) společnosti B3 Technology, s.r.o., IČ: 07330600, se sídlem Novostavby 126/23, 435 11 Lom (správce dat), za účelem předání dotazu z tohoto formuláře Vámi vybranému inzerentovi a zpětného kontaktování mé osoby. Osobní údaje bude správce zpracovávat manuálně i automaticky přímo prostřednictvím svých zaměstnanců. Informace předané tímto formulářem budou uloženy v databázi správce maximálně po dobu 10 let. Odvolání souhlasu s uložením a zpracováním poskytnutých dat lze e-mailem na info@vitio.cz. V případě podezření na neoprávněné použití Vámi poskytnutých údajů máte právo předat podnět k šetření Úřadu pro ochranu osobních údajů. Více informací
Chystáte se prodat nemovitost?
Pomůžeme Vám!

Inzerát si prohlédlo 7 lidí

Prodejce

Tadeáš Vaverka

Tadeáš Vaverka

Hlídací pes

Chcete dostávat emailem podobné nabídky prodeje bytů 3+1 v Českých Budějovicích?

Top nabídky

Podobné nemovitosti