Prodej bytu 3+1, Liberec - Liberec XIV-Ruprechtice, Rychtářská, 60 m2

Rychtářská, Liberec XIV-Ruprechtice

Exkluzivní partneři v Liberci

Rekonstrukce

Úklidové služby

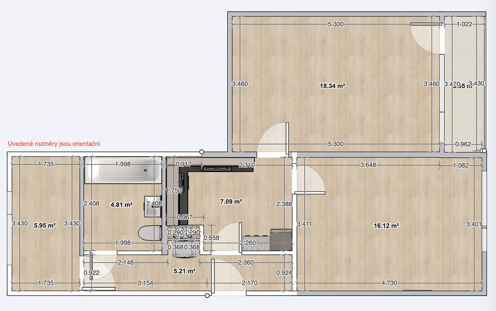
Informace k bytu

Prodej bytu 3+1, 60m²

Nadčasově nově zrekonstruovaný byt 3+1 v klidné lokalitě Liberce.
Hledáte byt, který vás okouzlí moderním designem a precizní rekonstrukcí? Tento čerstvě zrekonstruovaný byt v revitalizovaném panelovém domě je skvělou volbou.

Díky chytré rekonstrukci byl původní byt 2+1 přebudován na prostorný 3+1 o rozloze 60 m², čímž získáte samostatný pokoj, ideální jako pracovnu nebo malý dětský pokoj, a navíc s krásným výhledem.

Kvalitní rekonstrukce probíhala s důrazem na funkčnost a estetiku. Kuchyňská linka byla vyrobena na míru a vybavena špičkovými spotřebiči - tichou myčkou, indukční varnou deskou, troubou a vestavěnou lednicí. Moderní design bytu je sladěný do harmonických tónů, což vytváří příjemnou atmosféru a pocit domova hned po nastěhování.

Byt je světlý a vzdušný, s dostatkem denního světla po celý den.

Panelový dům prošel kompletní revitalizací - zateplení, plastová okna a nový prostorný výtah zajišťují komfortní bydlení. Dům je čistý, klidný a nabízí příjemné sousedské prostředí.

Skvělá dostupnost občanské vybavenosti vám umožní pohodlné bydlení. V okolí na dosah ruky jsou školy, školky, obchody i MHD . Přesto si užijete klid a pohodu této vyhledávané lokality v Liberci.

Neváhejte a domluvte si prohlídku. Tento byt může být právě vaším novým domovem.

Parametry bytu

Cena
5 495 000 Kč Spočítat hypotéku
Aktualizováno
25. 9. 2025
Adresa
Rychtářská, Liberec XIV-Ruprechtice
ID
75
Stavba
Panelová
Stav objektu
Po rekonstrukci
Vybaveno
Ano
Lokalita objektu
Klidná část obce
Vlastnictví
Osobní
Užitná plocha
60 m2
Třída energetické náročnosti
G - Mimořádně nehospodárná

Kontaktovat makléře

Máte zájem o tento byt?

Tímto, v souladu s nařízením Evropského parlamentu a Rady (EU) 2016/679, v platném znění, prohlašuji, že mi je alespoň 16 let a uděluji tak svůj souhlas se zpracováním zadaných údajů (jméno, telefon, e-mail, ip adresa) společnosti B3 Technology, s.r.o., IČ: 07330600, se sídlem Novostavby 126/23, 435 11 Lom (správce dat), za účelem předání dotazu z tohoto formuláře Vámi vybranému inzerentovi a zpětného kontaktování mé osoby. Osobní údaje bude správce zpracovávat manuálně i automaticky přímo prostřednictvím svých zaměstnanců. Informace předané tímto formulářem budou uloženy v databázi správce maximálně po dobu 10 let. Odvolání souhlasu s uložením a zpracováním poskytnutých dat lze e-mailem na info@vitio.cz. V případě podezření na neoprávněné použití Vámi poskytnutých údajů máte právo předat podnět k šetření Úřadu pro ochranu osobních údajů. Více informací
Chystáte se prodat nemovitost?
Pomůžeme Vám!

Inzerát si prohlédlo 4 lidí

Prodejce

Mgr. Marek Polák

Mgr. Marek Polák

Hlídací pes

Chcete dostávat emailem podobné nabídky prodeje bytů 3+1 v Liberci?

Podobné nemovitosti