Prodej bytu 2+1, Praha, Habrová, 53 m2

Habrová, Praha 3

7 090 000 Kč /za nemovitost HYPOTÉKA od 31 688 Kč /za měsíc
Exkluzivní partneři v Praze 3

Stěhovací služby

Výkup a prodej starého nábytku

Informace k bytu

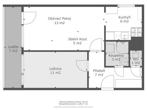
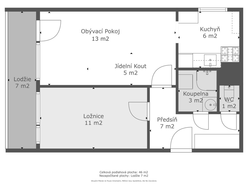
Byt 2+1 s lodžií a sklepem na Žižkově – příležitost k vlastní rekonstrukci

Hledáte byt, který si můžete přizpůsobit přesně podle svého stylu? Tento 2+1 (46 m²) ve 7. patře na Žižkově nabízí lodžii, sklep a skvělou polohu.

Byt je před rekonstrukcí, takže si můžete vytvořit bydlení podle svých představ – moderní kuchyň, koupelnu i obývací pokoj.

Klidná ulice, pár minut tramvají do centra

Lodžie 7 m² pro relaxaci

Sklep pro úložné prostory

Světlé pokoje a praktické dispoziční řešení

Zaujalo vás to? Kontaktujte mě a domluvte si prohlídku – přijďte objevit svůj nový domov.
Virtuální prohlídka bytu je k dispozici a ráda vám ji zpřístupním, abyste si byt mohli prohlédnout pohodlně z domova.

Parametry bytu

Cena
7 090 000 Kč /za nemovitost Spočítat hypotéku
Aktualizováno
14. 10. 2025
Adresa
Habrová, Praha 3
ID
420250388
Stavba
Panelová
Stav objektu
Dobrý
Patro
7. z 9
Vybaveno
Částečně
Vlastnictví
Osobní
Užitná plocha
53 m2
Zastavěná plocha
384 m2
Podlahová plocha
53 m2
Třída energetické náročnosti
C - Úsporná
Ukazatel energetické náročnosti
79 kWh/m2 za rok
Elektřina
230V
Plyn
Plynovod
Odpad
Veřejná kanalizace
Komunikace
Asfaltová
Telekomunikace
Internet
Voda
Vodovod
Sklep
Lodžie
Výtah
Parkování

Kontaktovat makléře

Realitní kancelář

Logo eDO reality

eDO reality

Na Pankráci 322/26, Praha

Chystáte se prodat nemovitost?
Pomůžeme Vám!

Máte zájem o tento byt?

Tímto, v souladu s nařízením Evropského parlamentu a Rady (EU) 2016/679, v platném znění, prohlašuji, že mi je alespoň 16 let a uděluji tak svůj souhlas se zpracováním zadaných údajů (jméno, telefon, e-mail, ip adresa) společnosti B3 Technology, s.r.o., IČ: 07330600, se sídlem Novostavby 126/23, 435 11 Lom (správce dat), za účelem předání dotazu z tohoto formuláře Vámi vybranému inzerentovi a zpětného kontaktování mé osoby. Osobní údaje bude správce zpracovávat manuálně i automaticky přímo prostřednictvím svých zaměstnanců. Informace předané tímto formulářem budou uloženy v databázi správce maximálně po dobu 10 let. Odvolání souhlasu s uložením a zpracováním poskytnutých dat lze e-mailem na info@vitio.cz. V případě podezření na neoprávněné použití Vámi poskytnutých údajů máte právo předat podnět k šetření Úřadu pro ochranu osobních údajů. Více informací
Chystáte se prodat nemovitost?
Pomůžeme Vám!

Inzerát si prohlédlo 7 lidí

Prodejce

Anna Motyčková

Anna Motyčková

Hlídací pes

Chcete dostávat emailem podobné nabídky prodeje bytů 2+1 v Praze 3?

Top nabídky

Podobné nemovitosti