Prodej bytu 4+kk, Ostopovice, B. Němcové, 170 m2

B. Němcové, Ostopovice

15 142 050 Kč /za nemovitost HYPOTÉKA od 67 676 Kč /za měsíc
Exkluzivní partneři v Ostopovicích

Informace k bytu

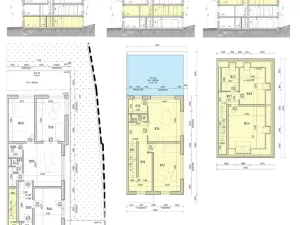
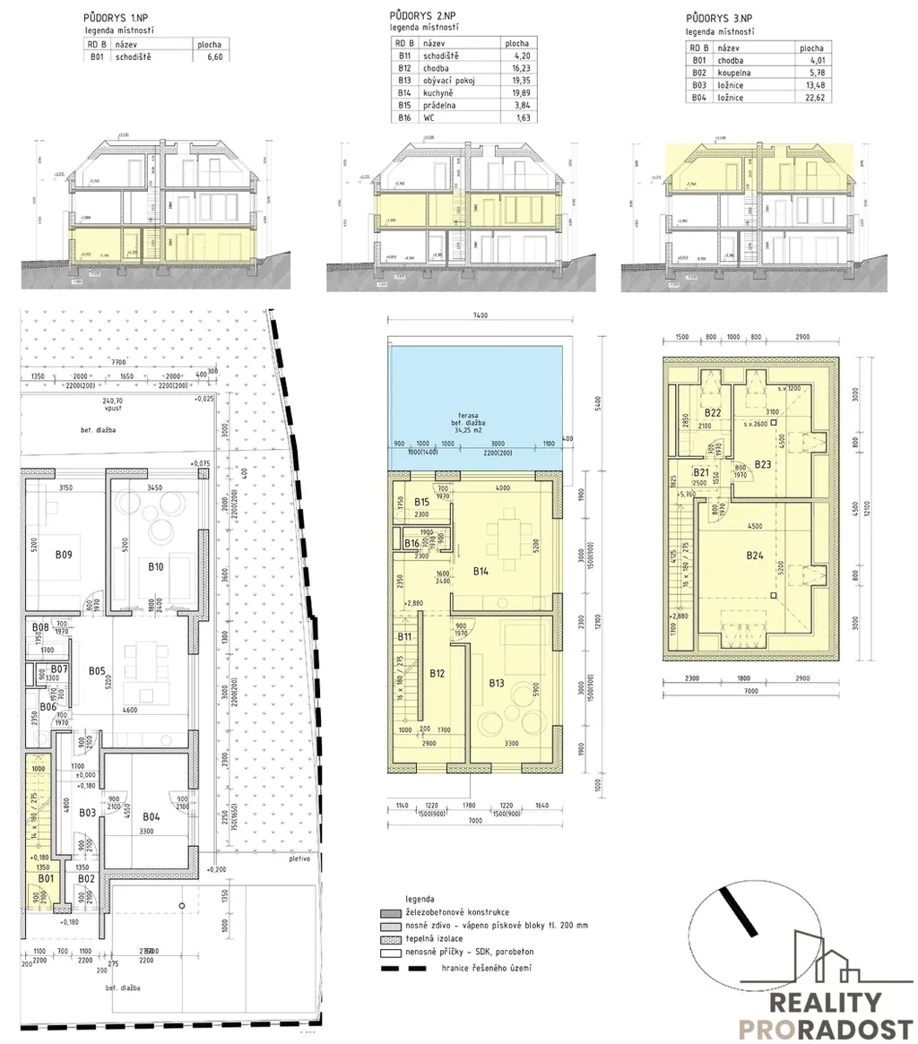
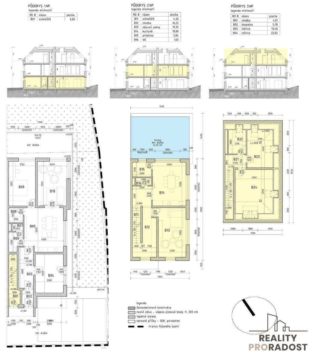
Jako vybraný zástupce majitele Vám exkluzivně nabízíme ke koupi moderní novostavbu bytu 4+kk o ploše 131 m² s velkou terasou 39 m² a vlastním parkovacím stáním. Byt se nachází v klidné části obce Ostopovice, v novém komorním domě se čtyřmi bytovými jednotkami.

Tato nabídka kombinuje komfort rodinného domu s praktičností bytu – soukromí, dostatek prostoru i skvělou dostupnost do Brna.

PROČ SI ZAMILUJETE TENTO BYT:
Vlastní terasa 39 m² - prostor pro relaxaci, grilování a rodinné chvíle
Vlastní parkovací místo - žádné starosti s parkováním
Soukromý vstup - pocit rodinného domu s praktičností bytu
Energetická třída A - minimální náklady na vytápění
15 minut do centra Brna - MHD i autem
Výkonná klimatizace - celé horní patro příjemně chladí i topí

DISPOZICE, KTERÁ DÁVÁ SMYSL:
Mezonetový byt s promyšleným řešením prostoru:
Prostorný obývací pokoj s kuchyní - přímý výstup na terasu
3 samostatné ložnice - ideální pro rodinu nebo home office
Technická místnost - dostatek úložného prostoru
Koupelna s WC + 1x samostatné WC - praktické řešení pro každodenní život

MODERNÍ STANDARD BEZ KOMPROMISŮ:
Rok dokončení 2025 - vše nové, bez skrytých vad
Trojskla + venkovní žaluzie - tepelný a akustický komfort
Podlahové vytápění - rovnoměrné teplo v celém bytě
Rekuperace vzduchu - zdravé prostředí celoročně
Kvalitní vinylové podlahy - krásné a praktické

LOKALITA, KTEROU OCENÍTE:
Ostopovice - to nejlepší z obou světů:
Kompletní občanská vybavenost - obchod, škola, školka
Cyklostezky a příroda - aktivní život přímo za dveřmi
Rychlé spojení s Brnem - dálniční přivaděč 5 minut autem
Klidné prostředí - pryč od městského ruchu, přesto blízko všemu

INVESTICE DO BUDOUCNOSTI:
Cena: 15 142 050 Kč (100 611 Kč/m²)
Férová cena pod brněnským průměrem
Energetická třída A = nízké náklady na vytápění
Rostoucí hodnota v atraktivní lokalitě
Možnost okamžitého nastěhování

Parametry bytu

Cena
15 142 050 Kč /za nemovitost Spočítat hypotéku
Aktualizováno
9. 10. 2025
Adresa
B. Němcové, Ostopovice
ID
27668
Stavba
Cihlová
Stav objektu
Novostavba
Patro
2. z 3
Vybaveno
Ne
Lokalita objektu
Centrum obce
Vlastnictví
Osobní
Užitná plocha
170 m2
Podlahová plocha
170 m2
Třída energetické náročnosti
A - Mimořádně úsporná
Elektřina
230V
Plyn
Plynovod
Odpad
Veřejná kanalizace
Komunikace
Asfaltová
Telekomunikace
Internet
Doprava
Dálnice, Silnice, MHD, Autobus
Voda
Vodovod
Terasa
Bezbarierový přístup
Nízkoenergetický

Kontaktovat makléře

Máte zájem o tento byt?

Tímto, v souladu s nařízením Evropského parlamentu a Rady (EU) 2016/679, v platném znění, prohlašuji, že mi je alespoň 16 let a uděluji tak svůj souhlas se zpracováním zadaných údajů (jméno, telefon, e-mail, ip adresa) společnosti B3 Technology, s.r.o., IČ: 07330600, se sídlem Novostavby 126/23, 435 11 Lom (správce dat), za účelem předání dotazu z tohoto formuláře Vámi vybranému inzerentovi a zpětného kontaktování mé osoby. Osobní údaje bude správce zpracovávat manuálně i automaticky přímo prostřednictvím svých zaměstnanců. Informace předané tímto formulářem budou uloženy v databázi správce maximálně po dobu 10 let. Odvolání souhlasu s uložením a zpracováním poskytnutých dat lze e-mailem na info@vitio.cz. V případě podezření na neoprávněné použití Vámi poskytnutých údajů máte právo předat podnět k šetření Úřadu pro ochranu osobních údajů. Více informací
Chystáte se prodat nemovitost?
Pomůžeme Vám!

Inzerát si prohlédlo 8 lidí

Prodejce

Adam Trčka

Adam Trčka

Hlídací pes

Chcete dostávat emailem podobné nabídky prodeje bytů 4+kk v Ostopovicích?

Podobné nemovitosti