Prodej pozemku pro bydlení, Týn nad Vltavou, 740 m2

Týn nad Vltavou, Koloděje nad Lužnicí

1 725 000 Kč /za nemovitost HYPOTÉKA od 7 710 Kč /za měsíc
Exkluzivní partneři v Týně nad Vltavou

Výkup a prodej starého nábytku

Informace k pozemku

Dovoluji si Vám exkluzivně nabídnout prodej stavební parcely v Kolodějích nad Lužnicí u Týna nad Vltavou. Mírně svažitý pozemek se spádem k severozápadu je položen na levém břehu Lužnice, ve vzdálenosti od řeky 238 m vzdušnou čarou (401 m po silnici) ve výškové úrovni 39 m nad hladinou (tedy bezpečně vysoko nad záplavovým územím).
Z hlediska následného využití parcely se jedná o plochu, vymezenou jako plocha bydlení v rodinných domech - venkovské - BV-S.
Územní plán stanovuje přípustné využití parcely tyto podmínky a regulativa:
- rodinné domy
- stavby pro ubytování, penziony
- stavby pro individuální rekreaci (charakteru rodinného domu)
- veřejná zeleň, veřejná prostranství a rekreační zeleň s prvky drobné architektury a
mobiliářem pro relaxaci
- vodní plochy, retenční nádrže
- zahrady a vybavení zahrad (např. skleníky, bazény, apod.)
- doplňkové stavby ke stavbě hlavní (garáže, apod.)
- výšková hladina zástavby nepřekročí 2 nadzemní podlaží + podkroví
- výšková hladina hřebene střechy nepřekročí 12 metrů
Nabízená parcela je pro chůzi a jízdu přístupná z obecní komunikace.
Pod příjezdovou komunikací k parcele je položen hlavní řád obecního vodovodu. Obecní kanalizace není v místě řešena. V ceně pozemku je přípojka elektřiny, zakončená kapličkou na hranici pozemku.
Přesná lokace parcely: N 49°15.21000', E 14°25.53845'

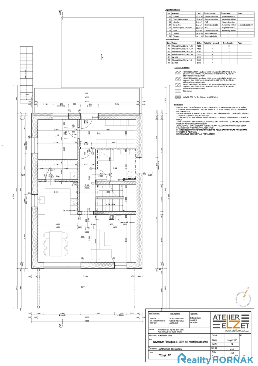
Součástí prodeje je kompletní projektová dokumentace a pravomocné stavební povolení ke stavbě novostavby rodinného domu, přístřešku pro auto a terasy s bioklimatickou pergolou. Stavebně se jedná o dvoupodlažní rodinný dům s jednou bytovou jednotkou o dispozici 5+1 se dvěma sociálními zázemími a technickou místností. Zastavěná plocha RD je 133 m2.
Projektová dokumentace řeší rodinný dům jako nepodsklepený, pouze se severní strany je doplněn o sklad a samostatný přístřešek. V 1.NP se nachází obývací pokoj spojený s kuchyní, spíž, koupelna a technická místnost. Z obývacího pokoje je možné vstoupit na terasu. Po schodech z chodby se bude vystupovat do 2.NP, kde se nachází dva pokoje, pracovna, koupelna a ložnice, se samostatnou šatnou a koupelnou. Větrání je navrženo přirozeně okny a dveřmi, vytápění tepelným čerpadlem a rozvody podlahového vytápění a radiátory v objektu. Jako doplňkový zdroj vytápění jsou navrženy krbová kamna, která jsou umístěna v obývacím pokoji. Zásobování vodou bude zajištěno pomocí nové přípojky v napojení stávající vodovod. Odkanalizování objektu je projektováno domácí čističkou odpadních vod s přepadem do vsakovací jímky.
Vlastnická práva k nabízené parcele nejsou nikým a ničím omezena, k předání může dojít okamžitě.

Parametry pozemku

Cena
1 725 000 Kč /za nemovitost Spočítat hypotéku
Aktualizováno
28. 1. 2026
Adresa
Týn nad Vltavou, Koloděje nad Lužnicí
ID
XVA-IH-PA250905
Lokalita objektu
Okraj obce
Plocha pozemku
740 m2
Elektřina
230V, 400V
Komunikace
Asfaltová
Doprava
Silnice, Autobus
Převod do OV

Kontaktovat makléře

Realitní kancelář

REALITY HORŇÁK

Náměstí Míru 38, Týn nad Vltavou

Chystáte se prodat nemovitost?
Pomůžeme Vám!

Máte zájem o tento pozemek?

Tímto, v souladu s nařízením Evropského parlamentu a Rady (EU) 2016/679, v platném znění, prohlašuji, že mi je alespoň 16 let a uděluji tak svůj souhlas se zpracováním zadaných údajů (jméno, telefon, e-mail, ip adresa) společnosti B3 Technology, s.r.o., IČ: 07330600, se sídlem Novostavby 126/23, 435 11 Lom (správce dat), za účelem předání dotazu z tohoto formuláře Vámi vybranému inzerentovi a zpětného kontaktování mé osoby. Osobní údaje bude správce zpracovávat manuálně i automaticky přímo prostřednictvím svých zaměstnanců. Informace předané tímto formulářem budou uloženy v databázi správce maximálně po dobu 10 let. Odvolání souhlasu s uložením a zpracováním poskytnutých dat lze e-mailem na info@vitio.cz. V případě podezření na neoprávněné použití Vámi poskytnutých údajů máte právo předat podnět k šetření Úřadu pro ochranu osobních údajů. Více informací
Chystáte se prodat nemovitost?
Pomůžeme Vám!

Inzerát si prohlédlo 25 lidí

Prodejce

Ivan Horňák

Ivan Horňák

Hlídací pes

Chcete dostávat emailem podobné nabídky prodeje pozemků pro bydlení v Týně nad Vltavou?

Podobné nemovitosti