Úvaly
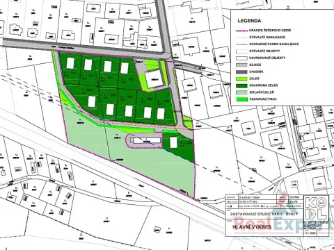
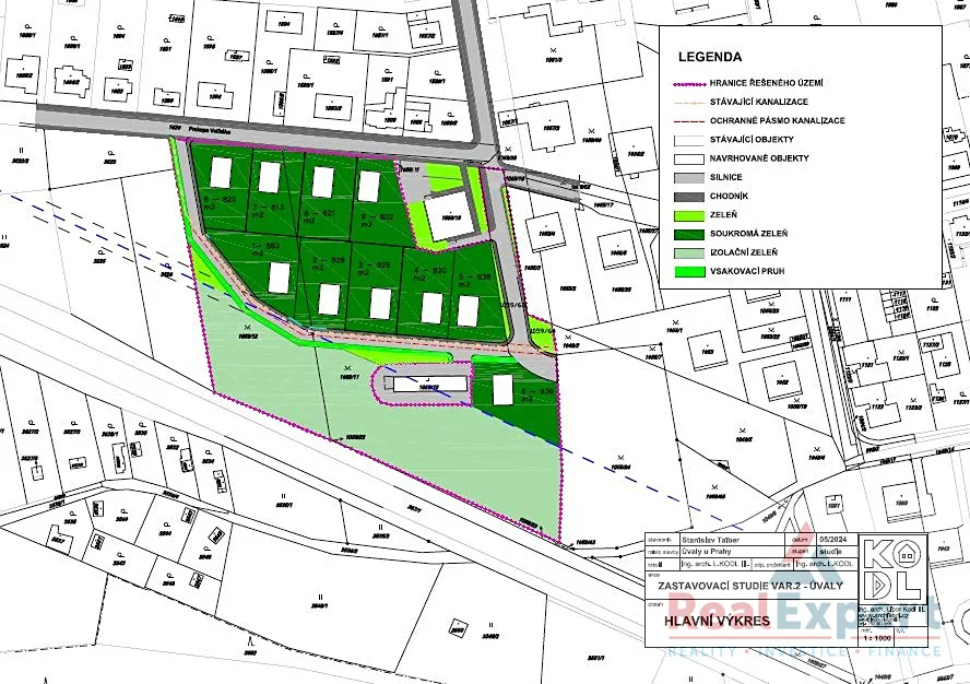
Nabízíme k prodeji stavební pozemky o celkové výměře 16.048, se schválenou zastavovací studií m2 v atraktivní lokalitě Prahy - východ, město Úvaly. Pozemky se nachází v lokalitě určené územním plánem jako čistě obytné území pro bydlení v rodinných domech, v rámci zastavovací studie je schválena výstavba 10 RD. Zastupitelstvo města Úvaly schválilo na svém zasedání dne 12.12.2024 pod usnesením Z-110/2024 ”Zásady pro poskytování příspěvků na technickou, dopravní a další veřejnou infrastrukturu nebo veřejné prostranství při realizaci bytové a nebytové výstavby na území města Úvaly (novela 2024)”. Více informací a vzor veřejnoprávní plánovací smlouvy k dispozici u RK. Zajímavá příležitost - doporučujeme!
Slezská 949/32, Praha 2
Máte zájem o tento pozemek?
Inzerát si prohlédlo 4 lidí
 
                                Martin Černý
Chcete dostávat emailem podobné nabídky prodeje pozemků pro bydlení v Úvalech?