Prodej bytu 4+1, Pardubice - Zelené Předměstí, Sokolovská, 113 m2

Sokolovská, Pardubice, Zelené Předměstí

9 200 000 Kč /za nemovitost HYPOTÉKA od 41 118 Kč /za měsíc
Exkluzivní partneři v Pardubicích

Informace k bytu

Hledáte prostorné a pohodlné bydlení pro sebe i svou rodinu? Máme pro vás byt, který vás nadchne!
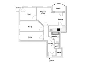
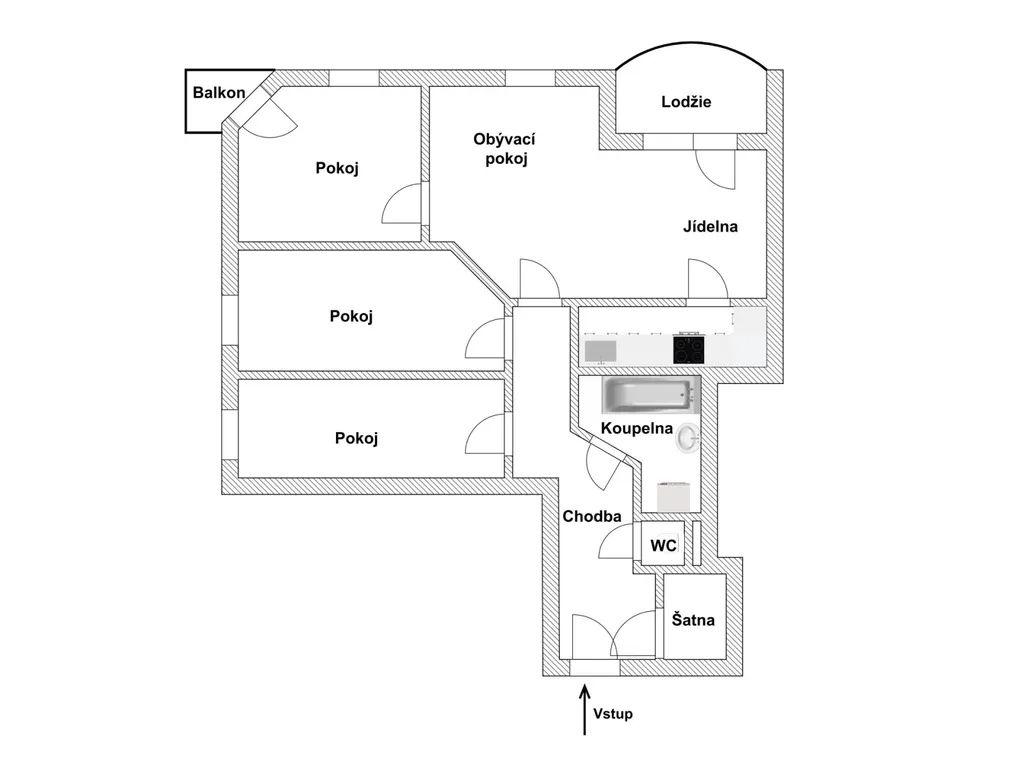
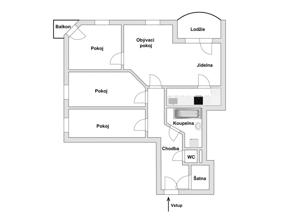
V exkluzivním zastoupení majitelů nabízím výjimečnou nemovitost, nacházející se ve třetím patře domu s výtahem na adrese Sokolovská 2720 v Pardubicích. Kromě velkorysé podlahové plochy (celkem včetně příslušenství 133 m²) nabízí toto bydlení i větší balkon (3,5 m²), prostornou lodžii (7,8m²) s pěkným výhledem, kde si můžete vychutnat ranní kávu nebo večerní posezení. Nechybí ani desetimetrový sklep a možnost vlastního garážové stání v suterénu domu 2,5x5 m².
Byt je moderně dispozičně řešený a poskytuje dostatek místa pro pohodlný rodinný život. Najdete zde vzdušnou vstupní chodbu, velkou kuchyni, obývací pokoj s jídelnou, který se stane srdcem domova. Dále tři samostatné pokoje, koupelnu, samostatné WC, a praktickou šatnu.
I když se nejedná o novostavbu, byt je velmi dobře udržovaný, ve skvělém technickém stavu a připravený k okamžitému nastěhování.
Lokalita je ideální pro rodiny s dětmi. V okolí najdete školky, školy, hřiště, obchody, lékaře i kulturní a sportovní vyžití. Okrajová část sídliště nabízí dostatek zeleně a klid, a přitom zůstává skvěle dostupná. V blízkosti domu je rychlostní komunikace s napojením na dálnici D11, díky čemuž se pohodlně dostanete do Prahy, Hradce Králové i Chrudimi.
Tento byt je skvělou příležitostí pro ty, kteří hledají prostorné a komfortní bydlení v žádané části Pardubic s perfektní dostupností a výborným zázemím pro rodinný život.
Byt je vymalovaný, precizně uklizený a připravený k okamžitému nastěhování. Díky nezatíženému listu vlastnictví může být celý proces prodeje velmi rychlý a hladký. S financováním rád pomůže náš zkušený hypoteční specialista.

Parametry bytu

Cena
9 200 000 Kč /za nemovitost Spočítat hypotéku
Aktualizováno
16. 12. 2025
Adresa
Sokolovská, Pardubice, Zelené Předměstí
ID
2025-08-21
Stavba
Cihlová
Stav objektu
Velmi dobrý
Patro
3.
Typ objektu
Patrový
Lokalita objektu
Klidná část obce
Vlastnictví
Osobní
Užitná plocha
113 m2
Podlahová plocha
113 m2
Třída energetické náročnosti
C - Úsporná
Balkon
Sklep
Lodžie
Výtah
Bezbarierový přístup
Parkování

Kontaktovat makléře

Máte zájem o tento byt?

Tímto, v souladu s nařízením Evropského parlamentu a Rady (EU) 2016/679, v platném znění, prohlašuji, že mi je alespoň 16 let a uděluji tak svůj souhlas se zpracováním zadaných údajů (jméno, telefon, e-mail, ip adresa) společnosti B3 Technology, s.r.o., IČ: 07330600, se sídlem Novostavby 126/23, 435 11 Lom (správce dat), za účelem předání dotazu z tohoto formuláře Vámi vybranému inzerentovi a zpětného kontaktování mé osoby. Osobní údaje bude správce zpracovávat manuálně i automaticky přímo prostřednictvím svých zaměstnanců. Informace předané tímto formulářem budou uloženy v databázi správce maximálně po dobu 10 let. Odvolání souhlasu s uložením a zpracováním poskytnutých dat lze e-mailem na info@vitio.cz. V případě podezření na neoprávněné použití Vámi poskytnutých údajů máte právo předat podnět k šetření Úřadu pro ochranu osobních údajů. Více informací
Chystáte se prodat nemovitost?
Pomůžeme Vám!

Inzerát si prohlédlo 56 lidí

Prodejce

Lucie Kopecká

Lucie Kopecká

Hlídací pes

Chcete dostávat emailem podobné nabídky prodeje bytů 4+1 v Pardubicích?

Podobné nemovitosti