Prodej pozemku pro bydlení, Liberec - Liberec XXX-Vratislavice nad Nisou, Za Tratí, 1200 m2

Za Tratí, Liberec XXX-Vratislavice nad Nisou

2 500 000 Kč /za nemovitost HYPOTÉKA od 11 173 Kč /za měsíc

(Včetně právního servisu.)

Exkluzivní partneři v Liberci

Rekonstrukce

Úklidové služby

Informace k pozemku

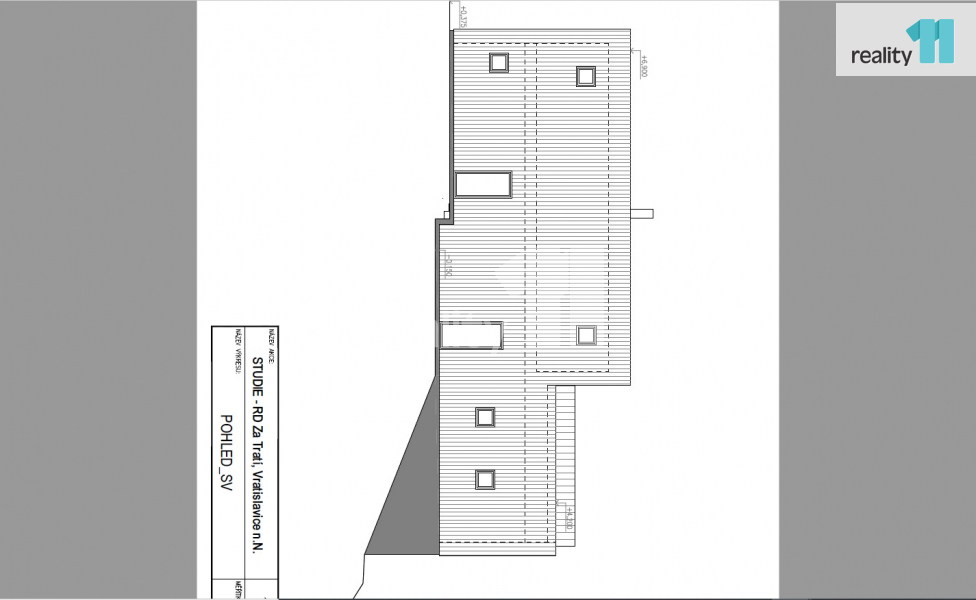
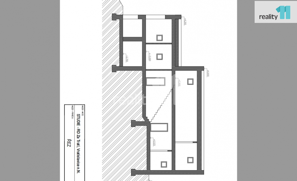
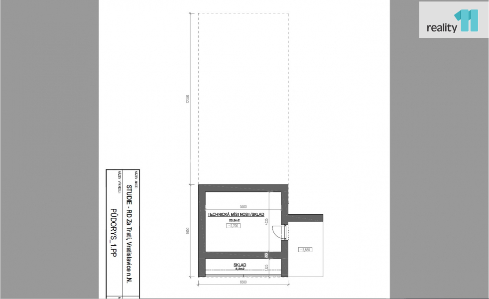
Prodej stavebního pozemku BO - bydlení všeobecné o velikosti 1200 m² pro stavbu rodinného domu se zastavitelnou plochou 10% dle ÚP. Pozemek v obci Liberec, katastrální území Vratislavice nad Nisou, ul. Za Tratí je svažitý se zarovnáním do 5 rovných teras s krásným výhledem na západní stranu do údolí a v letním období celodenně prosluněným. Místem vás pozemek nadchne maximálním soukromím bez rušivých elementů sousedů. Budoucí vlastníci se mohou těšit na soukromí a unikátní umístění pozemku.
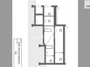
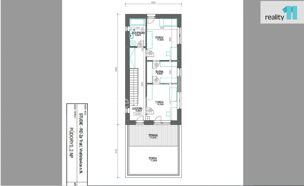
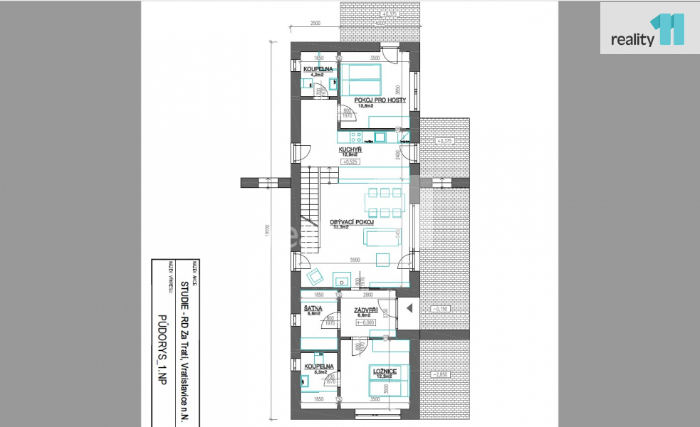
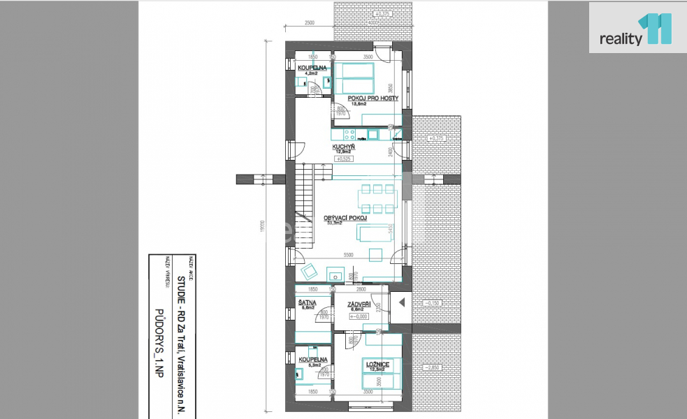
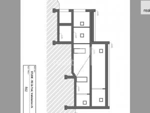
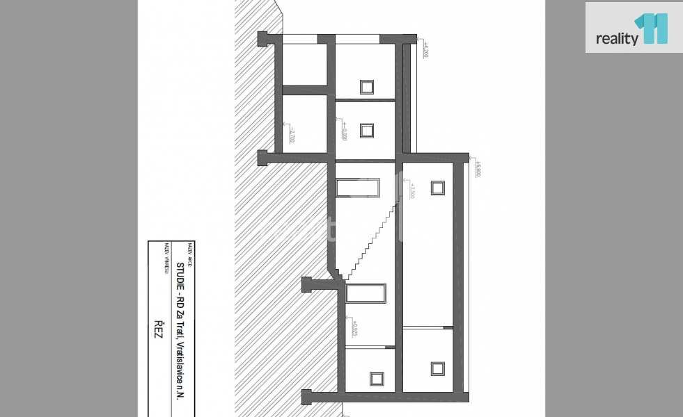
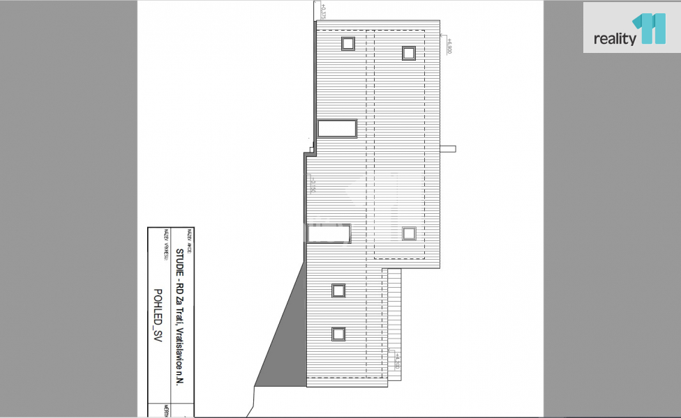
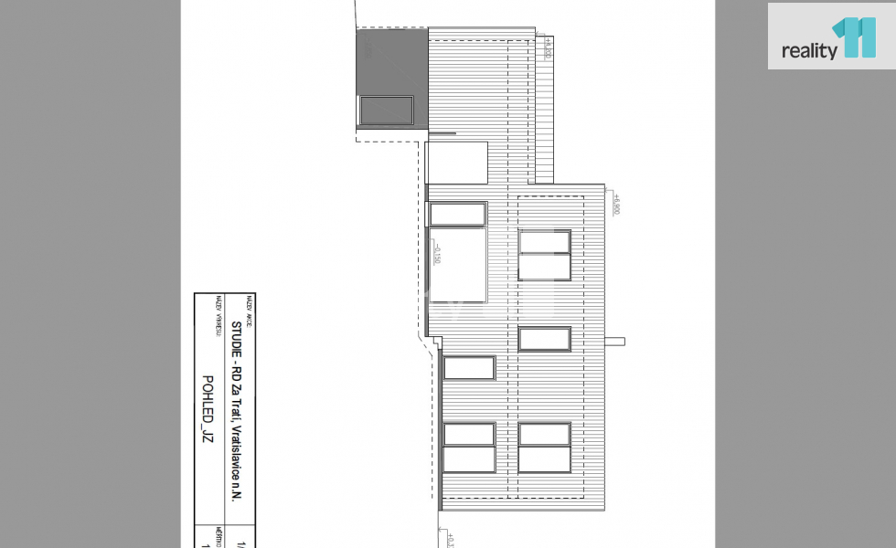
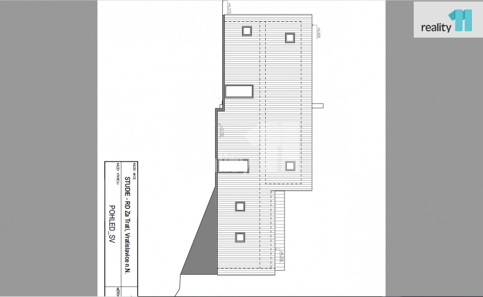
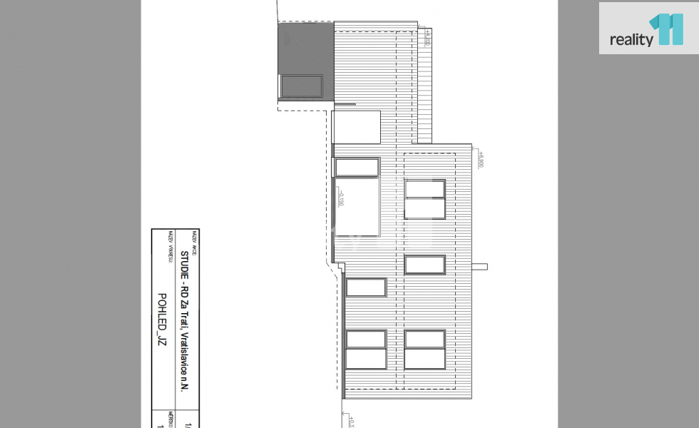
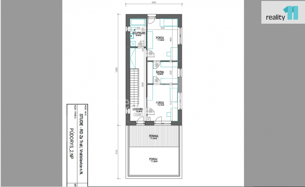
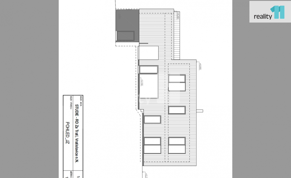
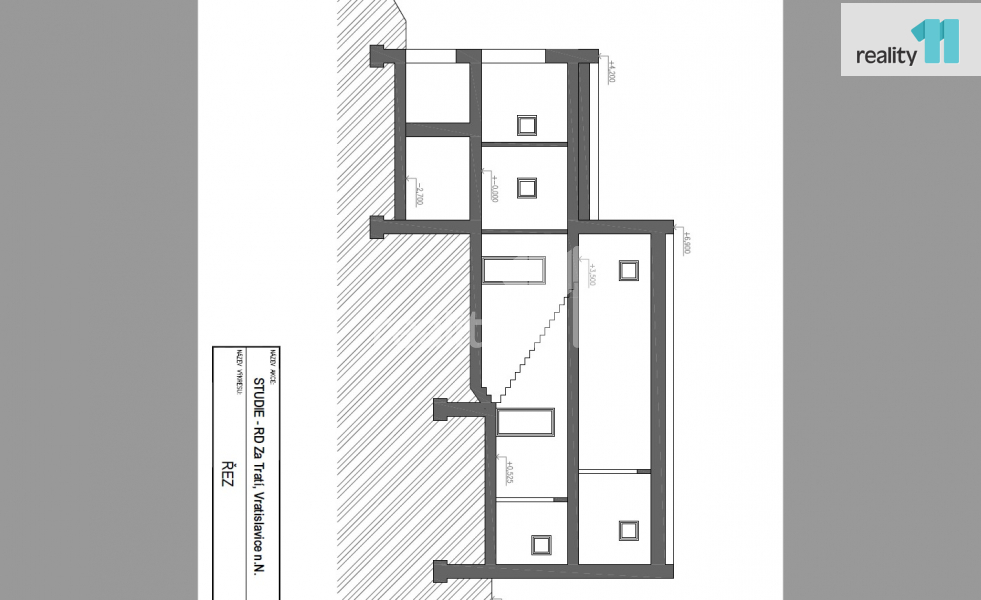
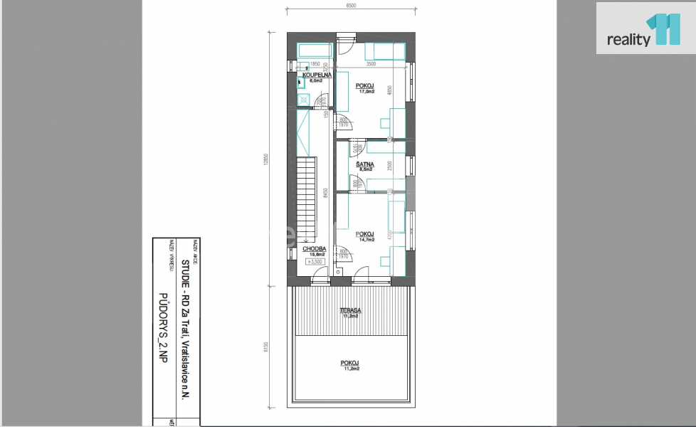
Na pozemku vlastní studna se skružemi - není projektována a není rozbor, elektřina, voda z řadu a plyn na hranici pozemku, kanalizace v ulici není, odpady řešit formou ČOV, jímka. Přístup k pozemku po obecní asfaltové komunikaci. Připravena studie pro stavbu moderního terasového rodinného domu na pilotech s parkováním pro 2 vozy. Zájemce si však může připravit svou vizi nového bydlení. Nově od 4/2024 dokončena tramvajová trať Liberec - Jablonec n. Nisou a k pozemku je i přístup po nově asfaltové cestě ze strany od Rádla - Milíře. Tramvajová zastávka 3 minuty chůze od pozemku.
Více informací podá makléř Reality11 Liberecko. Ev. číslo: 27164.

Parametry pozemku

Cena
2 500 000 Kč /za nemovitost Spočítat hypotéku
Poznámka k ceně
Včetně právního servisu.
Aktualizováno
4. 11. 2025
Adresa
Za Tratí, Liberec XXX-Vratislavice nad Nisou
ID
27164
Plocha pozemku
1200 m2

Kontaktovat makléře

Máte zájem o tento pozemek?

Tímto, v souladu s nařízením Evropského parlamentu a Rady (EU) 2016/679, v platném znění, prohlašuji, že mi je alespoň 16 let a uděluji tak svůj souhlas se zpracováním zadaných údajů (jméno, telefon, e-mail, ip adresa) společnosti B3 Technology, s.r.o., IČ: 07330600, se sídlem Novostavby 126/23, 435 11 Lom (správce dat), za účelem předání dotazu z tohoto formuláře Vámi vybranému inzerentovi a zpětného kontaktování mé osoby. Osobní údaje bude správce zpracovávat manuálně i automaticky přímo prostřednictvím svých zaměstnanců. Informace předané tímto formulářem budou uloženy v databázi správce maximálně po dobu 10 let. Odvolání souhlasu s uložením a zpracováním poskytnutých dat lze e-mailem na info@vitio.cz. V případě podezření na neoprávněné použití Vámi poskytnutých údajů máte právo předat podnět k šetření Úřadu pro ochranu osobních údajů. Více informací
Chystáte se prodat nemovitost?
Pomůžeme Vám!

Inzerát si prohlédlo 4 lidí

Prodejce

Robert Táborský

Robert Táborský

Hlídací pes

Chcete dostávat emailem podobné nabídky prodeje pozemků pro bydlení v Liberci?

Podobné nemovitosti