Prodej obchodního prostoru, Kralupy nad Vltavou, Přemyslova, 133 m2

Přemyslova, Kralupy nad Vltavou, Mikovice

5 090 000 Kč /za nemovitost HYPOTÉKA od 22 749 Kč /za měsíc
Exkluzivní partneři v Kralupech nad Vltavou

Informace k nemovitosti

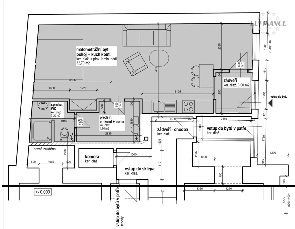
Nabízíme Vám zprostředkování prodeje nebytového prostoru (prodejny) vč. bytu o dispozici 1+kk o celkové výměře 132,6 m2. Oba prostory se nachází ve stejném 1. NP v bytovém domě v obci Kralupy nad Vltavou, ulice Přemyslova. K prodejně i bytu dále náleží společné sklepní prostory a dvě velké nevyužité místnosti, které lze pronajmout samostatně nebo připojit k bytu či k prodejně. Veškeré dispozice bytu, prodejny a úložných prostorů naleznete v přiloženém půdoryse. Parkování je možné zdarma před domem.
Prodejna i bytová jednotka jsou dlouhodobě pronajaté s čistým měsíčním nájmem 19 600,- slušným, dlouhodobým a platícím nájemcům, tak lze pouze převzít sjednané nájemní smlouvy, popř. obě nájemní smlouvy (prodejna i byt) lze vypovědět s tříměsíční výpovědní lhůtou. Nemovitost je vhodná pro investora, který nemovitost jen převezme nájemní smlouvy.
Celá nemovitost má platné Prohlášení vlastníka a je řádně zkolaudována, na vyžádání pošleme emailem. Na prodejnu je dále Stavebním úřadem schválena změna užívání na kosmetické a nehtové studio, nicméně nadále může zůstat stávající využití prodejny.
Bytová jednotka se nachází v zadní části v 1. NP cihlového domu, tudíž nemá okna do ulice (byt bez oken). Byt má zděné jádro, nové rozvody topení a vody v plastu a elektřiny v mědi. V bytě jsou k dispozici veškeré inženýrské sítě, kabelová televize vč. rychlostního internetu. Byt je vytápěn elektro kotlem do radiátorů. Na podlahách je položena dlažba a plovoucí podlaha.
Prodejna má rovněž zděné jádro a veškeré nové rozvody elektřiny, topení i vody, vytápění je plynovým kotlem do radiátorů.
Ve městě Kralupy n.Vlt. je kompletní občanská vybavenost (10 min pěšky): mateřské i základní školy, supermarkety, zdravotní středisko, nemocnice, pošta, banky. Přímo naproti domu se nachází autobusová zastávka, odkud lze dojet na vlakové nádraží nebo PID do Prahy na metro. 12 min pěšky je vzdálené autobusové a vlakové nádraží s přímým spojem 25 min do centra Prahy na Masarykovo či Hlavní nádraží (3 vlaky za hodinu). Právní servis vč. vyřízení úvěru zdarma.

Parametry nemovitosti

Cena
5 090 000 Kč /za nemovitost Spočítat hypotéku
Náklady na bydlení
Poplatky na prodejnu: 1 280,- | Poplatky na byt: 3 400,-
Aktualizováno
13. 8. 2025
Adresa
Přemyslova, Kralupy nad Vltavou, Mikovice
ID
165
Stavba
Cihlová
Stav objektu
Velmi dobrý
Typ objektu
Přízemní
Lokalita objektu
Sídliště
Užitná plocha
133 m2
Podlahová plocha
133 m2
Třída energetické náročnosti
G - Mimořádně nehospodárná
Elektřina
230V, 400V
Plyn
Plynovod
Odpad
Veřejná kanalizace
Topení
Lokální plynové, Lokální elektrické
Komunikace
Asfaltová
Telekomunikace
Telefon, Internet, Satelit, Kabelová televize, Kabelové rozvody
Doprava
Vlak, Dálnice, Silnice, MHD, Autobus
Voda
Místní zdroj vody
Topné těleso
Radiátory
Zdroj topení
Plynový kotel, Elektrokotel
Zdroj teplé vody
Plynový kotel, Elektrokotel
Výtah
Bezbarierový přístup
Parkování

Kontaktovat makléře

Realitní kancelář

Logo EUFINANCE, s.r.o.

EUFINANCE, s.r.o.

Tylova 735, Kralupy nad Vltavou

Chystáte se prodat nemovitost?
Pomůžeme Vám!

Máte zájem o tuto nemovistost?

Tímto, v souladu s nařízením Evropského parlamentu a Rady (EU) 2016/679, v platném znění, prohlašuji, že mi je alespoň 16 let a uděluji tak svůj souhlas se zpracováním zadaných údajů (jméno, telefon, e-mail, ip adresa) společnosti B3 Technology, s.r.o., IČ: 07330600, se sídlem Novostavby 126/23, 435 11 Lom (správce dat), za účelem předání dotazu z tohoto formuláře Vámi vybranému inzerentovi a zpětného kontaktování mé osoby. Osobní údaje bude správce zpracovávat manuálně i automaticky přímo prostřednictvím svých zaměstnanců. Informace předané tímto formulářem budou uloženy v databázi správce maximálně po dobu 10 let. Odvolání souhlasu s uložením a zpracováním poskytnutých dat lze e-mailem na info@vitio.cz. V případě podezření na neoprávněné použití Vámi poskytnutých údajů máte právo předat podnět k šetření Úřadu pro ochranu osobních údajů. Více informací
Chystáte se prodat nemovitost?
Pomůžeme Vám!

Inzerát si prohlédlo 4 lidí

Prodejce

Ivo Loskot

Ivo Loskot

Hlídací pes

Chcete dostávat emailem podobné nabídky prodeje obchodních prostor v Kralupech nad Vltavou?

Podobné nemovitosti