Prodej bytu 3+kk, Luhačovice, Mlýnská, 87 m2

Mlýnská, Luhačovice

7 990 000 Kč /za nemovitost HYPOTÉKA od 35 710 Kč /za měsíc

(Cena včetně výstavby bytu, kolaudace, pozemku, terasy, parkování a zahrady.)

Exkluzivní partneři v Luhačovicích

Informace k bytu

Zprostředkujeme Vám exkluzivní nabídku výstavby prostorného bytu 3+kk na klíč v Luhačovicích s terasou, zahradou a parkovacím stáním.
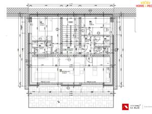
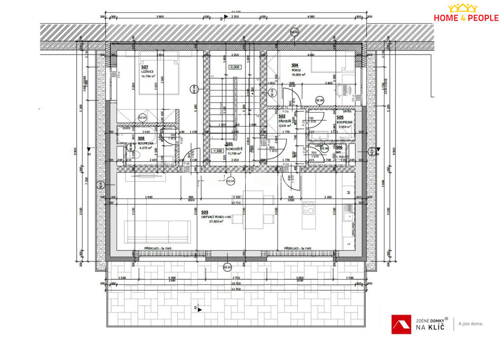
Máme pro vás jedinečnou příležitost vlastnit luxusní byt 3+kk o podlahové výměře 87,75 m² v centru Luhačovic s terasou o rozloze 30 m² a soukromou zahradou o velikosti 150 m².
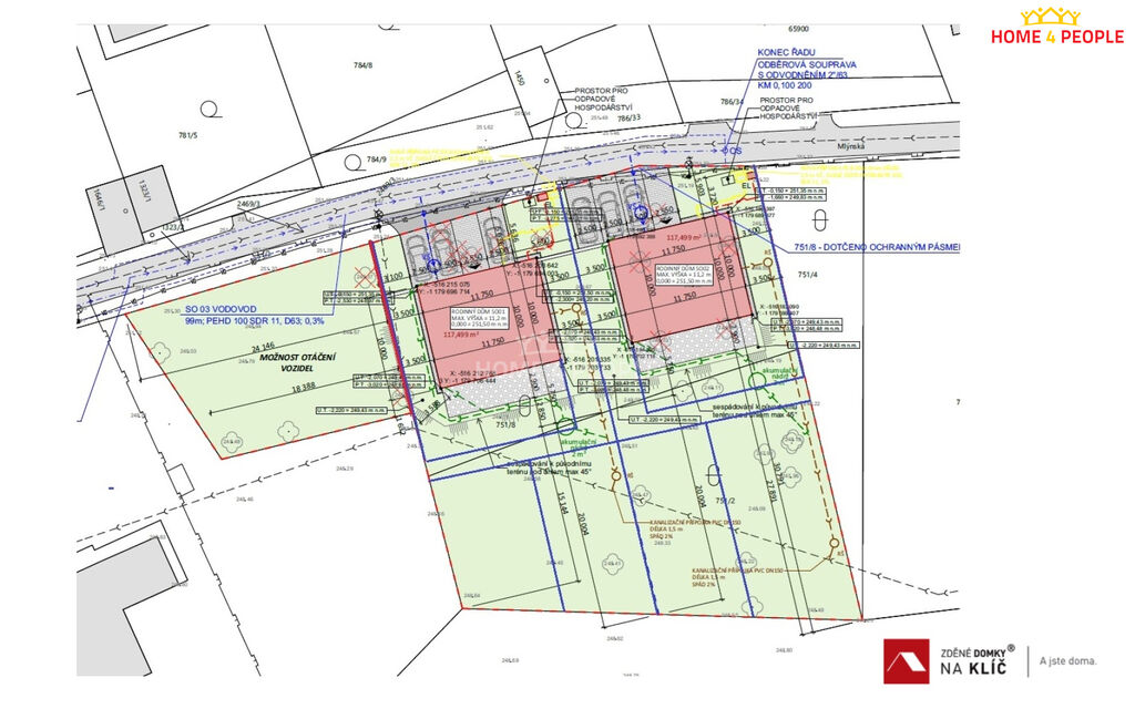
Tento moderní byt bude situován v nově vznikající tří podlažní budově ve spodní části se vstupem na terasu. Výhodou je vlastní parkovací stání o rozloze 15 m². Součástí ceny je také třetinový podíl na okolních a zastavěných pozemcích.
Byt je navržen pro klienty, kteří ocení kvalitní provedení a prostorné interiéry. Dispozice bytu je ideální pro rodinu či páry, kteří hledají moderní a komfortní bydlení v centru Luhačovic.
Obývací pokoj s kuchyňským koutem o velikosti 38m² byl navržen tak, aby navazoval na prostornou terasou 30 m² a zároveň na vlastní zahradu 150 m².
Dispozice dále nabízí ložnici 15 m² a dětský pokoj 10 m², samozřejmostí jsou také dvě samostatné koupelny s WC + další samostatné WC.
Nabízíme vám možnost bydlení spojené s pohodlím v samém centru Luhačovic a zároveň se skvělou dostupností všech služeb. Nechte se okouzlit krásou Luhačovic a zainvestujte do svého vlastního bydlení.
Buďte první, kdo využije této jedinečné nabídky! Fotografie interiéru jsou pouze ilustrativní. Pro více informací nás neváhejte kontaktovat. Ev. číslo: 31889.

Parametry bytu

Cena
7 990 000 Kč /za nemovitost Spočítat hypotéku
Poznámka k ceně
Cena včetně výstavby bytu, kolaudace, pozemku, terasy, parkování a zahrady.
Aktualizováno
7. 11. 2025
Adresa
Mlýnská, Luhačovice
ID
31889
Stavba
Cihlová
Stav objektu
Ve výstavbě
Patro
1. z 3
Vlastnictví
Osobní
Užitná plocha
87 m2
Podlahová plocha
87 m2
Třída energetické náročnosti
A - Mimořádně úsporná
Ukazatel energetické náročnosti
49 kWh/m2 za rok
Terasa
Parkování

Kontaktovat makléře

Máte zájem o tento byt?

Tímto, v souladu s nařízením Evropského parlamentu a Rady (EU) 2016/679, v platném znění, prohlašuji, že mi je alespoň 16 let a uděluji tak svůj souhlas se zpracováním zadaných údajů (jméno, telefon, e-mail, ip adresa) společnosti B3 Technology, s.r.o., IČ: 07330600, se sídlem Novostavby 126/23, 435 11 Lom (správce dat), za účelem předání dotazu z tohoto formuláře Vámi vybranému inzerentovi a zpětného kontaktování mé osoby. Osobní údaje bude správce zpracovávat manuálně i automaticky přímo prostřednictvím svých zaměstnanců. Informace předané tímto formulářem budou uloženy v databázi správce maximálně po dobu 10 let. Odvolání souhlasu s uložením a zpracováním poskytnutých dat lze e-mailem na info@vitio.cz. V případě podezření na neoprávněné použití Vámi poskytnutých údajů máte právo předat podnět k šetření Úřadu pro ochranu osobních údajů. Více informací
Chystáte se prodat nemovitost?
Pomůžeme Vám!

Inzerát si prohlédlo 17 lidí

Prodejce

Radim Vacula - Člen Realitní Komory ČR

Radim Vacula - Člen Realitní Komory ČR

Hlídací pes

Chcete dostávat emailem podobné nabídky prodeje bytů 3+kk v Luhačovicích?

Podobné nemovitosti