Prodej bytu 3+kk, Brno - Horní Heršpice, 56 m2 (ID: 2389337)

Brno, Horní Heršpice

8 190 000 Kč /za nemovitost HYPOTÉKA od 36 604 Kč /za měsíc

(za nemovitost)

Exkluzivní partneři v Brně

Informace k bytu

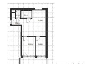
Nabízíme prostorný a světlý byt 3+kk v 2NP v bytovém domě na ulici Pražákova, který je skvělou volbou pro mladou rodinu. Byt má promyšlenou dispozici a nabízí dostatek soukromí i prostoru pro společné chvíle.

Po vstupu do praktického zádveří najdete vlevo samostatnou toaletu. Hlavní obytný prostor s kuchyní (24 m²) je ideální pro setkávání s rodinou a přáteli. Z obývací části je vstup do nadstandardní koupelny s walk-in sprchovým koutem a dále do dvou samostatných ložnic.

Větší ložnice má přímý vstup na krásnou 16m² terasu orientovanou jižně do klidné zahrady – ideální místo pro relaxaci nebo dětské hry.

Právě teď máte jedinečnou možnost pořídit byt v bytovém domě Pražákova za zahajovací ceny.

Vybavení bytu:
- elektronicky ovládané vchodové dveře pro maximální pohodlí a bezpečnost
- elektrické podlahové topení zajistí rovnoměrné rozložení tepla v každé místnosti a přispívá k úspornějšímu vytápění
- rekuperace pro neustálý přísun čerstvého vzduchu při zachování teplotního komfortu. Snižuje vlhkost, znamená také nižší náklady na vytápění díky zpětnému získávání tepla
- předokenní žaluzie = větší soukromí, stín a optimální teplotu v interiéru v létě i v zimě.
- podlahová krytina SPC (velmi odolný materiál, který kombinuje keramickou vrstvu s linoleem, bezspárová technologie pokládky - nepoškozuje nábytek, lepší tepelná vodivost)
- designové obklady a zařizovací předměty prémiových značek Kaldewei, Villeroy & Boch.

Celý dům je pečlivě připraven a promyšlen do nejmenších detailů tak, aby Vám nabídl přesně takové bydlení, o jakém jste snili. Energeticky úsporný bytový dům Pražákova je umístěn v uzavřeném areálu a disponuje pokročilými inteligentními technologiemi. K dispozici jsou parkovací stání, garážová stání i garáže a sklepní kóje. Velkou výhodou je blízkost univerzitního Campusu v Bohunicích, Spielberk office centra, a dobrá dostupnost na D1, D2 i do centra Brna.

Bytový dům bude osazen inteligentní technologií vstupu. Zapomeňte na klíče, otevřete si pomocí čipu, aplikace nebo rozpoznáním obličeje. Dům nabízí zvýšenou bezpečnost díky omezení neautorizovaného vstupu. Pokud čip někde ztratíte, jednoduše ho přes aplikaci zablokujete.

Stavba zahájena, dokončení projektu v květnu 2026.

Pokud Vám tento byt nevyhovuje, ozvěte se, v projektu jsou k dispozici větší i menší byty.

Rádi se s Vámi sejdeme u kávy a osobně Vám projekt v detailu odprezentujeme.

Parametry bytu

Cena
8 190 000 Kč /za nemovitost Spočítat hypotéku
Poznámka k ceně
za nemovitost
Aktualizováno
6. 10. 2025
Adresa
Brno, Horní Heršpice
ID
A903
Stavba
Cihlová
Stav objektu
Velmi dobrý
Patro
2. z 4
Vybaveno
Ne
Druh objektu
Rohový
Vlastnictví
Osobní
Užitná plocha
56 m2
Podlahová plocha
72 m2
Třída energetické náročnosti
B - Velmi úsporná
Ukazatel energetické náročnosti
70 kWh/m2 za rok
Odpad
Veřejná kanalizace
Voda
Vodovod
Terasa
Výtah
Parkování

Kontaktovat makléře

Realitní kancelář

Logo AC Real

AC Real

Dělnická 397/39, Brno

Chystáte se prodat nemovitost?
Pomůžeme Vám!

Máte zájem o tento byt?

Tímto, v souladu s nařízením Evropského parlamentu a Rady (EU) 2016/679, v platném znění, prohlašuji, že mi je alespoň 16 let a uděluji tak svůj souhlas se zpracováním zadaných údajů (jméno, telefon, e-mail, ip adresa) společnosti B3 Technology, s.r.o., IČ: 07330600, se sídlem Novostavby 126/23, 435 11 Lom (správce dat), za účelem předání dotazu z tohoto formuláře Vámi vybranému inzerentovi a zpětného kontaktování mé osoby. Osobní údaje bude správce zpracovávat manuálně i automaticky přímo prostřednictvím svých zaměstnanců. Informace předané tímto formulářem budou uloženy v databázi správce maximálně po dobu 10 let. Odvolání souhlasu s uložením a zpracováním poskytnutých dat lze e-mailem na info@vitio.cz. V případě podezření na neoprávněné použití Vámi poskytnutých údajů máte právo předat podnět k šetření Úřadu pro ochranu osobních údajů. Více informací
Chystáte se prodat nemovitost?
Pomůžeme Vám!

Inzerát si prohlédlo 5 lidí

Prodejce

Irena Šneková

Irena Šneková

Hlídací pes

Chcete dostávat emailem podobné nabídky prodeje bytů 3+kk v Brně?

Podobné nemovitosti