Pronájem kanceláře, Kopřivnice, Záhumenní, 18 m2

Záhumenní, Kopřivnice

4 600 Kč /za měsíc Získejte výhodnou HYPOTÉKU

(+ záloha na služby Ihned volný prostor!)

Exkluzivní partneři v Kopřivnici

Informace k nemovitosti

Hledáte menší, reprezentativní kancelář s výbornou dostupností a příjemným pracovním prostředím – ať už pro sebe, svého zaměstnance nebo pro jednání s klienty?

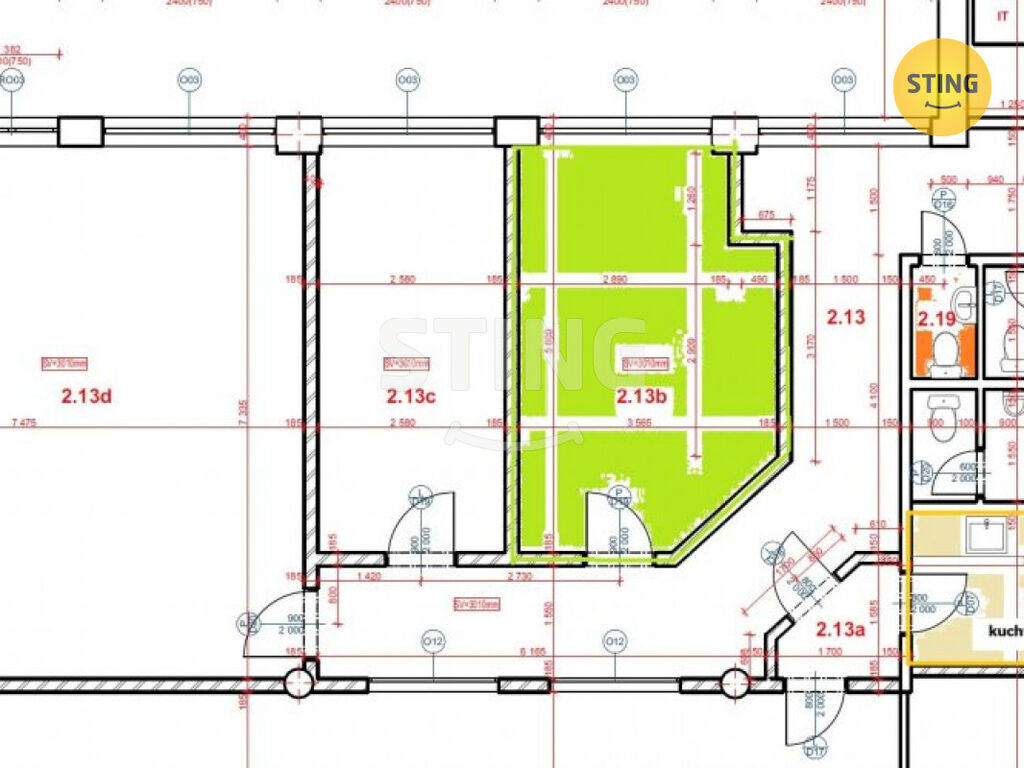
Nabízíme k pronájmu komerční prostor o výměře 18 m2 vybavený klimatizací, umístěný ve 2. nadzemním podlaží prestižní budovy na ulici Záhumenní v centru Kopřivnice. V objektu dlouhodobě sídlí renomované společnosti – Česká spořitelna, RBP, advokátní kancelář, architektonické studio a IT firma. Budova se nachází přímo u hlavní komunikace a je ve velmi dobrém technickém stavu.

Kancelář č. 2.13b je světlá, s vysokými stropy a poskytuje komfortní pracovní prostředí. Vstup do budovy je zajištěn bočním vchodem.

Součástí pronájmu je společné sociální zařízení a kuchyňka umístěná na patře. Parkování je možné v blízkém okolí budovy.

Do objektu je přiveden vysokorychlostní internet (CETIN), rozvedený do jednotlivých kanceláří. Nájemce si může zvolit libovolného poskytovatele připojení.

V případě zájmu lze pronajmout sklepní prostory pro skladování.

Cena pronájmu:

Nájemné: 4.600,-Kč/měsíc
Záloha na služby: 1.600,-Kč/měsíc
(zahrnuje elektřinu, vodné, stočné, topení a úklid společných prostor)

Více informací a půdorys kanceláře naleznete v přiložených materiálech nebo u makléře realitní kanceláře.

Parametry nemovitosti

Cena
4 600 Kč /za měsíc
Poznámka k ceně
+ záloha na služby Ihned volný prostor!
Aktualizováno
1. 11. 2025
Adresa
Záhumenní, Kopřivnice
ID
132918
Stavba
Cihlová
Stav objektu
Velmi dobrý
Vybaveno
Ano
Typ objektu
Patrový
Lokalita objektu
Centrum obce
Užitná plocha
18 m2
Třída energetické náročnosti
E - Nehospodárná
Elektřina
230V
Odpad
Veřejná kanalizace
Topení
Lokální plynové
Doprava
Vlak, Silnice, Autobus
Voda
Vodovod

Kontaktovat makléře

Máte zájem o tuto nemovistost?

Tímto, v souladu s nařízením Evropského parlamentu a Rady (EU) 2016/679, v platném znění, prohlašuji, že mi je alespoň 16 let a uděluji tak svůj souhlas se zpracováním zadaných údajů (jméno, telefon, e-mail, ip adresa) společnosti B3 Technology, s.r.o., IČ: 07330600, se sídlem Novostavby 126/23, 435 11 Lom (správce dat), za účelem předání dotazu z tohoto formuláře Vámi vybranému inzerentovi a zpětného kontaktování mé osoby. Osobní údaje bude správce zpracovávat manuálně i automaticky přímo prostřednictvím svých zaměstnanců. Informace předané tímto formulářem budou uloženy v databázi správce maximálně po dobu 10 let. Odvolání souhlasu s uložením a zpracováním poskytnutých dat lze e-mailem na info@vitio.cz. V případě podezření na neoprávněné použití Vámi poskytnutých údajů máte právo předat podnět k šetření Úřadu pro ochranu osobních údajů. Více informací
Chystáte se prodat nemovitost?
Pomůžeme Vám!

Inzerát si prohlédlo 6 lidí

Prodejce

Bc. Markéta Laubová

Bc. Markéta Laubová

Hlídací pes

Chcete dostávat emailem podobné nabídky pronájmu kanceláří v Kopřivnici?

Podobné nemovitosti