Prodej kanceláře, České Budějovice, Školní, 1260 m2

Školní, České Budějovice

Cena na vyžádání /za nemovitost Získejte výhodnou HYPOTÉKU

(cena u makléře)

Exkluzivní partneři v Českých Budějovicích

Výkup a prodej starého nábytku

Informace k nemovitosti

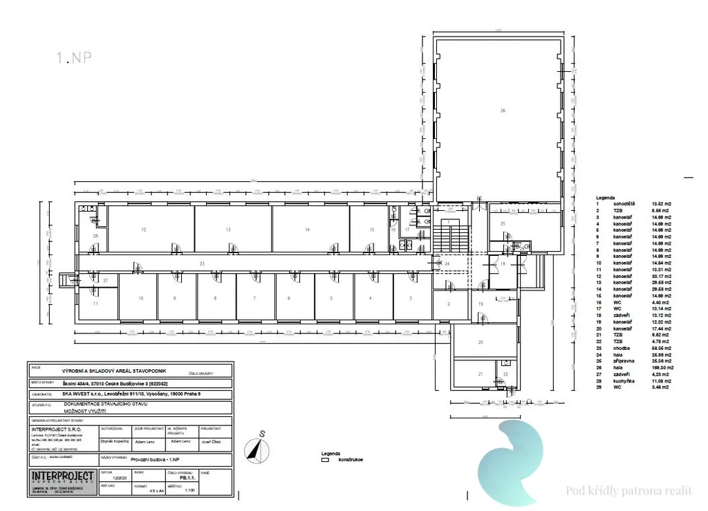
REALDOMUS Vám ve výhradním zastoupení majitele zprostředkuje prodej administrativně obchodní budovy v obchodní zóně v ulici Školní v Českých Budějovicích.

Budova je kompletně zrekonstruována a připravena pro zájemce, který si pouze vybere finální úpravu povrchů užitných ploch, jenž budou provedeny na míru dle jeho potřeb a požadavků.

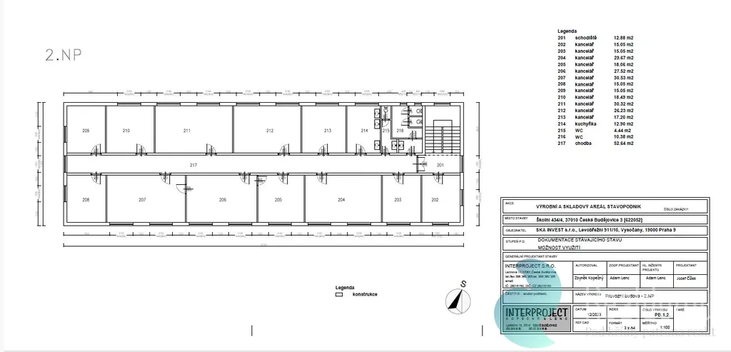
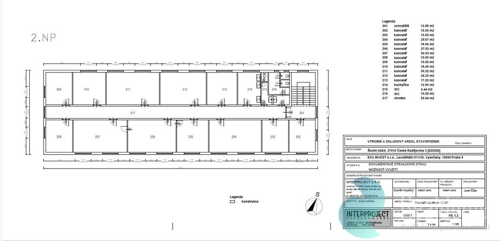
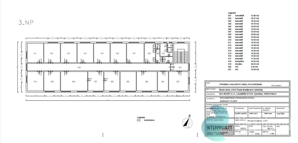
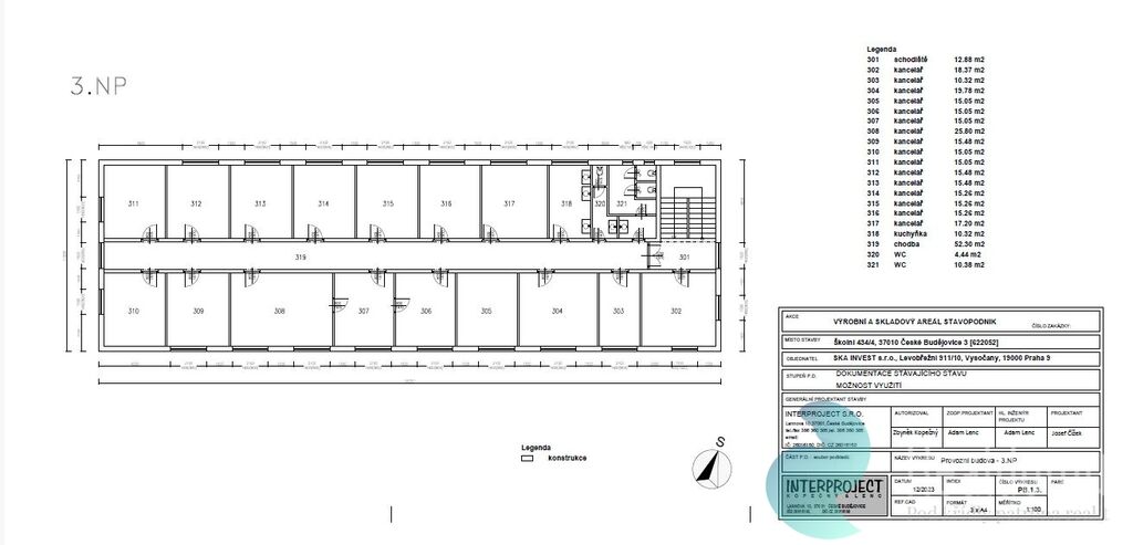
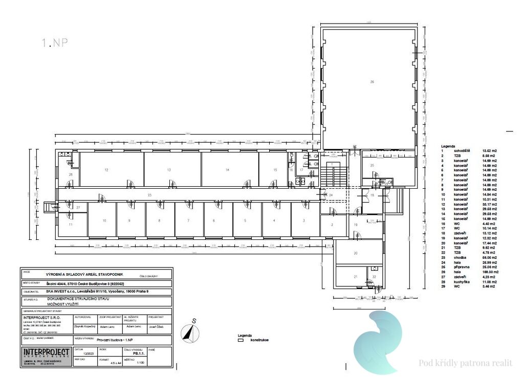
Předmět prodeje je kompletní tří podlažní administrativní budova, která se z 37 kanceláří, archivu, sociálního zázemí a obchodní prostory o výměře 169 m2.

Zájmové budova se nachází v uzavřeném areálu, který je přístupný (24/7) elektronicky ovládanou vjezdovou bránou.

Součástí předmětu prodeje je pozemek před budovou a také ve vnitrobloku o celkové výměře cca. 1.850 m2, které nabízí parkovací kapacity pro osobní i nákladní vozový park.

Bližší technické informace a podmínky transakce Vám poskytne REALDOMUS.

Parametry nemovitosti

Cena
Cena na vyžádání Spočítat hypotéku
Poznámka k ceně
cena u makléře
Aktualizováno
17. 10. 2025
Adresa
Školní, České Budějovice
ID
2256
Stavba
Cihlová
Stav objektu
Velmi dobrý
Patro
1. z 3
Vybaveno
Ne
Typ objektu
Patrový
Lokalita objektu
Klidná část obce
Užitná plocha
1260 m2
Zastavěná plocha
610 m2
Podlahová plocha
1260 m2
Plocha zahrady
1000 m2
Třída energetické náročnosti
G - Mimořádně nehospodárná
Elektřina
400V
Plyn
Plynovod
Odpad
Veřejná kanalizace
Komunikace
Asfaltová
Telekomunikace
Internet
Voda
Vodovod
Převod do OV
Parkování

Kontaktovat makléře

Realitní kancelář

Logo REALDOMUS s.r.o.

REALDOMUS s.r.o.

Radniční 133/1, České Budějovice

Chystáte se prodat nemovitost?
Pomůžeme Vám!

Máte zájem o tuto nemovistost?

Tímto, v souladu s nařízením Evropského parlamentu a Rady (EU) 2016/679, v platném znění, prohlašuji, že mi je alespoň 16 let a uděluji tak svůj souhlas se zpracováním zadaných údajů (jméno, telefon, e-mail, ip adresa) společnosti B3 Technology, s.r.o., IČ: 07330600, se sídlem Novostavby 126/23, 435 11 Lom (správce dat), za účelem předání dotazu z tohoto formuláře Vámi vybranému inzerentovi a zpětného kontaktování mé osoby. Osobní údaje bude správce zpracovávat manuálně i automaticky přímo prostřednictvím svých zaměstnanců. Informace předané tímto formulářem budou uloženy v databázi správce maximálně po dobu 10 let. Odvolání souhlasu s uložením a zpracováním poskytnutých dat lze e-mailem na info@vitio.cz. V případě podezření na neoprávněné použití Vámi poskytnutých údajů máte právo předat podnět k šetření Úřadu pro ochranu osobních údajů. Více informací
Chystáte se prodat nemovitost?
Pomůžeme Vám!

Inzerát si prohlédlo 14 lidí

Prodejce

Mgr. Petr Wölfl

Mgr. Petr Wölfl

Hlídací pes

Chcete dostávat emailem podobné nabídky prodeje kanceláří v Českých Budějovicích?

Podobné nemovitosti