Slavíčkova, Brno, Lesná
(K ceně budou připočteny služby ve výši 2060,- Kč/m2/rok + DPH. Bez kauce a provize.)
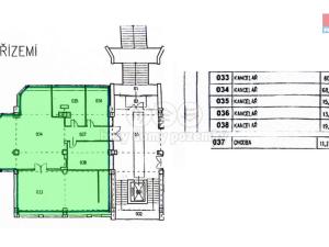
Bez kauce a provize. Nabízíme k pronájmu kancelářské prostory o užitné ploše 188 m² v klidné části obce Brno - Lesná. Tyto kanceláře se nacházejí v 1. podlaží cihlové budovy s celkem 7 nadzemními podlažími a 1 podzemním podlažím. Prostory zahrnují 5 místností, které jsou ideální pro menší a středně velké firmy hledající klidné a přitom strategicky umístěné zázemí. Nemovitost je v dobrém stavu, připravena k okamžitému využití. Díky své poloze nabízí výbornou dostupnost do centra města a zároveň klidné pracovní prostředí. Nepropásněte tuto jedinečnou příležitost pro rozvoj vašeho podnikání v atraktivní lokalitě. Služby se rozpočítávají podle plochy kanceláře, objekt nemá vlastní měřiče, ale ročně probíhá zúčtování za budovu. V 1. PP je závodní jídelna, kterou je možno využívat, stejně jako terasu přiléhající přímo ke kanceláři. Do objektu je přístup časově neomezený. Pro více informací nás neváhejte kontaktovat.
 
                                        ulice Krakovská 583/9, Praha
Máte zájem o tuto nemovistost?
Inzerát si prohlédlo 5 lidí
 
                                Alena Pittnerová
Chcete dostávat emailem podobné nabídky pronájmu kanceláří v Brně?