Prodej bytu 3+1, Chlumec nad Cidlinou, Zapečská, 75 m2

Zapečská, Chlumec nad Cidlinou

Rezervováno
4 000 000 Kč /za nemovitost HYPOTÉKA od 17 878 Kč /za měsíc
Exkluzivní partneři v Chlumci nad Cidlinou

Informace k bytu

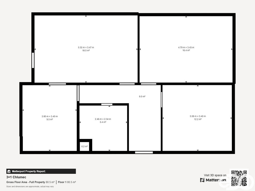
REZERVOVÁNO!! Nabízím k prodeji byt 3+1 v osobním vlastnictví, nacházející se v atraktivní lokalitě na ulici Zapečská, v části obce Chlumec nad Cidlinou. Tento panelový byt, umístěný ve 3. patře čtyřpodlažního objektu, disponuje s celkovou plochou cca 80 m² a je částečně vybaven. Byt prošel částečnou rekonstrukcí, která přispěla k jeho modernímu vzhledu a komfortu. Dominantou je prostorný obývací pokoj, ze kterého je přístup na balkon o ploše cca 3 m², ideální pro využití čerstvého vzduchu. V bytě jsou k dispozici další dva pokoje a kuchyň, která je koncipována pro pohodlné vaření.
Zlevněno! K bytu náleží sklep o velikosti 3 m², což přispívá k dalšímu úložnému prostoru. Vytápění bytu je zajištěno plynovým kotlem, který také poskytuje teplou vodu. Objekt je napojen na kanalizaci a vodovod. Vytápění je rozvedeno pomocí radiátorů. Poloha bytu v centru města zajišťuje výbornou dostupnost všech potřebných služeb a občanské vybavenosti. V blízkosti se nachází zastávky veřejné dopravy, a to jak vlakové, tak autobusové, a také je snadný přístup na dálnici a silnici. Jedná se o skvělé místo pro pohodlné bydlení v klidné a přitom živé lokalitě. Doporučujeme osobní prohlídku, abyste mohli ocenit veškeré výhody této nemovitosti. V případě zájmu o prohlídku mne neváhejte kontaktovat.

Parametry bytu

Stav
Rezervováno
Cena
4 000 000 Kč /za nemovitost Spočítat hypotéku
Aktualizováno
25. 10. 2025
Adresa
Zapečská, Chlumec nad Cidlinou
ID
420250226
Stavba
Panelová
Stav objektu
Dobrý
Patro
3. z 4
Vybaveno
Částečně
Lokalita objektu
Centrum obce
Vlastnictví
Osobní
Užitná plocha
75 m2
Zastavěná plocha
439 m2
Podlahová plocha
80 m2
Třída energetické náročnosti
G - Mimořádně nehospodárná
Elektřina
230V
Odpad
Veřejná kanalizace
Komunikace
Betonová
Doprava
Vlak, Dálnice, Silnice, Autobus
Voda
Vodovod
Balkon
Sklep

Kontaktovat makléře

Realitní kancelář

Logo eDO reality

eDO reality

Na Pankráci 322/26, Praha

Chystáte se prodat nemovitost?
Pomůžeme Vám!

Máte zájem o tento byt?

Tímto, v souladu s nařízením Evropského parlamentu a Rady (EU) 2016/679, v platném znění, prohlašuji, že mi je alespoň 16 let a uděluji tak svůj souhlas se zpracováním zadaných údajů (jméno, telefon, e-mail, ip adresa) společnosti B3 Technology, s.r.o., IČ: 07330600, se sídlem Novostavby 126/23, 435 11 Lom (správce dat), za účelem předání dotazu z tohoto formuláře Vámi vybranému inzerentovi a zpětného kontaktování mé osoby. Osobní údaje bude správce zpracovávat manuálně i automaticky přímo prostřednictvím svých zaměstnanců. Informace předané tímto formulářem budou uloženy v databázi správce maximálně po dobu 10 let. Odvolání souhlasu s uložením a zpracováním poskytnutých dat lze e-mailem na info@vitio.cz. V případě podezření na neoprávněné použití Vámi poskytnutých údajů máte právo předat podnět k šetření Úřadu pro ochranu osobních údajů. Více informací
Chystáte se prodat nemovitost?
Pomůžeme Vám!

Inzerát si prohlédlo 19 lidí

Prodejce

David Církva

David Církva

Hlídací pes

Chcete dostávat emailem podobné nabídky prodeje bytů 3+1 v Chlumci nad Cidlinou?

Podobné nemovitosti