Prodej bytu 3+kk, Vracov, 65 m2

Vracov

8 800 000 Kč /za nemovitost HYPOTÉKA od 39 331 Kč /za měsíc
Exkluzivní partneři v Vracově

Informace k bytu

Nabízíme Vám novou nemovitost na prodej.
Jedná se výstavbu dvou sousedících, přízemních bytových jednotek na klíč. Nemovitosti se prodávají dohromady.
Byty se nachází ve Vracově, leží v rovinaté krajině mezi Strážnicí a Kyjovem v okrese Hodonín v Jihomoravském kraji, ležící osm kilometrů jihovýchodně od Kyjova, ve vinařské oblasti Slovácka.
Tyto byty vystavené z materiálů cihel a ytongu, mají dispozici 3+kk a celkovou plochu 65 m2. K nemovitosti se vyřizuje i pozemek vhodný k výstavbě pergoly či posezení.
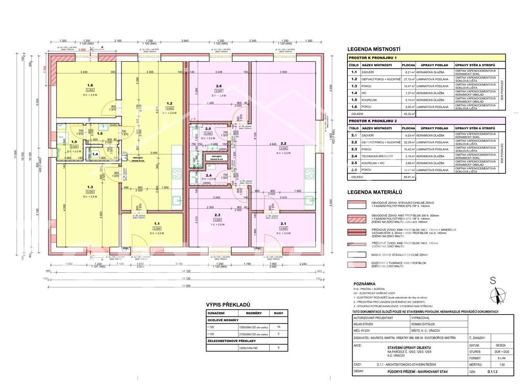
Rozložení a dispozice nemovitosti jsou popsány ve vizualizacích a půdorysech:
Každý byt sestává ze vstupní chodby, ze které je vstup do obývacího pokoje s kuchyňským koutem, koupelny se sprchovým koutem a wc, technické místnosti a 2 prostorných pokojů situovaných jako ložnice.
Konkrétnější představu a inspiraci pro vybavení nemovitosti lze získat z vizualizací.
Energetická náročnost budovy je v kategorii D.
Byty je možné doupravit podle představ klienta, stejně tak i úprava pozemku na míru.
Ke každému bytu náleží i dostatek prostoru k zaparkování i 4 aut.
Byty jsou k nastěhování od 1.1.2026.
Byty se nachází v klidné lokalitě s dobrou dostupností, veřejnou příměstskou dopravou a blízkostí veškeré občanské vybavenosti jako jsou restaurace, školka i škola, kulturní zařízení a obecní úřad.
S financováním Vám rádi pomůžeme.
Pro více informací či domluvení schůzky nás kontaktujte.

Parametry bytu

Cena
8 800 000 Kč /za nemovitost Spočítat hypotéku
Aktualizováno
16. 9. 2025
Adresa
Vracov
ID
1N25002
Stavba
Smíšená
Stav objektu
Novostavba
Patro
1.
Typ objektu
Přízemní
Lokalita objektu
Klidná část obce
Vlastnictví
Osobní
Užitná plocha
65 m2
Podlahová plocha
65 m2
Třída energetické náročnosti
D - Méně úsporná
Elektřina
230V
Komunikace
Asfaltová
Doprava
Silnice, Autobus
Voda
Místní zdroj vody
Topné těleso
Radiátory, Infrapanel
Výtah
Bezbarierový přístup
Parkování

Kontaktovat makléře

Realitní kancelář

Zelgi reality s.r.o.

Národní třída 3687/42, 695 01 Hodonín - Hodonín, Hodonín

Chystáte se prodat nemovitost?
Pomůžeme Vám!

Máte zájem o tento byt?

Tímto, v souladu s nařízením Evropského parlamentu a Rady (EU) 2016/679, v platném znění, prohlašuji, že mi je alespoň 16 let a uděluji tak svůj souhlas se zpracováním zadaných údajů (jméno, telefon, e-mail, ip adresa) společnosti B3 Technology, s.r.o., IČ: 07330600, se sídlem Novostavby 126/23, 435 11 Lom (správce dat), za účelem předání dotazu z tohoto formuláře Vámi vybranému inzerentovi a zpětného kontaktování mé osoby. Osobní údaje bude správce zpracovávat manuálně i automaticky přímo prostřednictvím svých zaměstnanců. Informace předané tímto formulářem budou uloženy v databázi správce maximálně po dobu 10 let. Odvolání souhlasu s uložením a zpracováním poskytnutých dat lze e-mailem na info@vitio.cz. V případě podezření na neoprávněné použití Vámi poskytnutých údajů máte právo předat podnět k šetření Úřadu pro ochranu osobních údajů. Více informací
Chystáte se prodat nemovitost?
Pomůžeme Vám!

Inzerát si prohlédlo 22 lidí

Prodejce

Jiří Němec

Jiří Němec

Hlídací pes

Chcete dostávat emailem podobné nabídky prodeje bytů 3+kk v Vracově?

Podobné nemovitosti