Prodej pozemku pro bydlení, Poříčí nad Sázavou, Pyšelská, 1010 m2

Pyšelská, Poříčí nad Sázavou

2 750 000 Kč /za nemovitost HYPOTÉKA od 12 291 Kč /za měsíc

(včetně právního servisu)

Exkluzivní partneři v Poříčí nad Sázavou

Pojištění a finance

Informace k pozemku

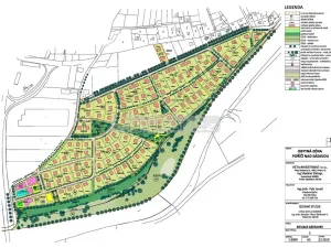
Pozemek určený územním plánem pro stavbu RD v Poříčí nad Sázavou. Hledáte místo, kde by mohl vyrůst váš budoucí domov? Máme pro vás exkluzivní nabídku stavebního pozemku v atraktivní a klidné lokalitě Poříčí nad Sázavou, která bude procházet proměnou v moderní čtvrť rodinných domů.
Pozemková parcela č. 193/14 o rozloze 1.010 m² se nachází v západní části této nové rezidenční oblasti. Kupní cena činí 2.750.000 Kč za pozemek.
V ceně nejsou zahrnuty poplatky za připojení na inženýrské sítě. V plánu je vybudování kompletní infrastruktury – elektřiny, vody, plynu, kanalizace, komunikací a veřejné zeleně.
Celé území je dle územního plánu určeno k výstavbě rodinných domů, což z něj činí ideální volbu pro klidné a pohodové bydlení.
Zaujala vás tato nabídka? Neváhejte mě kontaktovat – ráda vám poskytnu více informací na níže uvedených kontaktech Po-pá 9.00-17.00 hod.

Parametry pozemku

Cena
2 750 000 Kč /za nemovitost Spočítat hypotéku
Poznámka k ceně
včetně právního servisu
Aktualizováno
29. 3. 2026
Adresa
Pyšelská, Poříčí nad Sázavou
ID
959
Plocha pozemku
1010 m2

Kontaktovat makléře

Realitní kancelář

Logo Realitáři Plzeň SE

Realitáři Plzeň SE

Náměstí Republiky 28, Plzeň

Chystáte se prodat nemovitost?
Pomůžeme Vám!

Máte zájem o tento pozemek?

Tímto, v souladu s nařízením Evropského parlamentu a Rady (EU) 2016/679, v platném znění, prohlašuji, že mi je alespoň 16 let a uděluji tak svůj souhlas se zpracováním zadaných údajů (jméno, telefon, e-mail, ip adresa) společnosti B3 Technology, s.r.o., IČ: 07330600, se sídlem Novostavby 126/23, 435 11 Lom (správce dat), za účelem předání dotazu z tohoto formuláře Vámi vybranému inzerentovi a zpětného kontaktování mé osoby. Osobní údaje bude správce zpracovávat manuálně i automaticky přímo prostřednictvím svých zaměstnanců. Informace předané tímto formulářem budou uloženy v databázi správce maximálně po dobu 10 let. Odvolání souhlasu s uložením a zpracováním poskytnutých dat lze e-mailem na info@vitio.cz. V případě podezření na neoprávněné použití Vámi poskytnutých údajů máte právo předat podnět k šetření Úřadu pro ochranu osobních údajů. Více informací
Chystáte se prodat nemovitost?
Pomůžeme Vám!
Theleadway banner

Inzerát si prohlédlo 17 lidí

Prodejce

Martina Dlouhá

Martina Dlouhá

Hlídací pes

Chcete dostávat emailem podobné nabídky prodeje pozemků pro bydlení v Poříčí nad Sázavou?

Podobné nemovitosti