Pronájem výrobních prostor, Plzeň - Lobzy, Revoluční, 635 m2

Revoluční, Plzeň, Lobzy

57 000 Kč /za měsíc Získejte výhodnou HYPOTÉKU

(+ energie a služby, 3x vratná kauce, 1x provize RK, + DPH pro plátce DPH)

Exkluzivní partneři v Plzni

Podlahy

Stěhovací služby

Informace k nemovitosti

Pronájem výrobního objektu, 635 m², Plzeň, Revoluční

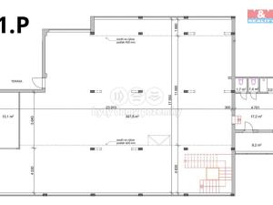
Pronájem výrobních prostor o celkové výměře 634,9 m2, který se rozkládá ve dvou podlažích ( 242,5 m2 - přízemí a 392,4 m2 - 1. patro) se nachází v Plzni, roh ulice Rokycanská a Revoluční. Prostory jsou vhodné jak na výrobu, tak skladování s možností zásobování ze zadního traktu objektu. K nájemnému se hradí zálohy na energie a služby. Při podpisu smlouvy s skládá 3x vratná kauce a provize RK. Cena pronájmu je uvedena bez DPH.

Parametry nemovitosti

Cena
57 000 Kč /za měsíc
Poznámka k ceně
+ energie a služby, 3x vratná kauce, 1x provize RK, + DPH pro plátce DPH
Aktualizováno
3. 11. 2025
Adresa
Revoluční, Plzeň, Lobzy
ID
905360
Stavba
Cihlová
Stav objektu
Dobrý
Vybaveno
Ne
Lokalita objektu
Centrum obce
Vlastnictví
Osobní
Užitná plocha
635 m2

Kontaktovat makléře

Realitní kancelář

Logo M&M reality

M&M reality

ulice Krakovská 583/9, Praha

Chystáte se prodat nemovitost?
Pomůžeme Vám!

Máte zájem o tuto nemovistost?

Tímto, v souladu s nařízením Evropského parlamentu a Rady (EU) 2016/679, v platném znění, prohlašuji, že mi je alespoň 16 let a uděluji tak svůj souhlas se zpracováním zadaných údajů (jméno, telefon, e-mail, ip adresa) společnosti B3 Technology, s.r.o., IČ: 07330600, se sídlem Novostavby 126/23, 435 11 Lom (správce dat), za účelem předání dotazu z tohoto formuláře Vámi vybranému inzerentovi a zpětného kontaktování mé osoby. Osobní údaje bude správce zpracovávat manuálně i automaticky přímo prostřednictvím svých zaměstnanců. Informace předané tímto formulářem budou uloženy v databázi správce maximálně po dobu 10 let. Odvolání souhlasu s uložením a zpracováním poskytnutých dat lze e-mailem na info@vitio.cz. V případě podezření na neoprávněné použití Vámi poskytnutých údajů máte právo předat podnět k šetření Úřadu pro ochranu osobních údajů. Více informací
Chystáte se prodat nemovitost?
Pomůžeme Vám!

Inzerát si prohlédlo 6 lidí

Prodejce

Tomáš Hrouda

Tomáš Hrouda

Hlídací pes

Chcete dostávat emailem podobné nabídky pronájmu výrobních prostor v Plzni?

Podobné nemovitosti